|
|
|
| Larry Stein Oklahoma County Assessor (405) 713-1200 - Public Access System |
|
|
|
|
|
|
| Real Property Display - Screen Produced 3/5/2026 6:03:55 PM | ||||
|---|---|---|---|---|
| Account: R033552688 | Type: Residential | Location: |
1228 NE 15TH ST |
|
| Building Name/Occupant: |
|
OKLAHOMA CITY |
||
| Owner Name 1: | HOOPER MARY P |
Parcel PIN#: |
2703-03-355-2688 |
|
| Owner Name 2: | 1/4 section #: |
2703 |
||
| Owner Name 3: | Parent Acct: |
|
||
| Billing Address: | 1057 GLENCREST DR | Tax District: |
|
|
| City, State, Zip | CEDAR HILL, TX 75104-2925 | School System: |
Oklahoma City #89 |
|
|
Country: (If noted) |
Land Size: |
0.1722 Acres |
||
|
Land Value: 21,375 |
|
|||
|
Sect 26-T12N-R3W Qtr SW |
CULBERTSON HEIGHTS ADDITION
Block
007
Lot
000
|
|||
| Full Legal Description: CULBERTSON HEIGHTS ADDITION 007 000 LOTS 3 & 4 |
| Photo & Sketch (if available) | Comp Sales (ordered by relevancy) |
|
||||||||||||||||||
|
||||||||||||||||||||
| Value History (*The County Treasurer 405-713-1300 posts & collects actual tax amounts. Contact information HERE) | |||||||||||||
|---|---|---|---|---|---|---|---|---|---|---|---|---|---|
| Year | Market Value | Taxable Mkt Value | Gross Assessed | Exemption | Net Assessed | Millage | Est. Tax | Tax Savings | |||||
|
2025 |
113,000 |
27,768 |
3,054 |
0 |
3,054 |
122.90 |
$375 |
$1,152 |
|||||
|
2024 |
106,500 |
26,446 |
2,908 |
0 |
2,908 |
123.89 |
$360 |
$1,091 |
|||||
|
2023 |
100,000 |
25,187 |
2,769 |
0 |
2,769 |
122.82 |
$340 |
$1,011 |
|||||
|
2022 |
74,000 |
23,988 |
2,637 |
0 |
2,637 |
117.63 |
$310 |
$647 |
|||||
|
2021 |
67,000 |
22,846 |
2,512 |
0 |
2,512 |
117.70 |
$296 |
$572 |
|||||
| Property Account Status/Adjustments/Exemptions | ||
|---|---|---|
| Account # | Exemption Description | Amount |
|
R033552688 |
5% Capped Account |
0 |
| Property Deed Transaction History (Recorded in the County Clerk's Office) | ||||||||||
|---|---|---|---|---|---|---|---|---|---|---|
| Date | Type | Book | Page | Price | Grantor | Grantee | ||||
|
8/1/2023 |
|
Deeds |
$0 |
HOOPER MARY P |
HOOPER MARY P |
|||||
|
11/4/2016 |
|
Deeds |
$ |
HOOPER MARY P |
HOOPER MARY P |
|||||
|
11/4/2016 |
|
Hmstd Off & |
$ |
SCRUGGS JOHNNY L |
HOOPER MARY P |
|||||
|
11/4/2016 |
|
Deeds |
$0 |
HOOPER MARY P |
SCRUGGS JOHNNY L |
|||||
|
1/23/2014 |
|
Deeds |
$0 |
SCRUGGS JOHNNY L PHILLIPS CHARZETTA |
SCRUGGS JOHNNY L |
|||||
| Last Mailed Notice of Value (N.O.V.) Information/History | ||||||||
|---|---|---|---|---|---|---|---|---|
| Year | Date | Market Value | Taxable Market Value | Gross Assessed | Exemption | Net Assessed | ||
|
2026 |
02/23/2026 |
123,000 |
29,156 |
3,206 |
0 |
3,206 |
||
|
2025 |
02/14/2025 |
113,000 |
27,768 |
3,054 |
0 |
3,054 |
||
|
2024 |
02/13/2024 |
106,500 |
26,446 |
2,908 |
0 |
2,908 |
||
|
2023 |
02/14/2023 |
100,000 |
25,187 |
2,769 |
0 |
2,769 |
||
|
2022 |
03/15/2022 |
74,000 |
23,988 |
2,637 |
0 |
2,637 |
||
| Property Building Permit History | ||||||
|---|---|---|---|---|---|---|
| Issued | Permit # | Provided by | Bldg # | Description | Est Construction Cost | Status |
|
4/3/2013 |
10452384 |
OKLAHOMA CITY |
1 |
Demolish |
1,200 |
Inactive |
| Click button on building number to access detailed information: | ||||||
|---|---|---|---|---|---|---|
| Bldg # | Vacant/Improved Land | Bldg Description | Year Built | SqFt | # Stories | |
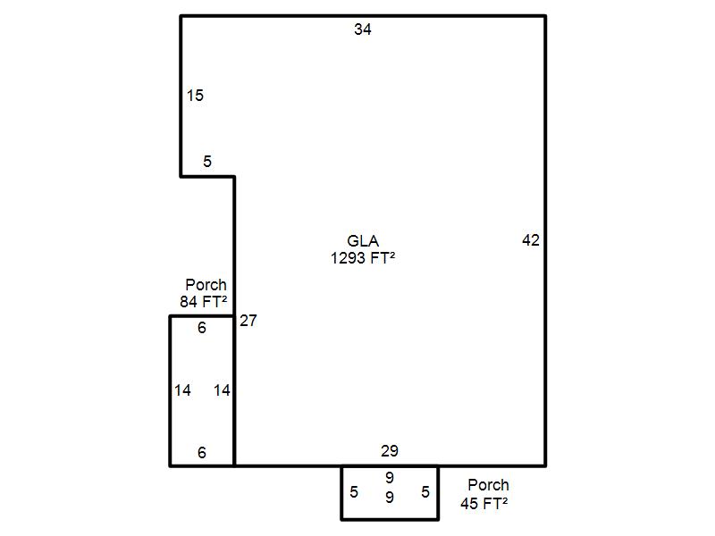
|
1 |
Improved |
Ranch 1 Story |
1922 |
1,293 |
1 Stories |
|