|
|
|
| Larry Stein Oklahoma County Assessor (405) 713-1200 - Public Access System |
|
|
|
|
|
|
| Real Property Display - Screen Produced 3/5/2026 6:02:41 PM | ||||
|---|---|---|---|---|
| Account: R033553584 | Type: Residential | Location: |
1211 NE 15TH ST |
|
| Building Name/Occupant: |
|
OKLAHOMA CITY |
||
| Owner Name 1: | TURNER LEVERTIA |
Parcel PIN#: |
2703-03-355-3584 |
|
| Owner Name 2: | 1/4 section #: |
2703 |
||
| Owner Name 3: | Parent Acct: |
|
||
| Billing Address: | 1211 NE 15TH ST | Tax District: |
|
|
| City, State, Zip | OKLAHOMA CITY, OK 73117-1011 | School System: |
Oklahoma City #89 |
|
|
Country: (If noted) |
Land Size: |
0.1515 Acres |
||
|
Land Value: 18,810 |
|
|||
|
Sect 26-T12N-R3W Qtr SW |
CULBERTSON HEIGHTS ADDITION
Block
008
Lot
000
|
|||
| Full Legal Description: CULBERTSON HEIGHTS ADDITION 008 000 LOTS 25 & 26 |
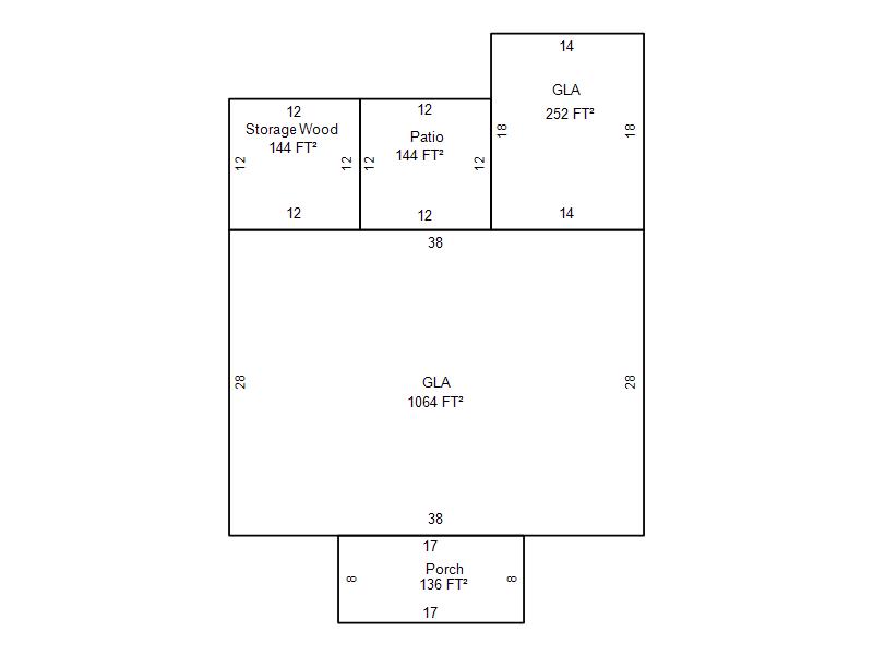
| Photo & Sketch (if available) | Comp Sales (ordered by relevancy) |
|
||||||||||||||||||
|
||||||||||||||||||||
| Value History (*The County Treasurer 405-713-1300 posts & collects actual tax amounts. Contact information HERE) | |||||||||||||
|---|---|---|---|---|---|---|---|---|---|---|---|---|---|
| Year | Market Value | Taxable Mkt Value | Gross Assessed | Exemption | Net Assessed | Millage | Est. Tax | Tax Savings | |||||
|
2025 |
81,500 |
29,447 |
3,238 |
0 |
3,238 |
122.90 |
$398 |
$704 |
|||||
|
2024 |
76,500 |
28,045 |
3,084 |
0 |
3,084 |
123.89 |
$382 |
$660 |
|||||
|
2023 |
99,500 |
26,710 |
2,937 |
0 |
2,937 |
122.82 |
$361 |
$983 |
|||||
|
2022 |
73,000 |
25,439 |
2,797 |
0 |
2,797 |
117.63 |
$329 |
$615 |
|||||
|
2021 |
66,500 |
24,228 |
2,664 |
0 |
2,664 |
117.70 |
$314 |
$547 |
|||||
| Property Account Status/Adjustments/Exemptions | ||
|---|---|---|
| Account # | Exemption Description | Amount |
|
R033553584 |
5% Capped Account |
0 |
| Property Deed Transaction History (Recorded in the County Clerk's Office) | |||||||
|---|---|---|---|---|---|---|---|
| Date | Type | Book | Page | Price | Grantor | Grantee | |
|
12/1/1974 |
|
Historical |
$0 |
|
TURNER LEVERTIA |
||
| Last Mailed Notice of Value (N.O.V.) Information/History | ||||||||
|---|---|---|---|---|---|---|---|---|
| Year | Date | Market Value | Taxable Market Value | Gross Assessed | Exemption | Net Assessed | ||
|
2025 |
03/28/2025 |
81,500 |
29,447 |
3,238 |
0 |
3,238 |
||
|
2024 |
02/13/2024 |
76,500 |
28,045 |
3,084 |
0 |
3,084 |
||
|
2023 |
02/14/2023 |
99,500 |
26,710 |
2,937 |
0 |
2,937 |
||
|
2022 |
03/15/2022 |
73,000 |
25,439 |
2,797 |
0 |
2,797 |
||
|
2021 |
03/19/2021 |
66,500 |
24,228 |
2,665 |
0 |
2,665 |
||
| Property Building Permit History | ||||||
|---|---|---|---|---|---|---|
| Issued | Permit # | Provided by | Bldg # | Description | Est Construction Cost | Status |
|
2/22/2021 |
|
|
1 |
Fire Remodel |
|
Active |
|
12/4/2020 |
20076038000 |
|
1 |
Burn - Trip |
2,500 |
Inactive |
| Click button on building number to access detailed information: | ||||||
|---|---|---|---|---|---|---|
| Bldg # | Vacant/Improved Land | Bldg Description | Year Built | SqFt | # Stories | |
|
1 |
Improved |
Ranch 1 Story |
1924 |
1,316 |
1 Stories |
|