|
|
|
| Larry Stein Oklahoma County Assessor (405) 713-1200 - Public Access System |
|
|
|
|
|
|
| Real Property Display - Screen Produced 3/5/2026 6:01:29 PM | ||||
|---|---|---|---|---|
| Account: R033553936 | Type: Residential | Location: |
1112 NE 16TH ST |
|
| Building Name/Occupant: |
|
OKLAHOMA CITY |
||
| Owner Name 1: | A2Z PROPERTIES LLC |
Parcel PIN#: |
2703-03-355-3936 |
|
| Owner Name 2: | 1/4 section #: |
2703 |
||
| Owner Name 3: | Parent Acct: |
|
||
| Billing Address: | 11601 WATERMILL RD | Tax District: |
|
|
| City, State, Zip | OKLAHOMA CITY , OK 73131 | School System: |
Oklahoma City #89 |
|
|
Country: (If noted) |
Land Size: |
0.1654 Acres |
||
|
Land Value: 20,534 |
|
|||
|
Sect 26-T12N-R3W Qtr SW |
CULBERTSON HEIGHTS ADDITION
Block
009
Lot
006
|
|||
| Full Legal Description: CULBERTSON HEIGHTS ADDITION 009 006 |
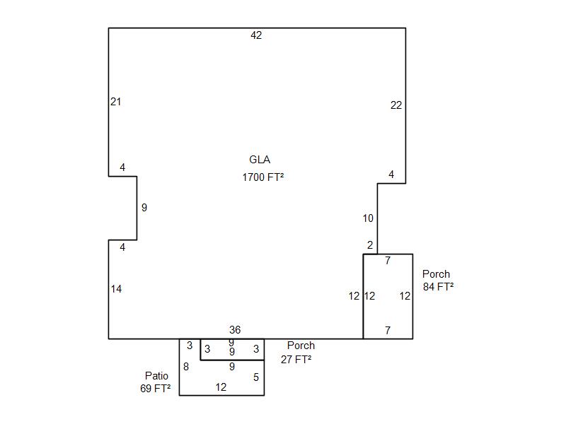
| Photo & Sketch (if available) | Comp Sales (ordered by relevancy) |
|
||||||||||||||||||
|
||||||||||||||||||||
| Value History (*The County Treasurer 405-713-1300 posts & collects actual tax amounts. Contact information HERE) | |||||||||||||
|---|---|---|---|---|---|---|---|---|---|---|---|---|---|
| Year | Market Value | Taxable Mkt Value | Gross Assessed | Exemption | Net Assessed | Millage | Est. Tax | Tax Savings | |||||
|
2025 |
216,500 |
110,555 |
12,161 |
0 |
12,161 |
122.90 |
$1,495 |
$1,432 |
|||||
|
2024 |
207,500 |
105,291 |
11,581 |
0 |
11,581 |
123.89 |
$1,435 |
$1,393 |
|||||
|
2023 |
187,000 |
100,278 |
11,030 |
0 |
11,030 |
122.82 |
$1,355 |
$1,172 |
|||||
|
2022 |
152,000 |
95,503 |
10,504 |
0 |
10,504 |
117.63 |
$1,236 |
$731 |
|||||
|
2021 |
133,000 |
90,956 |
10,004 |
0 |
10,004 |
117.70 |
$1,178 |
$544 |
|||||
| Property Account Status/Adjustments/Exemptions | ||
|---|---|---|
| Account # | Exemption Description | Amount |
|
R033553936 |
5% Capped Account |
0 |
| Property Deed Transaction History (Recorded in the County Clerk's Office) | ||||||||||
|---|---|---|---|---|---|---|---|---|---|---|
| Date | Type | Book | Page | Price | Grantor | Grantee | ||||
|
4/12/2018 |
|
Mult Parcel |
$530,000 |
CKE INVESTMENTS LLC |
A2Z PROPERTIES LLC |
|||||
|
4/12/2018 |
|
Hmstd Off & |
$0 |
CKE INVESTMENTS LLC |
A2Z PROPERTIES LLC |
|||||
|
10/15/2013 |
|
Hmstd Off & |
$0 |
EDWARDS CHRIS L & KELLY C |
CKE INVESTMENTS LLC |
|||||
|
11/11/2010 |
|
Hmstd Off & |
$0 |
EDWARDS CHRIS EDWARDS KELLY C |
CKE INVESTMENTS LLC |
|||||
|
12/3/2003 |
|
Deeds |
$55,000 |
SCHOLTEN ROBERT D & ELIZABETH J |
EDWARDS CHRIS EDWARDS KELLY C |
|||||
| Last Mailed Notice of Value (N.O.V.) Information/History | ||||||||
|---|---|---|---|---|---|---|---|---|
| Year | Date | Market Value | Taxable Market Value | Gross Assessed | Exemption | Net Assessed | ||
|
2026 |
02/23/2026 |
216,500 |
116,082 |
12,769 |
0 |
12,769 |
||
|
2025 |
02/14/2025 |
216,500 |
110,555 |
12,161 |
0 |
12,161 |
||
|
2024 |
02/13/2024 |
207,500 |
105,291 |
11,581 |
0 |
11,581 |
||
|
2023 |
02/14/2023 |
187,000 |
100,278 |
11,030 |
0 |
11,030 |
||
|
2022 |
03/15/2022 |
152,000 |
95,503 |
10,504 |
0 |
10,504 |
||
| Property Building Permit History | ||||||
|---|---|---|---|---|---|---|
| Issued | Permit # | Provided by | Bldg # | Description | Est Construction Cost | Status |
|
2/19/2019 |
|
|
1 |
Main Dwellin |
70,000 |
Inactive |
| Click button on building number to access detailed information: | ||||||
|---|---|---|---|---|---|---|
| Bldg # | Vacant/Improved Land | Bldg Description | Year Built | SqFt | # Stories | |
|
1 |
Improved |
Duplex One Story |
1932 |
1,700 |
1 Stories |
|