|
|
|
| Larry Stein Oklahoma County Assessor (405) 713-1200 - Public Access System |
|
|
|
|
|
|
| Real Property Display - Screen Produced 3/5/2026 6:01:20 PM | ||||
|---|---|---|---|---|
| Account: R033554000 | Type: Residential | Location: |
1104 NE 16TH ST |
|
| Building Name/Occupant: |
|
OKLAHOMA CITY |
||
| Owner Name 1: | MADKA VENKATESHWAR |
Parcel PIN#: |
2703-03-355-4000 |
|
| Owner Name 2: | ASURI REKHA | 1/4 section #: |
2703 |
|
| Owner Name 3: | Parent Acct: |
|
||
| Billing Address: | 1104 NE 16TH ST | Tax District: |
|
|
| City, State, Zip | OKLAHOMA CITY, OK 73117 | School System: |
Oklahoma City #89 |
|
|
Country: (If noted) |
UNITED STATES |
Land Size: |
0.1654 Acres |
|
|
Land Value: 20,534 |
|
|||
|
Sect 26-T12N-R3W Qtr SW |
CULBERTSON HEIGHTS ADDITION
Block
009
Lot
008
|
|||
| Full Legal Description: CULBERTSON HEIGHTS ADDITION 009 008 |
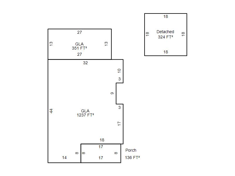
| Photo & Sketch (if available) | Comp Sales (ordered by relevancy) |
|
||||||||||||||||||
|
||||||||||||||||||||
| Value History (*The County Treasurer 405-713-1300 posts & collects actual tax amounts. Contact information HERE) | |||||||||||||
|---|---|---|---|---|---|---|---|---|---|---|---|---|---|
| Year | Market Value | Taxable Mkt Value | Gross Assessed | Exemption | Net Assessed | Millage | Est. Tax | Tax Savings | |||||
|
2025 |
209,000 |
209,000 |
22,990 |
1,000 |
21,990 |
122.90 |
$2,703 |
$123 |
|||||
|
2024 |
142,500 |
142,500 |
15,675 |
0 |
15,675 |
123.89 |
$1,942 |
$0 |
|||||
|
2023 |
130,000 |
51,500 |
5,665 |
2,000 |
3,665 |
122.82 |
$450 |
$1,306 |
|||||
|
2022 |
97,000 |
51,500 |
5,665 |
2,000 |
3,665 |
117.63 |
$431 |
$824 |
|||||
|
2021 |
88,500 |
51,500 |
5,665 |
2,000 |
3,665 |
117.70 |
$431 |
$714 |
|||||
| Property Account Status/Adjustments/Exemptions | ||
|---|---|---|
| Account # | Exemption Description | Amount |
|
R033554000 |
3% Cap Homestead |
0 |
|
R033554000 |
Homestead |
1,000 |
| Property Deed Transaction History (Recorded in the County Clerk's Office) | ||||||||||
|---|---|---|---|---|---|---|---|---|---|---|
| Date | Type | Book | Page | Price | Grantor | Grantee | ||||
|
7/18/2024 |
|
Deeds |
$220,000 |
BAG SECURED LLC |
MADKA VENKATESHWAR |
|||||
|
10/16/2023 |
|
Deeds |
$140,000 |
ARBERTHA KEN ETAL |
LA PROPERTY INVESTMENTS LLC |
|||||
|
10/16/2023 |
|
Deeds |
$185,000 |
LA PROPERTY INVESTMENTS LLC |
BAG SECURED LLC |
|||||
|
9/11/2023 |
|
Hmstd Off & |
$0 |
ARBERTHA SYLVIA |
ARBERTHA KEN ETAL |
|||||
|
4/28/2004 |
|
Deeds |
$65,500 |
STEWART ALICE HOMESLEY TRUST |
ARBERTHA SYLVIA |
|||||
| Last Mailed Notice of Value (N.O.V.) Information/History | ||||||||
|---|---|---|---|---|---|---|---|---|
| Year | Date | Market Value | Taxable Market Value | Gross Assessed | Exemption | Net Assessed | ||
|
2026 |
02/23/2026 |
216,500 |
215,270 |
23,679 |
1,000 |
22,679 |
||
|
2025 |
02/14/2025 |
209,000 |
209,000 |
22,990 |
1,000 |
21,990 |
||
|
2024 |
02/13/2024 |
142,500 |
142,500 |
15,675 |
0 |
15,675 |
||
|
2023 |
02/14/2023 |
130,000 |
51,500 |
5,665 |
2,000 |
3,665 |
||
|
2022 |
03/15/2022 |
97,000 |
51,500 |
5,665 |
2,000 |
3,665 |
||
| Property Building Permit History | |||||||||||
|---|---|---|---|---|---|---|---|---|---|---|---|
| Issued | Permit # | Provided by | Bldg # | Description | Est Construction Cost | Status | |||||
| No Building Permit records returned. | |||||||||||
| Click button on building number to access detailed information: | ||||||
|---|---|---|---|---|---|---|
| Bldg # | Vacant/Improved Land | Bldg Description | Year Built | SqFt | # Stories | |
|
1 |
Improved |
Ranch 1 Story |
1928 |
1,588 |
1 Stories |
|