|
|
|
| Larry Stein Oklahoma County Assessor (405) 713-1200 - Public Access System |
|
|
|
|
|
|
| Real Property Display - Screen Produced 3/5/2026 6:03:47 PM | ||||
|---|---|---|---|---|
| Account: R033554256 | Type: Residential | Location: |
1125 NE 15TH ST |
|
| Building Name/Occupant: |
|
OKLAHOMA CITY |
||
| Owner Name 1: | MIMS MAYA D |
Parcel PIN#: |
2703-03-355-4256 |
|
| Owner Name 2: | 1/4 section #: |
2703 |
||
| Owner Name 3: | Parent Acct: |
|
||
| Billing Address: | 1125 NE 15TH ST | Tax District: |
|
|
| City, State, Zip | OKLAHOMA CITY, OK 73117-1009 | School System: |
Oklahoma City #89 |
|
|
Country: (If noted) |
Land Size: |
0.1654 Acres |
||
|
Land Value: 20,534 |
|
|||
|
Sect 26-T12N-R3W Qtr SW |
CULBERTSON HEIGHTS ADDITION
Block
009
Lot
016
|
|||
| Full Legal Description: CULBERTSON HEIGHTS ADDITION 009 016 |
| Photo & Sketch (if available) | Comp Sales (ordered by relevancy) |
|
||||||||||||||||||
|
||||||||||||||||||||
| Value History (*The County Treasurer 405-713-1300 posts & collects actual tax amounts. Contact information HERE) | |||||||||||||
|---|---|---|---|---|---|---|---|---|---|---|---|---|---|
| Year | Market Value | Taxable Mkt Value | Gross Assessed | Exemption | Net Assessed | Millage | Est. Tax | Tax Savings | |||||
|
2025 |
154,500 |
81,256 |
8,937 |
0 |
8,937 |
122.90 |
$1,098 |
$990 |
|||||
|
2024 |
151,500 |
77,387 |
8,512 |
0 |
8,512 |
123.89 |
$1,055 |
$1,010 |
|||||
|
2023 |
138,000 |
73,702 |
8,107 |
0 |
8,107 |
122.82 |
$996 |
$869 |
|||||
|
2022 |
102,500 |
70,193 |
7,720 |
0 |
7,720 |
117.63 |
$908 |
$418 |
|||||
|
2021 |
94,000 |
66,851 |
7,353 |
0 |
7,353 |
117.70 |
$866 |
$351 |
|||||
| Property Account Status/Adjustments/Exemptions | ||
|---|---|---|
| Account # | Exemption Description | Amount |
|
R033554256 |
5% Capped Account |
0 |
| Property Deed Transaction History (Recorded in the County Clerk's Office) | ||||||||||
|---|---|---|---|---|---|---|---|---|---|---|
| Date | Type | Book | Page | Price | Grantor | Grantee | ||||
|
10/19/2007 |
|
Deeds |
$76,500 |
JESTER GEORGE THOMAS & TERI DEANN |
MIMS MAYA D |
|||||
|
4/25/2006 |
|
Deeds |
$48,500 |
CITIFINANCIAL MORTGAGE CO INC |
JESTER GEORGE THOMAS & TERI DEANN |
|||||
|
1/9/2006 |
|
Hmstd Off & |
$0 |
STEVENSON EDWARD |
CITIFINANCIAL MORTGAGE CO INC |
|||||
|
5/8/2001 |
|
Hmstd Off & |
$0 |
STEVENSON RALPH STEVENSON CHARLENE |
STEVENSON EDWARD |
|||||
|
7/19/2000 |
|
Other |
$0 |
STEVENSON EDWARD |
STEVENSON RALPH STEVENSON CHARLENE |
|||||
| Last Mailed Notice of Value (N.O.V.) Information/History | ||||||||
|---|---|---|---|---|---|---|---|---|
| Year | Date | Market Value | Taxable Market Value | Gross Assessed | Exemption | Net Assessed | ||
|
2026 |
02/23/2026 |
163,000 |
85,318 |
9,384 |
0 |
9,384 |
||
|
2025 |
02/14/2025 |
154,500 |
81,256 |
8,937 |
0 |
8,937 |
||
|
2024 |
02/13/2024 |
151,500 |
77,387 |
8,512 |
0 |
8,512 |
||
|
2023 |
02/14/2023 |
138,000 |
73,702 |
8,107 |
0 |
8,107 |
||
|
2022 |
03/15/2022 |
102,500 |
70,193 |
7,720 |
0 |
7,720 |
||
| Property Building Permit History | |||||||||||
|---|---|---|---|---|---|---|---|---|---|---|---|
| Issued | Permit # | Provided by | Bldg # | Description | Est Construction Cost | Status | |||||
| No Building Permit records returned. | |||||||||||
| Click button on building number to access detailed information: | ||||||
|---|---|---|---|---|---|---|
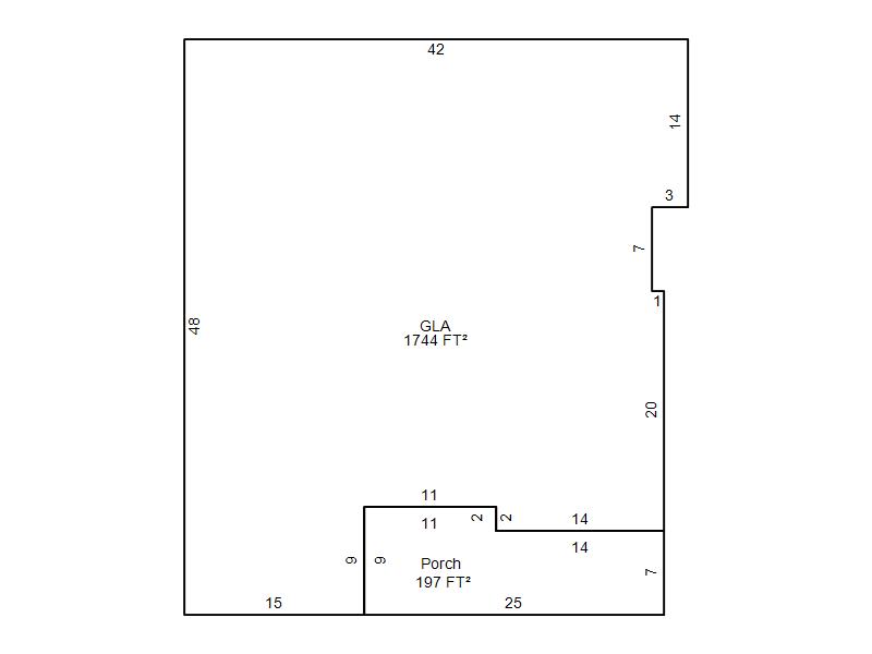
| Bldg # | Vacant/Improved Land | Bldg Description | Year Built | SqFt | # Stories | |
|
1 |
Improved |
Ranch 1 Story |
1929 |
1,744 |
1 Stories |
|