|
|
|
| Larry Stein Oklahoma County Assessor (405) 713-1200 - Public Access System |
|
|
|
|
|
|
| Real Property Display - Screen Produced 3/5/2026 6:03:55 PM | ||||
|---|---|---|---|---|
| Account: R033554416 | Type: Residential | Location: |
1124 NE 15TH ST |
|
| Building Name/Occupant: |
|
OKLAHOMA CITY |
||
| Owner Name 1: | TAYLOR CARTRIE |
Parcel PIN#: |
2703-03-355-4416 |
|
| Owner Name 2: | 1/4 section #: |
2703 |
||
| Owner Name 3: | Parent Acct: |
|
||
| Billing Address: | 1124 NE 15TH ST | Tax District: |
|
|
| City, State, Zip | OKLAHOMA CITY, OK 73117-1010 | School System: |
Oklahoma City #89 |
|
|
Country: (If noted) |
Land Size: |
0.1894 Acres |
||
|
Land Value: 23,513 |
|
|||
|
Sect 26-T12N-R3W Qtr SW |
CULBERTSON HEIGHTS ADDITION
Block
010
Lot
003
|
|||
| Full Legal Description: CULBERTSON HEIGHTS ADDITION 010 003 |
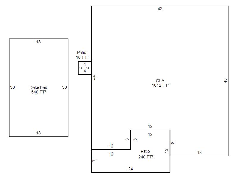
| Photo & Sketch (if available) | Comp Sales (ordered by relevancy) |
|
||||||||||||||||||
|
||||||||||||||||||||
| Value History (*The County Treasurer 405-713-1300 posts & collects actual tax amounts. Contact information HERE) | |||||||||||||
|---|---|---|---|---|---|---|---|---|---|---|---|---|---|
| Year | Market Value | Taxable Mkt Value | Gross Assessed | Exemption | Net Assessed | Millage | Est. Tax | Tax Savings | |||||
|
2025 |
171,000 |
74,736 |
8,220 |
1,000 |
7,220 |
122.90 |
$887 |
$1,424 |
|||||
|
2024 |
160,500 |
72,560 |
7,981 |
1,000 |
6,981 |
123.89 |
$865 |
$1,322 |
|||||
|
2023 |
147,000 |
70,447 |
7,748 |
1,000 |
6,748 |
122.82 |
$829 |
$1,157 |
|||||
|
2022 |
110,000 |
68,396 |
7,522 |
1,000 |
6,522 |
117.63 |
$767 |
$656 |
|||||
|
2021 |
101,000 |
66,404 |
7,303 |
1,000 |
6,303 |
117.70 |
$742 |
$566 |
|||||
| Property Account Status/Adjustments/Exemptions | ||
|---|---|---|
| Account # | Exemption Description | Amount |
|
R033554416 |
5% Capped Account |
0 |
| Property Deed Transaction History (Recorded in the County Clerk's Office) | |||||||
|---|---|---|---|---|---|---|---|
| Date | Type | Book | Page | Price | Grantor | Grantee | |
|
7/12/2004 |
|
Deeds |
$0 |
DAVIS LAWRENCE T TODD MELVIN R |
TODD MELVIN R |
||
|
7/12/2004 |
|
Deeds |
$0 |
DAVIS LAWRENCE T & ELMYRA R |
DAVIS LAWRENCE T |
||
|
7/12/2004 |
|
Deeds |
$77,000 |
TODD MELVIN R |
TAYLOR CARTRIE |
||
|
5/1/1977 |
|
Historical |
$0 |
|
TODD MELVIN R |
||
| Last Mailed Notice of Value (N.O.V.) Information/History | ||||||||
|---|---|---|---|---|---|---|---|---|
| Year | Date | Market Value | Taxable Market Value | Gross Assessed | Exemption | Net Assessed | ||
|
2026 |
02/23/2026 |
181,000 |
78,472 |
8,631 |
0 |
8,631 |
||
|
2025 |
02/14/2025 |
171,000 |
74,736 |
8,220 |
1,000 |
7,220 |
||
|
2024 |
02/13/2024 |
160,500 |
72,560 |
7,981 |
1,000 |
6,981 |
||
|
2023 |
02/14/2023 |
147,000 |
70,447 |
7,748 |
1,000 |
6,748 |
||
|
2022 |
03/15/2022 |
110,000 |
68,396 |
7,522 |
1,000 |
6,522 |
||
| Property Building Permit History | |||||||||||
|---|---|---|---|---|---|---|---|---|---|---|---|
| Issued | Permit # | Provided by | Bldg # | Description | Est Construction Cost | Status | |||||
| No Building Permit records returned. | |||||||||||
| Click button on building number to access detailed information: | ||||||
|---|---|---|---|---|---|---|
| Bldg # | Vacant/Improved Land | Bldg Description | Year Built | SqFt | # Stories | |
|
1 |
Improved |
Ranch 1 Story |
1930 |
1,812 |
1 Stories |
|