|
|
|
| Larry Stein Oklahoma County Assessor (405) 713-1200 - Public Access System |
|
|
|
|
|
|
| Real Property Display - Screen Produced 3/5/2026 6:03:47 PM | ||||
|---|---|---|---|---|
| Account: R033554448 | Type: Residential | Location: |
1120 NE 15TH ST |
|
| Building Name/Occupant: |
|
OKLAHOMA CITY |
||
| Owner Name 1: | GOLSON VICTOR JAMES |
Parcel PIN#: |
2703-03-355-4448 |
|
| Owner Name 2: | 1/4 section #: |
2703 |
||
| Owner Name 3: | Parent Acct: |
2703-03-355-4480 |
||
| Billing Address: | 1916 MIRAMAR BLVD | Tax District: |
|
|
| City, State, Zip | OKLAHOMA CITY, OK 73111-1803 | School System: |
Oklahoma City #89 |
|
|
Country: (If noted) |
Land Size: |
0.3788 Acres |
||
|
Land Value: 37,620 |
|
|||
|
Sect 26-T12N-R3W Qtr SW |
CULBERTSON HEIGHTS ADDITION
Block
010
Lot
000
|
|||
| Full Legal Description: CULBERTSON HEIGHTS ADDITION 010 000 LOTS 4 & 5 |
| Photo & Sketch (if available) | Comp Sales (ordered by relevancy) |
|
||||||||||||||||||
|
||||||||||||||||||||
| Value History (*The County Treasurer 405-713-1300 posts & collects actual tax amounts. Contact information HERE) | |||||||||||||
|---|---|---|---|---|---|---|---|---|---|---|---|---|---|
| Year | Market Value | Taxable Mkt Value | Gross Assessed | Exemption | Net Assessed | Millage | Est. Tax | Tax Savings | |||||
|
2025 |
135,500 |
70,917 |
7,800 |
0 |
7,800 |
122.90 |
$959 |
$873 |
|||||
|
2024 |
128,500 |
67,540 |
7,428 |
0 |
7,428 |
123.89 |
$920 |
$831 |
|||||
|
2023 |
120,500 |
64,324 |
7,074 |
0 |
7,074 |
122.82 |
$869 |
$759 |
|||||
|
2022 |
89,000 |
61,261 |
6,737 |
0 |
6,737 |
117.63 |
$793 |
$359 |
|||||
|
2021 |
81,000 |
58,344 |
6,417 |
0 |
6,417 |
117.70 |
$755 |
$293 |
|||||
| Property Account Status/Adjustments/Exemptions | ||
|---|---|---|
| Account # | Exemption Description | Amount |
|
R033554448 |
5% Capped Account |
0 |
| Property Deed Transaction History (Recorded in the County Clerk's Office) | ||||||||||
|---|---|---|---|---|---|---|---|---|---|---|
| Date | Type | Book | Page | Price | Grantor | Grantee | ||||
|
3/4/2010 |
|
Hmstd Off & |
$0 |
GOLSON MARILYN M |
GOLSON VICTOR JAMES |
|||||
|
2/4/1999 |
|
Historical |
$13,000 |
HOME EQUITIES LTD |
GOLSON MARILYN M |
|||||
|
6/14/1994 |
|
Historical |
$0 |
CARROLL INAS L ETAL |
HOME EQUITIES LTD |
|||||
|
6/22/1993 |
|
Historical |
$0 |
RICHARDSON WILLIAM E |
CARROLL INAS L ETAL |
|||||
|
9/26/1991 |
|
Historical |
$0 |
RICHARDSON L E |
RICHARDSON WILLIAM E |
|||||
| Last Mailed Notice of Value (N.O.V.) Information/History | ||||||||
|---|---|---|---|---|---|---|---|---|
| Year | Date | Market Value | Taxable Market Value | Gross Assessed | Exemption | Net Assessed | ||
|
2026 |
02/23/2026 |
147,000 |
74,462 |
8,190 |
0 |
8,190 |
||
|
2025 |
02/14/2025 |
135,500 |
70,917 |
7,800 |
0 |
7,800 |
||
|
2024 |
02/13/2024 |
128,500 |
67,540 |
7,428 |
0 |
7,428 |
||
|
2023 |
02/14/2023 |
120,500 |
64,324 |
7,074 |
0 |
7,074 |
||
|
2022 |
03/15/2022 |
89,000 |
61,261 |
6,737 |
0 |
6,737 |
||
| Property Building Permit History | |||||||||||
|---|---|---|---|---|---|---|---|---|---|---|---|
| Issued | Permit # | Provided by | Bldg # | Description | Est Construction Cost | Status | |||||
| No Building Permit records returned. | |||||||||||
| Click button on building number to access detailed information: | ||||||
|---|---|---|---|---|---|---|
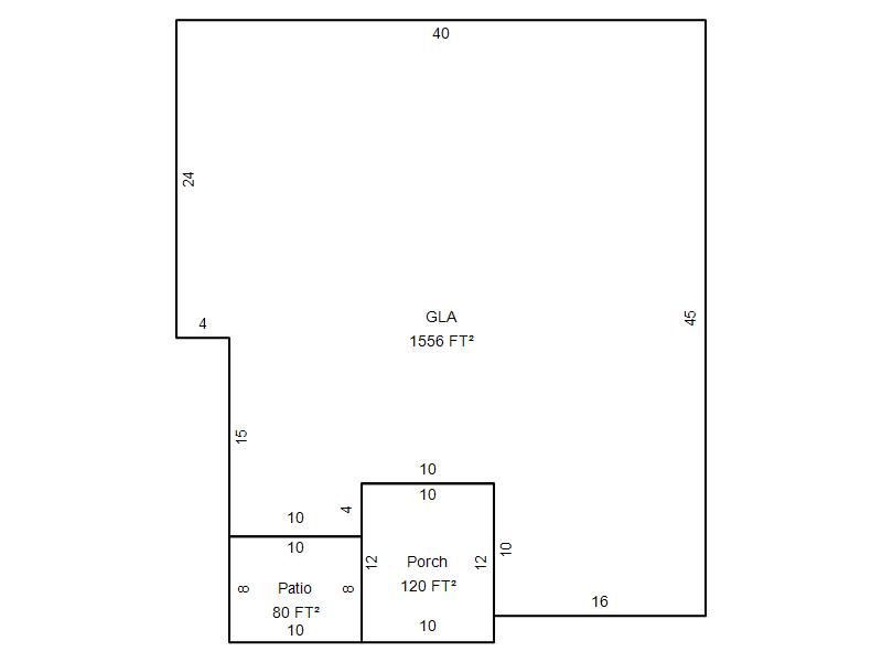
| Bldg # | Vacant/Improved Land | Bldg Description | Year Built | SqFt | # Stories | |
|
1 |
Improved |
Ranch 1 Story |
1930 |
1,556 |
1 Stories |
|