|
|
|
| Larry Stein Oklahoma County Assessor (405) 713-1200 - Public Access System |
|
|
|
|
|
|
| Real Property Display - Screen Produced 3/5/2026 6:01:20 PM | ||||
|---|---|---|---|---|
| Account: R033554608 | Type: Residential | Location: |
1100 NE 15TH ST |
|
| Building Name/Occupant: |
|
OKLAHOMA CITY |
||
| Owner Name 1: | MIMS MERILYN D & VELIA E |
Parcel PIN#: |
2703-03-355-4608 |
|
| Owner Name 2: | 1/4 section #: |
2703 |
||
| Owner Name 3: | Parent Acct: |
|
||
| Billing Address: | 1100 NE 15TH ST | Tax District: |
|
|
| City, State, Zip | OKLAHOMA CITY, OK 73117-1010 | School System: |
Oklahoma City #89 |
|
|
Country: (If noted) |
Land Size: |
0.1963 Acres |
||
|
Land Value: 24,368 |
|
|||
|
Sect 26-T12N-R3W Qtr SW |
CULBERTSON HEIGHTS ADDITION
Block
010
Lot
009
|
|||
| Full Legal Description: CULBERTSON HEIGHTS ADDITION 010 009 |
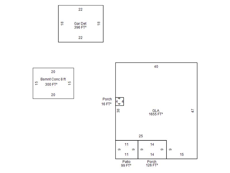
| Photo & Sketch (if available) | Comp Sales (ordered by relevancy) |
|
||||||||||||||||||
|
||||||||||||||||||||
| Value History (*The County Treasurer 405-713-1300 posts & collects actual tax amounts. Contact information HERE) | |||||||||||||
|---|---|---|---|---|---|---|---|---|---|---|---|---|---|
| Year | Market Value | Taxable Mkt Value | Gross Assessed | Exemption | Net Assessed | Millage | Est. Tax | Tax Savings | |||||
|
2025 |
168,000 |
72,097 |
7,930 |
0 |
7,930 |
122.90 |
$975 |
$1,297 |
|||||
|
2024 |
157,500 |
68,664 |
7,552 |
0 |
7,552 |
123.89 |
$936 |
$1,211 |
|||||
|
2023 |
144,500 |
65,395 |
7,192 |
0 |
7,192 |
122.82 |
$883 |
$1,069 |
|||||
|
2022 |
107,500 |
62,281 |
6,850 |
0 |
6,850 |
117.63 |
$806 |
$585 |
|||||
|
2021 |
98,500 |
59,316 |
6,524 |
0 |
6,524 |
117.70 |
$768 |
$507 |
|||||
| Property Account Status/Adjustments/Exemptions | ||
|---|---|---|
| Account # | Exemption Description | Amount |
|
R033554608 |
5% Capped Account |
0 |
| Property Deed Transaction History (Recorded in the County Clerk's Office) | |||||||
|---|---|---|---|---|---|---|---|
| Date | Type | Book | Page | Price | Grantor | Grantee | |
|
6/8/1999 |
|
Deeds |
$46,000 |
THE OKLAHOMA UNITED METHODIST |
MIMS MERILYN D & VELIA E |
||
|
3/14/1989 |
|
Historical |
$0 |
OKLAHOMA UNITED METHODIST |
MCFALL CLARA V LF EST |
||
|
12/8/1988 |
|
Historical |
$0 |
MCFALL CLARA |
OKLAHOMA UNITED METHODIST |
||
|
1/1/1976 |
|
Historical |
$0 |
|
MCFALL CLARA |
||
| Last Mailed Notice of Value (N.O.V.) Information/History | ||||||||
|---|---|---|---|---|---|---|---|---|
| Year | Date | Market Value | Taxable Market Value | Gross Assessed | Exemption | Net Assessed | ||
|
2026 |
02/23/2026 |
178,000 |
75,701 |
8,326 |
0 |
8,326 |
||
|
2025 |
02/14/2025 |
168,000 |
72,097 |
7,930 |
0 |
7,930 |
||
|
2024 |
02/13/2024 |
157,500 |
68,664 |
7,552 |
0 |
7,552 |
||
|
2023 |
02/14/2023 |
144,500 |
65,395 |
7,192 |
0 |
7,192 |
||
|
2022 |
03/15/2022 |
107,500 |
62,281 |
6,850 |
0 |
6,850 |
||
| Property Building Permit History | |||||||||||
|---|---|---|---|---|---|---|---|---|---|---|---|
| Issued | Permit # | Provided by | Bldg # | Description | Est Construction Cost | Status | |||||
| No Building Permit records returned. | |||||||||||
| Click button on building number to access detailed information: | ||||||
|---|---|---|---|---|---|---|
| Bldg # | Vacant/Improved Land | Bldg Description | Year Built | SqFt | # Stories | |
|
1 |
Improved |
Ranch 1 Story |
1929 |
1,655 |
1 Stories |
|