|
|
|
| Larry Stein Oklahoma County Assessor (405) 713-1200 - Public Access System |
|
|
|
|
|
|
| Real Property Display - Screen Produced 3/5/2026 6:01:19 PM | ||||
|---|---|---|---|---|
| Account: R033554672 | Type: Residential | Location: |
1105 NE 14TH ST |
|
| Building Name/Occupant: |
|
OKLAHOMA CITY |
||
| Owner Name 1: | PRICE JOSEPH O III & STACY |
Parcel PIN#: |
2703-03-355-4672 |
|
| Owner Name 2: | 1/4 section #: |
2703 |
||
| Owner Name 3: | Parent Acct: |
|
||
| Billing Address: | 1109 NE 14TH ST | Tax District: |
|
|
| City, State, Zip | OKLAHOMA CITY, OK 73117-1003 | School System: |
Oklahoma City #89 |
|
|
Country: (If noted) |
Land Size: |
0.2135 Acres |
||
|
Land Value: 26,505 |
|
|||
|
Sect 26-T12N-R3W Qtr SW |
CULBERTSON HEIGHTS ADDITION
Block
010
Lot
011
|
|||
| Full Legal Description: CULBERTSON HEIGHTS ADDITION 010 011 |
| No comparable sales report available. | ||||||||||||||||||||||
|
||||||||||||||||||||||
| Value History (*The County Treasurer 405-713-1300 posts & collects actual tax amounts. Contact information HERE) | |||||||||||||
|---|---|---|---|---|---|---|---|---|---|---|---|---|---|
| Year | Market Value | Taxable Mkt Value | Gross Assessed | Exemption | Net Assessed | Millage | Est. Tax | Tax Savings | |||||
|
2025 |
31,145 |
20,618 |
2,267 |
0 |
2,267 |
122.90 |
$279 |
$142 |
|||||
|
2024 |
31,145 |
19,637 |
2,159 |
0 |
2,159 |
123.89 |
$268 |
$157 |
|||||
|
2023 |
31,145 |
18,702 |
2,056 |
0 |
2,056 |
122.82 |
$253 |
$168 |
|||||
|
2022 |
31,145 |
17,812 |
1,958 |
0 |
1,958 |
117.63 |
$230 |
$173 |
|||||
|
2021 |
31,145 |
16,964 |
1,865 |
0 |
1,865 |
117.70 |
$220 |
$184 |
|||||
| Property Account Status/Adjustments/Exemptions | ||
|---|---|---|
| Account # | Exemption Description | Amount |
|
R033554672 |
5% Capped Account |
0 |
| Property Deed Transaction History (Recorded in the County Clerk's Office) | |||||||
|---|---|---|---|---|---|---|---|
| Date | Type | Book | Page | Price | Grantor | Grantee | |
|
2/2/1996 |
|
Historical |
$8,000 |
HOOPER MILDRED LOUISE |
PRICE JOSEPH O III & STACY |
||
|
1/22/1991 |
|
Historical |
$0 |
HOOPER JAMES L |
HOOPER MILDRED LOUISE |
||
|
11/11/1911 |
|
Historical |
$0 |
|
HOOPER J L |
||
| Last Mailed Notice of Value (N.O.V.) Information/History | ||||||||
|---|---|---|---|---|---|---|---|---|
| Year | Date | Market Value | Taxable Market Value | Gross Assessed | Exemption | Net Assessed | ||
|
2026 |
02/23/2026 |
31,145 |
21,648 |
2,380 |
0 |
2,380 |
||
|
2025 |
02/14/2025 |
31,145 |
20,618 |
2,267 |
0 |
2,267 |
||
|
2024 |
02/13/2024 |
31,145 |
19,637 |
2,159 |
0 |
2,159 |
||
|
2023 |
02/14/2023 |
31,145 |
18,702 |
2,056 |
0 |
2,056 |
||
|
2022 |
03/15/2022 |
31,145 |
17,812 |
1,958 |
0 |
1,958 |
||
| Property Building Permit History | |||||||||||
|---|---|---|---|---|---|---|---|---|---|---|---|
| Issued | Permit # | Provided by | Bldg # | Description | Est Construction Cost | Status | |||||
| No Building Permit records returned. | |||||||||||
| Click button on building number to access detailed information: | ||||||
|---|---|---|---|---|---|---|
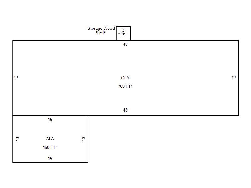
| Bldg # | Vacant/Improved Land | Bldg Description | Year Built | SqFt | # Stories | |
|
1 |
Improved |
Salvage |
1948 |
928 |
1 Stories |
|