|
|
|
| Larry Stein Oklahoma County Assessor (405) 713-1200 - Public Access System |
|
|
|
|
|
|
| Real Property Display - Screen Produced 3/5/2026 6:01:19 PM | ||||
|---|---|---|---|---|
| Account: R033554864 | Type: Residential | Location: |
1129 NE 14TH ST |
|
| Building Name/Occupant: |
|
OKLAHOMA CITY |
||
| Owner Name 1: | OMEGA INVESTMENTS LLC |
Parcel PIN#: |
2703-03-355-4864 |
|
| Owner Name 2: | 1/4 section #: |
2703 |
||
| Owner Name 3: | Parent Acct: |
|
||
| Billing Address: | 20 NW 13TH ST, Unit 200 | Tax District: |
|
|
| City, State, Zip | OKLAHOMA CITY, OK 73103 | School System: |
Oklahoma City #89 |
|
|
Country: (If noted) |
Land Size: |
0.2204 Acres |
||
|
Land Value: 27,360 |
|
|||
|
Sect 26-T12N-R3W Qtr SW |
CULBERTSON HEIGHTS ADDITION
Block
010
Lot
017
|
|||
| Full Legal Description: CULBERTSON HEIGHTS ADDITION 010 017 |
| Photo & Sketch (if available) | Comp Sales (ordered by relevancy) |
|
||||||||||||||||||
|
||||||||||||||||||||
| Value History (*The County Treasurer 405-713-1300 posts & collects actual tax amounts. Contact information HERE) | |||||||||||||
|---|---|---|---|---|---|---|---|---|---|---|---|---|---|
| Year | Market Value | Taxable Mkt Value | Gross Assessed | Exemption | Net Assessed | Millage | Est. Tax | Tax Savings | |||||
|
2025 |
355,500 |
352,248 |
38,747 |
0 |
38,747 |
122.90 |
$4,762 |
$44 |
|||||
|
2024 |
335,500 |
335,475 |
36,902 |
0 |
36,902 |
123.89 |
$4,572 |
$0 |
|||||
|
2023 |
319,500 |
319,500 |
35,145 |
0 |
35,145 |
122.82 |
$4,317 |
$0 |
|||||
|
2022 |
40,615 |
40,615 |
4,467 |
0 |
4,467 |
117.63 |
$526 |
$0 |
|||||
|
2021 |
132,500 |
94,808 |
10,428 |
0 |
10,428 |
117.70 |
$1,227 |
$488 |
|||||
| Property Account Status/Adjustments/Exemptions | ||
|---|---|---|
| Account # | Exemption Description | Amount |
|
R033554864 |
5% Capped Account |
0 |
| Property Deed Transaction History (Recorded in the County Clerk's Office) | ||||||||||
|---|---|---|---|---|---|---|---|---|---|---|
| Date | Type | Book | Page | Price | Grantor | Grantee | ||||
|
4/12/2021 |
|
Hmstd Off & |
$0 |
SNELL BEN & BONITA |
HUGHES WILLIE III |
|||||
|
2/8/2021 |
|
Deeds |
$80,000 |
HUGHES WILLIE III |
INSTANTHOUSEOFFER LLC |
|||||
|
2/8/2021 |
|
Deeds |
$126,000 |
INSTANTHOUSEOFFER LLC |
OMEGA INVESTMENTS LLC |
|||||
|
2/18/2005 |
|
Other |
$0 |
HUGHES WILLIE III |
SNELL BEN & BONITA |
|||||
|
4/21/2004 |
|
Deeds |
$40,000 |
ASSOCIATES FINANCIAL SERVICES CO INC C/O CITIFINANCIAL SERVI |
HUGHES WILLIE III |
|||||
| Last Mailed Notice of Value (N.O.V.) Information/History | ||||||||
|---|---|---|---|---|---|---|---|---|
| Year | Date | Market Value | Taxable Market Value | Gross Assessed | Exemption | Net Assessed | ||
|
2026 |
02/23/2026 |
380,500 |
369,860 |
40,684 |
0 |
40,684 |
||
|
2025 |
02/14/2025 |
355,500 |
352,248 |
38,747 |
0 |
38,747 |
||
|
2024 |
02/13/2024 |
335,500 |
335,475 |
36,902 |
0 |
36,902 |
||
|
2023 |
03/02/2023 |
319,500 |
319,500 |
35,145 |
0 |
35,145 |
||
|
2021 |
03/19/2021 |
132,500 |
94,808 |
10,428 |
0 |
10,428 |
||
| Property Building Permit History | ||||||
|---|---|---|---|---|---|---|
| Issued | Permit # | Provided by | Bldg # | Description | Est Construction Cost | Status |
|
7/19/2021 |
BLDR-2021-01748 |
|
1 |
Remodeled |
150,000 |
Inactive |
| Click button on building number to access detailed information: | ||||||
|---|---|---|---|---|---|---|
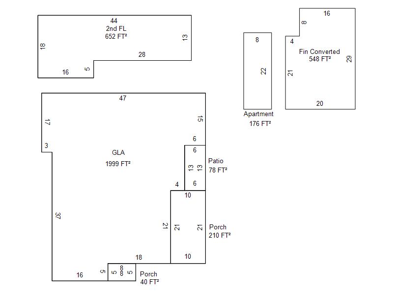
| Bldg # | Vacant/Improved Land | Bldg Description | Year Built | SqFt | # Stories | |
|
1 |
Improved |
1½ Story Fin |
1932 |
2,651 |
1.5 Stories |
|