|
|
|
| Larry Stein Oklahoma County Assessor (405) 713-1200 - Public Access System |
|
|
|
|
|
|
| Real Property Display - Screen Produced 3/5/2026 6:03:55 PM | ||||
|---|---|---|---|---|
| Account: R033554992 | Type: Residential | Location: |
1116 NE 14TH ST |
|
| Building Name/Occupant: |
|
OKLAHOMA CITY |
||
| Owner Name 1: | PICOU JOYCE J TRS |
Parcel PIN#: |
2703-03-355-4992 |
|
| Owner Name 2: | PICOU JOYCE J REV TRUST | 1/4 section #: |
2703 |
|
| Owner Name 3: | Parent Acct: |
|
||
| Billing Address: | 4905 NE 38TH ST | Tax District: |
|
|
| City, State, Zip | OKLAHOMA CITY, OK 73121-6440 | School System: |
Oklahoma City #89 |
|
|
Country: (If noted) |
Land Size: |
0.1749 Acres |
||
|
Land Value: 21,717 |
|
|||
|
Sect 26-T12N-R3W Qtr SW |
CULBERTSON HEIGHTS ADDITION
Block
011
Lot
006
|
|||
| Full Legal Description: CULBERTSON HEIGHTS ADDITION 011 006 |
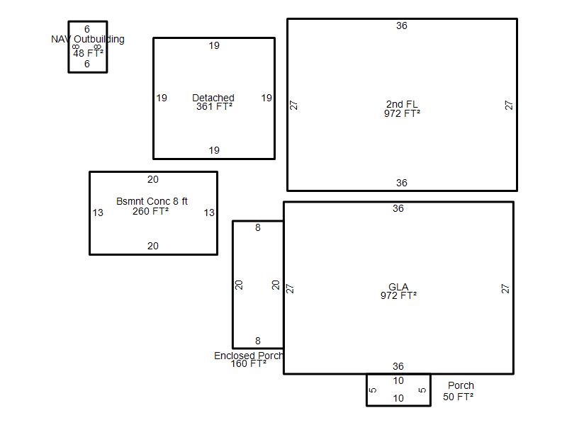
| Photo & Sketch (if available) | Comp Sales (ordered by relevancy) |
|
||||||||||||||||||
|
||||||||||||||||||||
| Value History (*The County Treasurer 405-713-1300 posts & collects actual tax amounts. Contact information HERE) | |||||||||||||
|---|---|---|---|---|---|---|---|---|---|---|---|---|---|
| Year | Market Value | Taxable Mkt Value | Gross Assessed | Exemption | Net Assessed | Millage | Est. Tax | Tax Savings | |||||
|
2025 |
186,000 |
61,038 |
6,713 |
0 |
6,713 |
122.90 |
$825 |
$1,689 |
|||||
|
2024 |
176,500 |
58,132 |
6,394 |
0 |
6,394 |
123.89 |
$792 |
$1,613 |
|||||
|
2023 |
159,500 |
55,364 |
6,090 |
0 |
6,090 |
122.82 |
$748 |
$1,407 |
|||||
|
2022 |
119,000 |
52,728 |
5,799 |
0 |
5,799 |
117.63 |
$682 |
$858 |
|||||
|
2021 |
108,500 |
50,218 |
5,523 |
0 |
5,523 |
117.70 |
$650 |
$755 |
|||||
| Property Account Status/Adjustments/Exemptions | ||
|---|---|---|
| Account # | Exemption Description | Amount |
|
R033554992 |
5% Capped Account |
0 |
| Property Deed Transaction History (Recorded in the County Clerk's Office) | |||||||
|---|---|---|---|---|---|---|---|
| Date | Type | Book | Page | Price | Grantor | Grantee | |
|
12/16/2003 |
|
Deeds |
$0 |
PICOU JAMES H & JOYCE J |
PICOU JOYCE J |
||
|
12/16/2003 |
|
Deeds |
$0 |
PICOU JOYCE J |
PICOU JOYCE J TRS |
||
|
11/11/1911 |
|
Historical |
$0 |
|
PICOU JAMES H & JOYCE J |
||
| Last Mailed Notice of Value (N.O.V.) Information/History | ||||||||
|---|---|---|---|---|---|---|---|---|
| Year | Date | Market Value | Taxable Market Value | Gross Assessed | Exemption | Net Assessed | ||
|
2026 |
02/23/2026 |
197,500 |
64,089 |
7,049 |
0 |
7,049 |
||
|
2025 |
02/14/2025 |
186,000 |
61,038 |
6,713 |
0 |
6,713 |
||
|
2024 |
02/13/2024 |
176,500 |
58,132 |
6,394 |
0 |
6,394 |
||
|
2023 |
02/14/2023 |
159,500 |
55,364 |
6,090 |
0 |
6,090 |
||
|
2022 |
03/15/2022 |
119,000 |
52,728 |
5,799 |
0 |
5,799 |
||
| Property Building Permit History | |||||||||||
|---|---|---|---|---|---|---|---|---|---|---|---|
| Issued | Permit # | Provided by | Bldg # | Description | Est Construction Cost | Status | |||||
| No Building Permit records returned. | |||||||||||
| Click button on building number to access detailed information: | ||||||
|---|---|---|---|---|---|---|
| Bldg # | Vacant/Improved Land | Bldg Description | Year Built | SqFt | # Stories | |
|
1 |
Improved |
2 Story |
1950 |
1,944 |
2 Stories |
|