|
|
|
| Larry Stein Oklahoma County Assessor (405) 713-1200 - Public Access System |
|
|
|
|
|
|
| Real Property Display - Screen Produced 3/5/2026 6:01:06 PM | ||||
|---|---|---|---|---|
| Account: R033555088 | Type: Residential | Location: |
1104 NE 14TH ST |
|
| Building Name/Occupant: |
|
OKLAHOMA CITY |
||
| Owner Name 1: | MILLER KAROL L |
Parcel PIN#: |
2703-03-355-5088 |
|
| Owner Name 2: | MILLER BARBARA | 1/4 section #: |
2703 |
|
| Owner Name 3: | Parent Acct: |
|
||
| Billing Address: | 3420 E FOREST PARK DR | Tax District: |
|
|
| City, State, Zip | OKLAHOMA CITY, OK 73121-2228 | School System: |
Oklahoma City #89 |
|
|
Country: (If noted) |
Land Size: |
0.1778 Acres |
||
|
Land Value: 22,079 |
|
|||
|
Sect 26-T12N-R3W Qtr SW |
CULBERTSON HEIGHTS ADDITION
Block
011
Lot
009
|
|||
| Full Legal Description: CULBERTSON HEIGHTS ADDITION 011 009 |
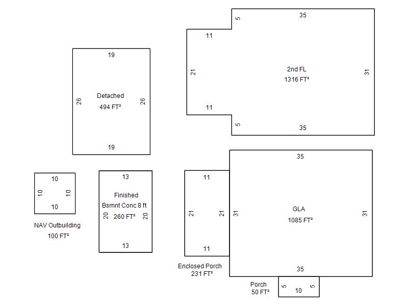
| Photo & Sketch (if available) | Comp Sales (ordered by relevancy) |
|
||||||||||||||||||
|
||||||||||||||||||||
| Value History (*The County Treasurer 405-713-1300 posts & collects actual tax amounts. Contact information HERE) | |||||||||||||
|---|---|---|---|---|---|---|---|---|---|---|---|---|---|
| Year | Market Value | Taxable Mkt Value | Gross Assessed | Exemption | Net Assessed | Millage | Est. Tax | Tax Savings | |||||
|
2025 |
222,000 |
115,976 |
12,756 |
0 |
12,756 |
122.90 |
$1,568 |
$1,433 |
|||||
|
2024 |
208,000 |
110,454 |
12,149 |
0 |
12,149 |
123.89 |
$1,505 |
$1,329 |
|||||
|
2023 |
193,000 |
105,195 |
11,571 |
0 |
11,571 |
122.82 |
$1,421 |
$1,186 |
|||||
|
2022 |
150,500 |
100,186 |
11,019 |
0 |
11,019 |
117.63 |
$1,296 |
$651 |
|||||
|
2021 |
128,500 |
95,416 |
10,495 |
0 |
10,495 |
117.70 |
$1,235 |
$428 |
|||||
| Property Account Status/Adjustments/Exemptions | ||
|---|---|---|
| Account # | Exemption Description | Amount |
|
R033555088 |
5% Capped Account |
0 |
| Property Deed Transaction History (Recorded in the County Clerk's Office) | ||||||||||
|---|---|---|---|---|---|---|---|---|---|---|
| Date | Type | Book | Page | Price | Grantor | Grantee | ||||
|
12/30/2016 |
|
Deeds |
$0 |
MILLER BARBARA |
MILLER KAROL L |
|||||
|
10/31/2005 |
|
Deeds |
$120,000 |
COUNTER GRAHAM E |
MILLER BARBARA |
|||||
|
5/5/2005 |
|
Hmstd Off & |
$0 |
LACOUR EDWINA A & ERNEST J |
COUNTER GRAHAM E |
|||||
|
4/19/2005 |
|
Hmstd Off & |
$0 |
COUNTER GRAHAM E |
LACOUR EDWINA A & ERNEST J |
|||||
|
5/15/2001 |
|
Deeds |
$0 |
COUNTER ERMA T COUNTER GRAHAM E |
COUNTER GRAHAM E |
|||||
| Last Mailed Notice of Value (N.O.V.) Information/History | ||||||||
|---|---|---|---|---|---|---|---|---|
| Year | Date | Market Value | Taxable Market Value | Gross Assessed | Exemption | Net Assessed | ||
|
2026 |
02/23/2026 |
239,500 |
121,774 |
13,394 |
0 |
13,394 |
||
|
2025 |
02/14/2025 |
222,000 |
115,976 |
12,756 |
0 |
12,756 |
||
|
2024 |
02/13/2024 |
208,000 |
110,454 |
12,149 |
0 |
12,149 |
||
|
2023 |
02/14/2023 |
193,000 |
105,195 |
11,571 |
0 |
11,571 |
||
|
2022 |
03/15/2022 |
150,500 |
100,186 |
11,019 |
0 |
11,019 |
||
| Property Building Permit History | |||||||||||
|---|---|---|---|---|---|---|---|---|---|---|---|
| Issued | Permit # | Provided by | Bldg # | Description | Est Construction Cost | Status | |||||
| No Building Permit records returned. | |||||||||||
| Click button on building number to access detailed information: | ||||||
|---|---|---|---|---|---|---|
| Bldg # | Vacant/Improved Land | Bldg Description | Year Built | SqFt | # Stories | |
|
1 |
Improved |
2 Story |
1930 |
2,401 |
2 Stories |
|