|
|
|
| Larry Stein Oklahoma County Assessor (405) 713-1200 - Public Access System |
|
|
|
|
|
|
| Real Property Display - Screen Produced 3/5/2026 6:03:46 PM | ||||
|---|---|---|---|---|
| Account: R033555120 | Type: Residential | Location: |
1414 N STONEWALL AVE |
|
| Building Name/Occupant: |
|
OKLAHOMA CITY |
||
| Owner Name 1: | DUHON MARY E |
Parcel PIN#: |
2703-03-355-5120 |
|
| Owner Name 2: | 1/4 section #: |
2703 |
||
| Owner Name 3: | Parent Acct: |
|
||
| Billing Address: | 1414 N STONEWALL AVE | Tax District: |
|
|
| City, State, Zip | OKLAHOMA CITY, OK 73117-1058 | School System: |
Oklahoma City #89 |
|
|
Country: (If noted) |
Land Size: |
0.1866 Acres |
||
|
Land Value: 23,165 |
|
|||
|
Sect 26-T12N-R3W Qtr SW |
CULBERTSON HEIGHTS ADDITION
Block
011
Lot
010
|
|||
| Full Legal Description: CULBERTSON HEIGHTS ADDITION 011 010 |
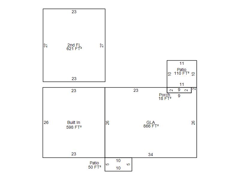
| Photo & Sketch (if available) | Comp Sales (ordered by relevancy) |
|
||||||||||||||||||
|
||||||||||||||||||||
| Value History (*The County Treasurer 405-713-1300 posts & collects actual tax amounts. Contact information HERE) | |||||||||||||
|---|---|---|---|---|---|---|---|---|---|---|---|---|---|
| Year | Market Value | Taxable Mkt Value | Gross Assessed | Exemption | Net Assessed | Millage | Est. Tax | Tax Savings | |||||
|
2025 |
170,000 |
49,538 |
5,448 |
1,000 |
4,448 |
122.90 |
$547 |
$1,751 |
|||||
|
2024 |
162,000 |
48,096 |
5,290 |
1,000 |
4,290 |
123.89 |
$532 |
$1,676 |
|||||
|
2023 |
153,500 |
46,696 |
5,135 |
1,000 |
4,135 |
122.82 |
$508 |
$1,566 |
|||||
|
2022 |
120,500 |
45,336 |
4,986 |
1,000 |
3,986 |
117.63 |
$469 |
$1,090 |
|||||
|
2021 |
104,500 |
44,016 |
4,841 |
1,000 |
3,841 |
117.70 |
$452 |
$901 |
|||||
| Property Account Status/Adjustments/Exemptions | ||
|---|---|---|
| Account # | Exemption Description | Amount |
|
R033555120 |
3% Cap Homestead |
0 |
|
R033555120 |
Homestead |
1,000 |
| Property Deed Transaction History (Recorded in the County Clerk's Office) | |||||||
|---|---|---|---|---|---|---|---|
| Date | Type | Book | Page | Price | Grantor | Grantee | |
|
9/5/1990 |
|
Historical |
$31,000 |
COUNTER PAUL L |
DUHON MARY E |
||
|
12/1/1986 |
|
Historical |
$0 |
COUNTER PAUL L & M J |
COUNTER PAUL L |
||
|
11/11/1911 |
|
Historical |
$0 |
|
COUNTER PAUL L & M J |
||
| Last Mailed Notice of Value (N.O.V.) Information/History | ||||||||
|---|---|---|---|---|---|---|---|---|
| Year | Date | Market Value | Taxable Market Value | Gross Assessed | Exemption | Net Assessed | ||
|
2026 |
02/23/2026 |
180,500 |
51,024 |
5,612 |
1,000 |
4,612 |
||
|
2025 |
02/14/2025 |
170,000 |
49,538 |
5,448 |
1,000 |
4,448 |
||
|
2024 |
02/13/2024 |
162,000 |
48,096 |
5,290 |
1,000 |
4,290 |
||
|
2023 |
02/14/2023 |
153,500 |
46,696 |
5,135 |
1,000 |
4,135 |
||
|
2022 |
03/15/2022 |
120,500 |
45,336 |
4,986 |
1,000 |
3,986 |
||
| Property Building Permit History | |||||||||||
|---|---|---|---|---|---|---|---|---|---|---|---|
| Issued | Permit # | Provided by | Bldg # | Description | Est Construction Cost | Status | |||||
| No Building Permit records returned. | |||||||||||
| Click button on building number to access detailed information: | ||||||
|---|---|---|---|---|---|---|
| Bldg # | Vacant/Improved Land | Bldg Description | Year Built | SqFt | # Stories | |
|
1 |
Improved |
2 Story |
1959 |
1,487 |
2 Stories |
|