|
|
|
| Larry Stein Oklahoma County Assessor (405) 713-1200 - Public Access System |
|
|
|
|
|
|
| Real Property Display - Screen Produced 3/5/2026 7:16:47 AM | ||||
|---|---|---|---|---|
| Account: R033632318 | Type: Residential | Location: |
1420 NE 15TH ST |
|
| Building Name/Occupant: |
|
OKLAHOMA CITY |
||
| Owner Name 1: | GAMBEL BLAKE & MEGAN |
Parcel PIN#: |
2703-03-363-2318 |
|
| Owner Name 2: | 1/4 section #: |
2703 |
||
| Owner Name 3: | Parent Acct: |
|
||
| Billing Address: | 1420 NE 15TH ST | Tax District: |
|
|
| City, State, Zip | OKLAHOMA CITY, OK 73117-2025 | School System: |
Oklahoma City #89 |
|
|
Country: (If noted) |
Land Size: |
0.1630 Acres |
||
|
Land Value: 20,235 |
|
|||
|
Sect 26-T12N-R3W Qtr SW |
CULBERTSON E HIGHLAND
Block
005
Lot
000
|
|||
| Full Legal Description: CULBERTSON E HIGHLAND 005 000 LOTS 7 & 8 |
| Photo & Sketch (if available) | Comp Sales (ordered by relevancy) |
|
||||||||||||||||||
|
||||||||||||||||||||
| Value History (*The County Treasurer 405-713-1300 posts & collects actual tax amounts. Contact information HERE) | |||||||||||||
|---|---|---|---|---|---|---|---|---|---|---|---|---|---|
| Year | Market Value | Taxable Mkt Value | Gross Assessed | Exemption | Net Assessed | Millage | Est. Tax | Tax Savings | |||||
|
2025 |
216,500 |
147,805 |
16,258 |
1,000 |
15,258 |
122.90 |
$1,875 |
$1,052 |
|||||
|
2024 |
206,000 |
143,500 |
15,784 |
1,000 |
14,784 |
123.89 |
$1,832 |
$976 |
|||||
|
2023 |
191,000 |
139,321 |
15,325 |
1,000 |
14,325 |
122.82 |
$1,759 |
$821 |
|||||
|
2022 |
150,500 |
135,264 |
14,878 |
1,000 |
13,878 |
117.63 |
$1,633 |
$315 |
|||||
|
2021 |
140,500 |
131,325 |
14,445 |
1,000 |
13,445 |
117.70 |
$1,583 |
$236 |
|||||
| Property Account Status/Adjustments/Exemptions | ||||||
|---|---|---|---|---|---|---|
| Account # | Exemption Description | Amount | ||||
| No adjustment/exemption records returned. | ||||||
| Property Deed Transaction History (Recorded in the County Clerk's Office) | ||||||||||
|---|---|---|---|---|---|---|---|---|---|---|
| Date | Type | Book | Page | Price | Grantor | Grantee | ||||
|
7/31/2025 |
|
Deeds |
$220,000 |
PETERS MEGAN K |
GAMBEL BLAKE & MEGAN |
|||||
|
1/10/2020 |
|
Deeds |
$0 |
PETERS KENTON H |
PETERS MEGAN K |
|||||
|
4/16/2019 |
|
Deeds |
$129,000 |
HUNT THOMAS M |
PETERS MEGAN K |
|||||
|
8/10/2018 |
|
Deeds |
$38,000 |
HOGG VANESSA DIANE |
HUNT THOMAS M |
|||||
|
1/23/2018 |
|
Deeds |
$0 |
SAVAGE BESSIE M ESTATE OF |
HOGG VANESSA DIANE |
|||||
| Last Mailed Notice of Value (N.O.V.) Information/History | ||||||||
|---|---|---|---|---|---|---|---|---|
| Year | Date | Market Value | Taxable Market Value | Gross Assessed | Exemption | Net Assessed | ||
|
2026 |
02/23/2026 |
224,500 |
224,500 |
24,695 |
0 |
24,695 |
||
|
2025 |
02/14/2025 |
216,500 |
147,805 |
16,258 |
1,000 |
15,258 |
||
|
2024 |
02/13/2024 |
206,000 |
143,500 |
15,784 |
1,000 |
14,784 |
||
|
2023 |
02/14/2023 |
191,000 |
139,321 |
15,325 |
1,000 |
14,325 |
||
|
2022 |
03/15/2022 |
150,500 |
135,264 |
14,878 |
1,000 |
13,878 |
||
| Property Building Permit History | |||||||||||
|---|---|---|---|---|---|---|---|---|---|---|---|
| Issued | Permit # | Provided by | Bldg # | Description | Est Construction Cost | Status | |||||
| No Building Permit records returned. | |||||||||||
| Click button on building number to access detailed information: | ||||||
|---|---|---|---|---|---|---|
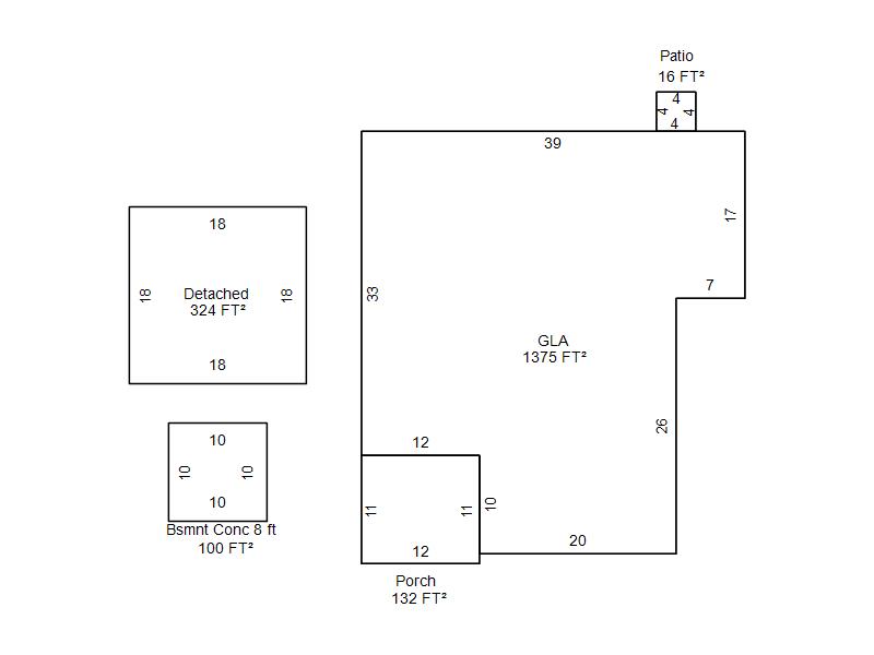
| Bldg # | Vacant/Improved Land | Bldg Description | Year Built | SqFt | # Stories | |
|
1 |
Improved |
Ranch 1 Story |
1930 |
1,375 |
1 Stories |
|