|
|
|
| Larry Stein Oklahoma County Assessor (405) 713-1200 - Public Access System |
|
|
|
|
|
|
| Real Property Display - Screen Produced 3/5/2026 7:33:35 AM | ||||
|---|---|---|---|---|
| Account: R033635244 | Type: Residential | Location: |
1420 NE 13TH ST |
|
| Building Name/Occupant: |
|
OKLAHOMA CITY |
||
| Owner Name 1: | JOHNSON CYNTHIA REGINA |
Parcel PIN#: |
2703-03-363-5244 |
|
| Owner Name 2: | 1/4 section #: |
2703 |
||
| Owner Name 3: | Parent Acct: |
|
||
| Billing Address: | 1420 NE 13TH ST | Tax District: |
|
|
| City, State, Zip | OKLAHOMA CITY, OK 73117-2017 | School System: |
Oklahoma City #89 |
|
|
Country: (If noted) |
Land Size: |
0.1630 Acres |
||
|
Land Value: 20,235 |
|
|||
|
Sect 26-T12N-R3W Qtr SW |
CULBERTSON E HIGHLAND
Block
012
Lot
000
|
|||
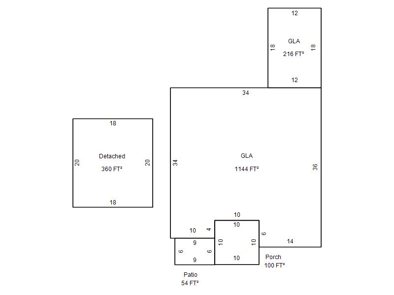
| Full Legal Description: CULBERTSON E HIGHLAND 012 000 LOTS 7 & 8 |
| Photo & Sketch (if available) | Comp Sales (ordered by relevancy) |
|
||||||||||||||||||
|
||||||||||||||||||||
| Value History (*The County Treasurer 405-713-1300 posts & collects actual tax amounts. Contact information HERE) | |||||||||||||
|---|---|---|---|---|---|---|---|---|---|---|---|---|---|
| Year | Market Value | Taxable Mkt Value | Gross Assessed | Exemption | Net Assessed | Millage | Est. Tax | Tax Savings | |||||
|
2025 |
123,000 |
35,881 |
3,945 |
1,000 |
2,945 |
122.90 |
$362 |
$1,301 |
|||||
|
2024 |
115,000 |
34,836 |
3,831 |
1,000 |
2,831 |
123.89 |
$351 |
$1,216 |
|||||
|
2023 |
108,000 |
33,822 |
3,720 |
0 |
3,720 |
122.82 |
$457 |
$1,002 |
|||||
|
2022 |
80,000 |
32,212 |
3,542 |
0 |
3,542 |
117.63 |
$417 |
$618 |
|||||
|
2021 |
73,500 |
30,679 |
3,374 |
0 |
3,374 |
117.70 |
$397 |
$554 |
|||||
| Property Account Status/Adjustments/Exemptions | ||
|---|---|---|
| Account # | Exemption Description | Amount |
|
R033635244 |
Homestead |
1,000 |
|
R033635244 |
3% Cap Homestead |
0 |
| Property Deed Transaction History (Recorded in the County Clerk's Office) | ||||||||||
|---|---|---|---|---|---|---|---|---|---|---|
| Date | Type | Book | Page | Price | Grantor | Grantee | ||||
|
7/12/2007 |
|
Deeds |
$0 |
DAVIS LEONARD ALEXANDER |
JOHNSON CYNTHIA REGINA |
|||||
|
5/27/1997 |
|
Deeds |
$0 |
DAVIS LEONARD A & CYNTHIA R |
DAVIS CYNTHIA REGINA |
|||||
|
7/7/1995 |
|
Historical |
$26,500 |
JOHNSON HERMAN O TRS |
DAVIS LEONARD A & CYNTHIA R |
|||||
|
8/25/1993 |
|
Historical |
$0 |
JOHNSON HERMAN O |
JOHNSON HERMAN O TRS |
|||||
|
5/13/1993 |
|
Historical |
$0 |
JOHNSON HERMAN O & ETHEL M |
JOHNSON HERMAN O |
|||||
| Last Mailed Notice of Value (N.O.V.) Information/History | ||||||||
|---|---|---|---|---|---|---|---|---|
| Year | Date | Market Value | Taxable Market Value | Gross Assessed | Exemption | Net Assessed | ||
|
2026 |
02/23/2026 |
134,500 |
36,957 |
4,064 |
1,000 |
3,064 |
||
|
2025 |
02/14/2025 |
123,000 |
35,881 |
3,945 |
1,000 |
2,945 |
||
|
2024 |
02/13/2024 |
115,000 |
34,836 |
3,831 |
1,000 |
2,831 |
||
|
2023 |
02/14/2023 |
108,000 |
33,822 |
3,720 |
0 |
3,720 |
||
|
2022 |
03/15/2022 |
80,000 |
32,212 |
3,542 |
0 |
3,542 |
||
| Property Building Permit History | |||||||||||
|---|---|---|---|---|---|---|---|---|---|---|---|
| Issued | Permit # | Provided by | Bldg # | Description | Est Construction Cost | Status | |||||
| No Building Permit records returned. | |||||||||||
| Click button on building number to access detailed information: | ||||||
|---|---|---|---|---|---|---|
| Bldg # | Vacant/Improved Land | Bldg Description | Year Built | SqFt | # Stories | |
|
1 |
Improved |
Ranch 1 Story |
1934 |
1,360 |
1 Stories |
|