|
|
|
| Larry Stein Oklahoma County Assessor (405) 713-1200 - Public Access System |
|
|
|
|
|
|
| Real Property Display - Screen Produced 3/5/2026 7:32:03 AM | ||||
|---|---|---|---|---|
| Account: R033636080 | Type: Residential | Location: |
1432 NE 12TH ST |
|
| Building Name/Occupant: |
|
OKLAHOMA CITY |
||
| Owner Name 1: | WEISS MATTHEW |
Parcel PIN#: |
2703-03-363-6080 |
|
| Owner Name 2: | 1/4 section #: |
2703 |
||
| Owner Name 3: | Parent Acct: |
|
||
| Billing Address: | 1432 NE 12TH ST | Tax District: |
|
|
| City, State, Zip | OKLAHOMA CITY, OK 73117 | School System: |
Oklahoma City #89 |
|
|
Country: (If noted) |
Land Size: |
0.1630 Acres |
||
|
Land Value: 20,235 |
|
|||
|
Sect 26-T12N-R3W Qtr SW |
CULBERTSON E HIGHLAND
Block
015
Lot
000
|
|||
| Full Legal Description: CULBERTSON E HIGHLAND 015 000 LOTS 1 & 2 |
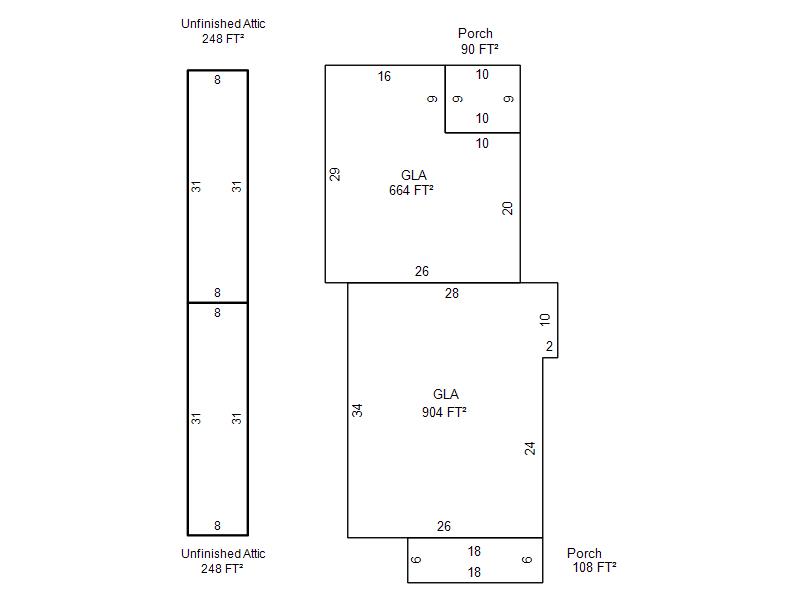
| Photo & Sketch (if available) | Comp Sales (ordered by relevancy) |
|
||||||||||||||||||
|
||||||||||||||||||||
| Value History (*The County Treasurer 405-713-1300 posts & collects actual tax amounts. Contact information HERE) | |||||||||||||
|---|---|---|---|---|---|---|---|---|---|---|---|---|---|
| Year | Market Value | Taxable Mkt Value | Gross Assessed | Exemption | Net Assessed | Millage | Est. Tax | Tax Savings | |||||
|
2025 |
233,500 |
183,483 |
20,183 |
0 |
20,183 |
122.90 |
$2,481 |
$676 |
|||||
|
2024 |
215,000 |
174,746 |
19,221 |
0 |
19,221 |
123.89 |
$2,381 |
$549 |
|||||
|
2023 |
196,500 |
166,425 |
18,306 |
0 |
18,306 |
122.82 |
$2,248 |
$406 |
|||||
|
2022 |
158,500 |
158,500 |
17,435 |
0 |
17,435 |
117.63 |
$2,051 |
$0 |
|||||
|
2021 |
188,500 |
188,500 |
20,735 |
0 |
20,735 |
117.70 |
$2,441 |
$0 |
|||||
| Property Account Status/Adjustments/Exemptions | ||||||
|---|---|---|---|---|---|---|
| Account # | Exemption Description | Amount | ||||
| No adjustment/exemption records returned. | ||||||
| Property Deed Transaction History (Recorded in the County Clerk's Office) | ||||||||||
|---|---|---|---|---|---|---|---|---|---|---|
| Date | Type | Book | Page | Price | Grantor | Grantee | ||||
|
12/23/2020 |
|
Deeds |
$189,000 |
APEX INVESTMENTS LLC |
WEISS MATTHEW |
|||||
|
2/8/2019 |
|
Deeds |
$24,500 |
PELFREY ROSEMARIE TRS |
APEX INVESTMENTS LLC |
|||||
|
9/28/2015 |
|
Hmstd Off & |
$0 |
PELFREY W RAY REV TRUST |
PELFREY ROSEMARIE TRS |
|||||
|
12/19/2011 |
|
Hmstd Off & |
$0 |
HALE MAGGIE M |
OMEGA ENTERPRISES LLC |
|||||
|
12/16/2011 |
|
Hmstd Off & |
$0 |
OMEGA ENTERPRISES LLC |
HALE MAGGIE M |
|||||
| Last Mailed Notice of Value (N.O.V.) Information/History | ||||||||
|---|---|---|---|---|---|---|---|---|
| Year | Date | Market Value | Taxable Market Value | Gross Assessed | Exemption | Net Assessed | ||
|
2026 |
02/23/2026 |
228,500 |
192,657 |
21,192 |
0 |
21,192 |
||
|
2025 |
02/14/2025 |
233,500 |
183,483 |
20,183 |
0 |
20,183 |
||
|
2024 |
02/13/2024 |
215,000 |
174,746 |
19,221 |
0 |
19,221 |
||
|
2023 |
02/14/2023 |
196,500 |
166,425 |
18,306 |
0 |
18,306 |
||
|
2021 |
03/19/2021 |
98,000 |
98,000 |
10,780 |
0 |
10,780 |
||
| Property Building Permit History | ||||||
|---|---|---|---|---|---|---|
| Issued | Permit # | Provided by | Bldg # | Description | Est Construction Cost | Status |
|
1/9/2020 |
BLDR-2019-06491 |
|
1 |
Remodeled |
20,000 |
Inactive |
|
6/18/2009 |
10383136 |
OKLAHOMA CITY |
1 |
Demolish |
0 |
Inactive |
| Click button on building number to access detailed information: | ||||||
|---|---|---|---|---|---|---|
| Bldg # | Vacant/Improved Land | Bldg Description | Year Built | SqFt | # Stories | |
|
1 |
Improved |
Duplex One half Story |
1930 |
1,568 |
1.5 Stories |
|