|
|
|
| Larry Stein Oklahoma County Assessor (405) 713-1200 - Public Access System |
|
|
|
|
|
|
| Real Property Display - Screen Produced 3/5/2026 7:36:50 PM | ||||
|---|---|---|---|---|
| Account: R030116900 | Type: Residential | Location: |
1429 NE 17TH ST |
|
| Building Name/Occupant: |
|
OKLAHOMA CITY |
||
| Owner Name 1: | LAFLEUR CAMILLE T |
Parcel PIN#: |
2704-03-011-6900 |
|
| Owner Name 2: | 1/4 section #: |
2704 |
||
| Owner Name 3: | Parent Acct: |
|
||
| Billing Address: | 1429 NE 17TH ST | Tax District: |
|
|
| City, State, Zip | OKLAHOMA CITY, OK 73111-1103 | School System: |
Oklahoma City #89 |
|
|
Country: (If noted) |
Land Size: |
0.1550 Acres |
||
|
Land Value: 11,475 |
|
|||
|
Sect 26-T12N-R3W Qtr NW |
BANCROFT ADDITION
Block
003
Lot
000
|
|||
| Full Legal Description: BANCROFT ADDITION 003 000 LOTS 39 & 40 |
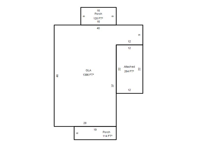
| Photo & Sketch (if available) | Comp Sales (ordered by relevancy) |
|
||||||||||||||||||
|
||||||||||||||||||||
| Value History (*The County Treasurer 405-713-1300 posts & collects actual tax amounts. Contact information HERE) | |||||||||||||
|---|---|---|---|---|---|---|---|---|---|---|---|---|---|
| Year | Market Value | Taxable Mkt Value | Gross Assessed | Exemption | Net Assessed | Millage | Est. Tax | Tax Savings | |||||
|
2025 |
235,000 |
235,000 |
25,850 |
1,000 |
24,850 |
122.90 |
$3,054 |
$123 |
|||||
|
2024 |
229,000 |
229,000 |
25,190 |
1,000 |
24,190 |
123.89 |
$2,997 |
$124 |
|||||
|
2023 |
11,475 |
11,475 |
1,262 |
0 |
1,262 |
122.82 |
$155 |
$0 |
|||||
|
2022 |
11,475 |
11,475 |
1,262 |
0 |
1,262 |
117.63 |
$148 |
$0 |
|||||
|
2021 |
0 |
0 |
0 |
0 |
0 |
117.70 |
$0 |
$0 |
|||||
| Property Account Status/Adjustments/Exemptions | ||
|---|---|---|
| Account # | Exemption Description | Amount |
|
R030116900 |
3% Cap Homestead |
0 |
|
R030116900 |
Homestead |
1,000 |
| Property Deed Transaction History (Recorded in the County Clerk's Office) | |||||||
|---|---|---|---|---|---|---|---|
| Date | Type | Book | Page | Price | Grantor | Grantee | |
|
6/9/2023 |
|
Deeds |
$241,000 |
EVANS FINE HOMES LLC |
LAFLEUR CAMILLE T |
||
|
9/10/2021 |
|
Other |
$0 |
OKLAHOMA CITY URBAN |
EVANS FINE HOMES LLC |
||
|
12/1/1976 |
|
Historical |
$0 |
|
OKLAHOMA CITY URBAN |
||
| Last Mailed Notice of Value (N.O.V.) Information/History | ||||||
|---|---|---|---|---|---|---|
| Year | Date | Market Value | Taxable Market Value | Gross Assessed | Exemption | Net Assessed |
|
2026 |
02/23/2026 |
235,500 |
235,500 |
25,905 |
1,000 |
24,905 |
|
2025 |
02/14/2025 |
235,000 |
235,000 |
25,850 |
1,000 |
24,850 |
|
2024 |
02/13/2024 |
229,000 |
229,000 |
25,190 |
0 |
25,190 |
|
2022 |
03/15/2022 |
11,475 |
11,475 |
1,262 |
0 |
1,262 |
| Property Building Permit History | ||||||
|---|---|---|---|---|---|---|
| Issued | Permit # | Provided by | Bldg # | Description | Est Construction Cost | Status |
|
1/4/2022 |
BLDR-2021-06721 |
|
|
Main Dwellin |
202,000 |
Inactive |
| Click button on building number to access detailed information: | ||||||
|---|---|---|---|---|---|---|
| Bldg # | Vacant/Improved Land | Bldg Description | Year Built | SqFt | # Stories | |
|
1 |
Improved |
Ranch 1 Story |
2022 |
1,396 |
1 Stories |
|