|
|
|
| Larry Stein Oklahoma County Assessor (405) 713-1200 - Public Access System |
|
|
|
|
|
|
| Real Property Display - Screen Produced 3/6/2026 1:22:55 AM | ||||
|---|---|---|---|---|
| Account: R030591910 | Type: Residential | Location: |
2115 N EVEREST AVE |
|
| Building Name/Occupant: |
|
OKLAHOMA CITY |
||
| Owner Name 1: | PRAIRIE PROPERTY SOLUTIONS LLC |
Parcel PIN#: |
2704-03-059-1910 |
|
| Owner Name 2: | 1/4 section #: |
2704 |
||
| Owner Name 3: | Parent Acct: |
2704-03-059-1900 |
||
| Billing Address: | PO BOX 515 | Tax District: |
|
|
| City, State, Zip | OKLAHOMA CITY, OK 73101 | School System: |
Oklahoma City #89 |
|
|
Country: (If noted) |
Land Size: |
0.1117 Acres |
||
|
Land Value: 8,271 |
|
|||
|
Sect 26-T12N-R3W Qtr NW |
TUXEDO PK SUB LT 12
Block
012
Lot
000
|
|||
| Full Legal Description: TUXEDO PK SUB LT 12 012 000 N10FT OF LOT 7 & ALL OF LOT 8 |
| Photo & Sketch (if available) | Comp Sales (ordered by relevancy) |
|
||||||||||||||||||
|
||||||||||||||||||||
| Value History (*The County Treasurer 405-713-1300 posts & collects actual tax amounts. Contact information HERE) | |||||||||||||
|---|---|---|---|---|---|---|---|---|---|---|---|---|---|
| Year | Market Value | Taxable Mkt Value | Gross Assessed | Exemption | Net Assessed | Millage | Est. Tax | Tax Savings | |||||
|
2025 |
84,000 |
72,213 |
7,943 |
0 |
7,943 |
122.90 |
$976 |
$159 |
|||||
|
2024 |
80,000 |
68,775 |
7,565 |
0 |
7,565 |
123.89 |
$937 |
$153 |
|||||
|
2023 |
65,500 |
65,500 |
7,205 |
0 |
7,205 |
122.82 |
$885 |
$0 |
|||||
|
2022 |
75,000 |
75,000 |
8,250 |
0 |
8,250 |
117.63 |
$970 |
$0 |
|||||
|
2021 |
40,000 |
26,460 |
2,910 |
0 |
2,910 |
117.70 |
$343 |
$175 |
|||||
| Property Account Status/Adjustments/Exemptions | ||
|---|---|---|
| Account # | Exemption Description | Amount |
|
R030591910 |
5% Capped Account |
0 |
| Property Deed Transaction History (Recorded in the County Clerk's Office) | ||||||||||
|---|---|---|---|---|---|---|---|---|---|---|
| Date | Type | Book | Page | Price | Grantor | Grantee | ||||
|
7/2/2021 |
|
Deeds |
$76,000 |
CCJ HOLDINGS LLC |
PRAIRIE PROPERTY SOLUTIONS LLC |
|||||
|
5/18/2021 |
|
Deeds |
$42,000 |
JMH4 PROPERTIES LLC |
CCJ HOLDINGS LLC |
|||||
|
7/28/2017 |
|
Deeds |
$23,000 |
ONEBODY PROPERTIES LLC |
JMH4 PROPERTIES LLC |
|||||
|
10/7/2015 |
|
Deeds |
$12,000 |
JACKSON DONALD L II & KATHRYN R |
ONEBODY PROPERTIES LLC |
|||||
|
7/27/2013 |
|
Deeds |
$17,000 |
KROHN ANDREW |
JACKSON DONALD L II & KATHRYN R |
|||||
| Last Mailed Notice of Value (N.O.V.) Information/History | ||||||||
|---|---|---|---|---|---|---|---|---|
| Year | Date | Market Value | Taxable Market Value | Gross Assessed | Exemption | Net Assessed | ||
|
2026 |
02/23/2026 |
87,000 |
75,823 |
8,340 |
0 |
8,340 |
||
|
2025 |
02/14/2025 |
84,000 |
72,213 |
7,943 |
0 |
7,943 |
||
|
2024 |
02/13/2024 |
80,000 |
68,775 |
7,565 |
0 |
7,565 |
||
|
2022 |
03/15/2022 |
75,000 |
75,000 |
8,250 |
0 |
8,250 |
||
|
2021 |
03/19/2021 |
40,000 |
26,460 |
2,910 |
0 |
2,910 |
||
| Property Building Permit History | |||||||||||
|---|---|---|---|---|---|---|---|---|---|---|---|
| Issued | Permit # | Provided by | Bldg # | Description | Est Construction Cost | Status | |||||
| No Building Permit records returned. | |||||||||||
| Click button on building number to access detailed information: | ||||||
|---|---|---|---|---|---|---|
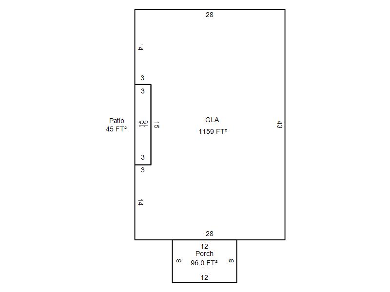
| Bldg # | Vacant/Improved Land | Bldg Description | Year Built | SqFt | # Stories | |
|
1 |
Improved |
Ranch 1 Story |
1924 |
1,159 |
1 Stories |
|