|
|
|
| Larry Stein Oklahoma County Assessor (405) 713-1200 - Public Access System |
|
|
|
|
|
|
| Real Property Display - Screen Produced 3/6/2026 1:30:28 AM | ||||
|---|---|---|---|---|
| Account: R030597600 | Type: Residential | Location: |
2130 N EVEREST AVE |
|
| Building Name/Occupant: |
|
OKLAHOMA CITY |
||
| Owner Name 1: | HAVIN INVESTMENTS LLC |
Parcel PIN#: |
2704-03-059-7600 |
|
| Owner Name 2: | 1/4 section #: |
2704 |
||
| Owner Name 3: | Parent Acct: |
|
||
| Billing Address: | PO BOX 7974 | Tax District: |
|
|
| City, State, Zip | EDMOND, OK 73083-7974 | School System: |
Oklahoma City #89 |
|
|
Country: (If noted) |
Land Size: |
0.1596 Acres |
||
|
Land Value: 11,815 |
|
|||
|
Sect 26-T12N-R3W Qtr NW |
TUXEDO PK SUB LT 12
Block
012
Lot
000
|
|||
| Full Legal Description: TUXEDO PK SUB LT 12 012 000 S 1/2 LOT 31 ALL LOT 32 & A TRACT 12.5FT WIDE ADJ LOT 32 ON S |
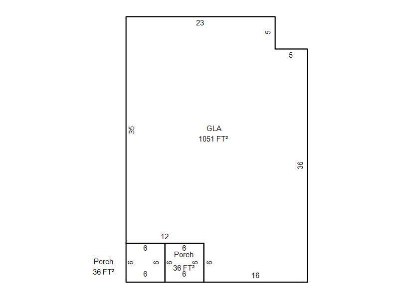
| Photo & Sketch (if available) | Comp Sales (ordered by relevancy) |
|
||||||||||||||||||
|
||||||||||||||||||||
| Value History (*The County Treasurer 405-713-1300 posts & collects actual tax amounts. Contact information HERE) | |||||||||||||
|---|---|---|---|---|---|---|---|---|---|---|---|---|---|
| Year | Market Value | Taxable Mkt Value | Gross Assessed | Exemption | Net Assessed | Millage | Est. Tax | Tax Savings | |||||
|
2025 |
61,000 |
17,854 |
1,963 |
0 |
1,963 |
122.90 |
$241 |
$583 |
|||||
|
2024 |
58,500 |
17,004 |
1,870 |
0 |
1,870 |
123.89 |
$232 |
$566 |
|||||
|
2023 |
48,500 |
16,195 |
1,780 |
0 |
1,780 |
122.82 |
$219 |
$436 |
|||||
|
2022 |
42,500 |
15,424 |
1,695 |
0 |
1,695 |
117.63 |
$200 |
$350 |
|||||
|
2021 |
29,500 |
14,690 |
1,615 |
0 |
1,615 |
117.70 |
$190 |
$192 |
|||||
| Property Account Status/Adjustments/Exemptions | ||
|---|---|---|
| Account # | Exemption Description | Amount |
|
R030597600 |
5% Capped Account |
0 |
| Property Deed Transaction History (Recorded in the County Clerk's Office) | ||||||||||
|---|---|---|---|---|---|---|---|---|---|---|
| Date | Type | Book | Page | Price | Grantor | Grantee | ||||
|
1/9/2007 |
|
Other |
$0 |
PARKER CHARLES & PATRICIA |
HAVIN INVESTMENTS LLC |
|||||
|
1/17/2002 |
|
Deeds |
$0 |
PARKER CHARLES & PATRICIA |
PARKER CHARLES & PATRICIA |
|||||
|
7/24/2000 |
|
Deeds |
$5,000 |
MAXIE CLAUDE |
PARKER CHARLES & PATRICIA |
|||||
|
1/14/1996 |
|
Other |
$0 |
HARDEN THERESA |
MAXIE CLAUDE |
|||||
|
7/27/1995 |
|
Hmstd Off & |
$0 |
HARDEN ALBERT E |
HARDEN THERESA |
|||||
| Last Mailed Notice of Value (N.O.V.) Information/History | ||||||||
|---|---|---|---|---|---|---|---|---|
| Year | Date | Market Value | Taxable Market Value | Gross Assessed | Exemption | Net Assessed | ||
|
2026 |
02/23/2026 |
63,000 |
18,746 |
2,061 |
0 |
2,061 |
||
|
2025 |
02/14/2025 |
61,000 |
17,854 |
1,963 |
0 |
1,963 |
||
|
2024 |
02/13/2024 |
58,500 |
17,004 |
1,870 |
0 |
1,870 |
||
|
2023 |
02/14/2023 |
48,500 |
16,195 |
1,780 |
0 |
1,780 |
||
|
2022 |
03/15/2022 |
42,500 |
15,424 |
1,695 |
0 |
1,695 |
||
| Property Building Permit History | ||||||
|---|---|---|---|---|---|---|
| Issued | Permit # | Provided by | Bldg # | Description | Est Construction Cost | Status |
|
6/21/1999 |
10188864 |
OKLAHOMA CITY |
1 |
Demolish |
935 |
Inactive |
| Click button on building number to access detailed information: | ||||||
|---|---|---|---|---|---|---|
| Bldg # | Vacant/Improved Land | Bldg Description | Year Built | SqFt | # Stories | |
|
1 |
Improved |
Ranch 1 Story |
1930 |
1,051 |
1 Stories |
|