|
|
|
| Larry Stein Oklahoma County Assessor (405) 713-1200 - Public Access System |
|
|
|
|
|
|
| Real Property Display - Screen Produced 4/5/2026 1:37:38 PM | ||||
|---|---|---|---|---|
| Account: R150453715 | Type: Residential | Location: |
821 E CARROLL LN |
|
| Building Name/Occupant: |
|
MIDWEST CITY |
||
| Owner Name 1: | MARLOW JACOB B & JACEE M |
Parcel PIN#: |
1408-15-045-3715 |
|
| Owner Name 2: | 1/4 section #: |
1408 |
||
| Owner Name 3: | Parent Acct: |
|
||
| Billing Address: | 821 E CARROLL LN | Tax District: |
|
|
| City, State, Zip | MIDWEST CITY, OK 73110 | School System: |
Mid-Del #52 |
|
|
Country: (If noted) |
Land Size: |
0.1708 Acres |
||
|
Land Value: 22,320 |
|
|||
|
Sect 2-T11N-R2W Qtr NW |
ATKINSON PARK ADD
Block
014
Lot
011
|
|||
| Full Legal Description: ATKINSON PARK ADD 014 011 |
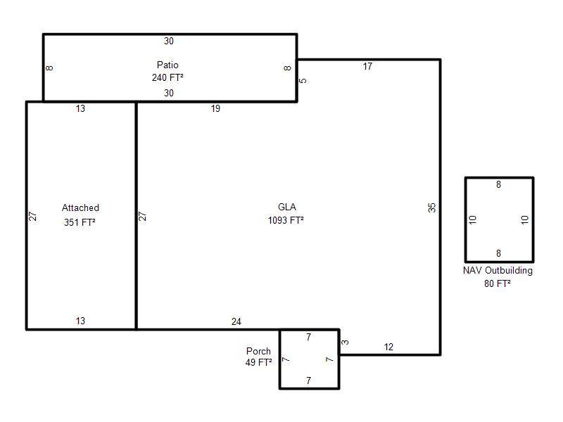
| Photo & Sketch (if available) | Comp Sales (ordered by relevancy) |
|
||||||||||||||||||
|
||||||||||||||||||||
| Value History (*The County Treasurer 405-713-1300 posts & collects actual tax amounts. Contact information HERE) | |||||||||||||
|---|---|---|---|---|---|---|---|---|---|---|---|---|---|
| Year | Market Value | Taxable Mkt Value | Gross Assessed | Exemption | Net Assessed | Millage | Est. Tax | Tax Savings | |||||
|
2026 |
122,000 |
122,000 |
13,420 |
1,000 |
12,420 |
119.58 |
$1,485 |
$120 |
|||||
|
2025 |
124,500 |
121,025 |
13,312 |
1,000 |
12,312 |
119.58 |
$1,472 |
$165 |
|||||
|
2024 |
117,500 |
117,500 |
12,925 |
0 |
12,925 |
122.51 |
$1,583 |
$0 |
|||||
|
2023 |
131,000 |
131,000 |
14,410 |
0 |
14,410 |
117.71 |
$1,696 |
$0 |
|||||
|
2022 |
94,000 |
67,358 |
7,409 |
1,000 |
6,409 |
116.64 |
$748 |
$458 |
|||||
| Property Account Status/Adjustments/Exemptions | ||
|---|---|---|
| Account # | Exemption Description | Amount |
|
R150453715 |
Homestead |
1,000 |
|
R150453715 |
3% Cap Homestead |
0 |
| Property Deed Transaction History (Recorded in the County Clerk's Office) | |||||||
|---|---|---|---|---|---|---|---|
| Date | Type | Book | Page | Price | Grantor | Grantee | |
|
1/21/2022 |
|
Deeds |
$130,000 |
NETTLETON PATRICIA E |
MARLOW JACOB B & JACEE M |
||
|
11/7/1988 |
|
Historical |
$0 |
NETTLETON JAMES E & PATRICIA E |
NETTLETON PATRICIA E |
||
|
6/1/1975 |
|
Historical |
$0 |
|
NETTLETON JAMES E & PATRICIA E |
||
| Last Mailed Notice of Value (N.O.V.) Information/History | ||||||||
|---|---|---|---|---|---|---|---|---|
| Year | Date | Market Value | Taxable Market Value | Gross Assessed | Exemption | Net Assessed | ||
|
2026 |
02/06/2026 |
122,000 |
122,000 |
13,420 |
1,000 |
12,420 |
||
|
2025 |
01/31/2025 |
124,500 |
121,025 |
13,312 |
1,000 |
12,312 |
||
|
2023 |
01/23/2023 |
131,000 |
131,000 |
14,410 |
0 |
14,410 |
||
|
2022 |
02/22/2022 |
94,000 |
67,358 |
7,409 |
1,000 |
6,409 |
||
|
2021 |
02/24/2021 |
81,000 |
67,358 |
7,409 |
1,000 |
6,409 |
||
| Property Building Permit History | |||||||||||
|---|---|---|---|---|---|---|---|---|---|---|---|
| Issued | Permit # | Provided by | Bldg # | Description | Est Construction Cost | Status | |||||
| No Building Permit records returned. | |||||||||||
| Click button on building number to access detailed information: | ||||||
|---|---|---|---|---|---|---|
| Bldg # | Vacant/Improved Land | Bldg Description | Year Built | SqFt | # Stories | |
|
1 |
Improved |
Ranch 1 Story |
1956 |
1,093 |
1 Stories |
|