|
|
|
| Larry Stein Oklahoma County Assessor (405) 713-1200 - Public Access System |
|
|
|
|
|
|
| Real Property Display - Screen Produced 3/6/2026 1:30:29 AM | ||||
|---|---|---|---|---|
| Account: R030599025 | Type: Residential | Location: |
2112 N EVEREST AVE |
|
| Building Name/Occupant: |
|
OKLAHOMA CITY |
||
| Owner Name 1: | HARAGSIM RENEE & LUKAS |
Parcel PIN#: |
2704-03-059-9025 |
|
| Owner Name 2: | 1/4 section #: |
2704 |
||
| Owner Name 3: | Parent Acct: |
|
||
| Billing Address: | 1413 NW 186TH ST | Tax District: |
|
|
| City, State, Zip | EDMOND , OK 73012 | School System: |
Oklahoma City #89 |
|
|
Country: (If noted) |
Land Size: |
0.2393 Acres |
||
|
Land Value: 17,723 |
|
|||
|
Sect 26-T12N-R3W Qtr NW |
TUXEDO PK SUB LT 12
Block
012
Lot
000
|
|||
| Full Legal Description: TUXEDO PK SUB LT 12 012 000 LOTS 39 40 & 41 |
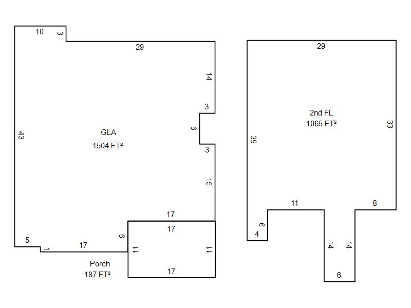
| Photo & Sketch (if available) | Comp Sales (ordered by relevancy) |
|
||||||||||||||||||
|
||||||||||||||||||||
| Value History (*The County Treasurer 405-713-1300 posts & collects actual tax amounts. Contact information HERE) | |||||||||||||
|---|---|---|---|---|---|---|---|---|---|---|---|---|---|
| Year | Market Value | Taxable Mkt Value | Gross Assessed | Exemption | Net Assessed | Millage | Est. Tax | Tax Savings | |||||
|
2025 |
248,000 |
163,485 |
17,983 |
0 |
17,983 |
122.90 |
$2,210 |
$1,143 |
|||||
|
2024 |
241,000 |
155,700 |
17,126 |
0 |
17,126 |
123.89 |
$2,122 |
$1,162 |
|||||
|
2023 |
196,500 |
148,286 |
16,310 |
0 |
16,310 |
122.82 |
$2,003 |
$651 |
|||||
|
2022 |
192,500 |
141,225 |
15,534 |
0 |
15,534 |
117.63 |
$1,827 |
$663 |
|||||
|
2021 |
134,500 |
134,500 |
14,795 |
0 |
14,795 |
117.70 |
$1,741 |
$0 |
|||||
| Property Account Status/Adjustments/Exemptions | ||
|---|---|---|
| Account # | Exemption Description | Amount |
|
R030599025 |
5% Capped Account |
0 |
| Property Deed Transaction History (Recorded in the County Clerk's Office) | ||||||||||
|---|---|---|---|---|---|---|---|---|---|---|
| Date | Type | Book | Page | Price | Grantor | Grantee | ||||
|
9/10/2020 |
|
Deeds |
$136,000 |
RUSSELL JACQUELINE |
HARAGSIM RENEE & LUKAS |
|||||
|
11/21/2019 |
|
Deeds |
$75,000 |
BNL PROPERTIES INC |
RUSSELL JACQUELINE |
|||||
|
3/4/2009 |
|
Deeds |
$38,500 |
US BANK NATIONAL ASSOCIATION TRS |
BNL PROPERTIES INC |
|||||
|
11/13/2008 |
|
Hmstd Off & |
$0 |
COLE PHILLIS A |
US BANK NATIONAL ASSOCIATION TRS |
|||||
|
1/16/2001 |
|
Deeds |
$65,000 |
NEIGHBORHOOD HOUSING SERVICES OKC INC |
COLE PHILLIS A |
|||||
| Last Mailed Notice of Value (N.O.V.) Information/History | ||||||||
|---|---|---|---|---|---|---|---|---|
| Year | Date | Market Value | Taxable Market Value | Gross Assessed | Exemption | Net Assessed | ||
|
2026 |
02/23/2026 |
247,000 |
171,659 |
18,882 |
0 |
18,882 |
||
|
2025 |
02/14/2025 |
248,000 |
163,485 |
17,983 |
0 |
17,983 |
||
|
2024 |
02/13/2024 |
241,000 |
155,700 |
17,126 |
0 |
17,126 |
||
|
2023 |
02/14/2023 |
196,500 |
148,286 |
16,310 |
0 |
16,310 |
||
|
2022 |
03/15/2022 |
192,500 |
141,225 |
15,534 |
0 |
15,534 |
||
| Property Building Permit History | ||||||
|---|---|---|---|---|---|---|
| Issued | Permit # | Provided by | Bldg # | Description | Est Construction Cost | Status |
|
9/10/1999 |
10188865 |
OKLAHOMA CITY |
1 |
Remodeled |
7,500 |
Inactive |
|
7/22/1999 |
10188866 |
OKLAHOMA CITY |
1 |
Other |
0 |
Inactive |
| Click button on building number to access detailed information: | ||||||
|---|---|---|---|---|---|---|
| Bldg # | Vacant/Improved Land | Bldg Description | Year Built | SqFt | # Stories | |
|
1 |
Improved |
2 Story |
1948 |
2,569 |
2 Stories |
|