|
|
|
| Larry Stein Oklahoma County Assessor (405) 713-1200 - Public Access System |
|
|
|
|
|
|
| Real Property Display - Screen Produced 3/5/2026 6:29:45 AM | ||||
|---|---|---|---|---|
| Account: R031233080 | Type: Residential | Location: |
2109 N LOTTIE AVE |
|
| Building Name/Occupant: |
|
OKLAHOMA CITY |
||
| Owner Name 1: | HORNSBY RICHARD R |
Parcel PIN#: |
2704-03-123-3080 |
|
| Owner Name 2: | 1/4 section #: |
2704 |
||
| Owner Name 3: | Parent Acct: |
|
||
| Billing Address: | 736 NE 25TH ST | Tax District: |
|
|
| City, State, Zip | OKLAHOMA CITY, OK 73105 | School System: |
Oklahoma City #89 |
|
|
Country: (If noted) |
Land Size: |
0.1126 Acres |
||
|
Land Value: 8,339 |
|
|||
|
Sect 26-T12N-R3W Qtr NW |
SUMMITT HEIGHTS SUB
Block
013
Lot
000
|
|||
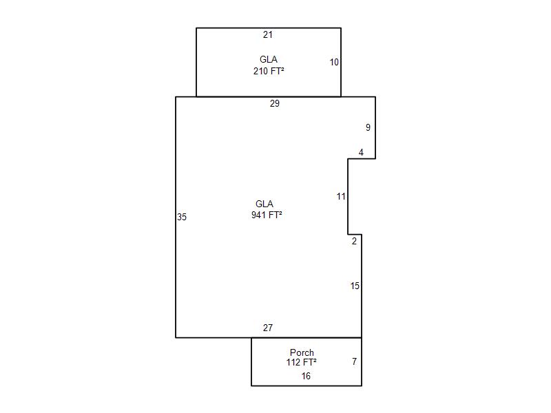
| Full Legal Description: SUMMITT HEIGHTS SUB 013 000 S45FT OF N90FT LOTS 1 THRU 4 S45FT OF N90FT W9.75FT LOT 5 |
| Photo & Sketch (if available) | Comp Sales (ordered by relevancy) |
|
||||||||||||||||||
|
||||||||||||||||||||
| Value History (*The County Treasurer 405-713-1300 posts & collects actual tax amounts. Contact information HERE) | |||||||||||||
|---|---|---|---|---|---|---|---|---|---|---|---|---|---|
| Year | Market Value | Taxable Mkt Value | Gross Assessed | Exemption | Net Assessed | Millage | Est. Tax | Tax Savings | |||||
|
2025 |
83,500 |
30,285 |
3,330 |
0 |
3,330 |
122.90 |
$409 |
$719 |
|||||
|
2024 |
79,500 |
28,843 |
3,172 |
0 |
3,172 |
123.89 |
$393 |
$690 |
|||||
|
2023 |
65,000 |
27,470 |
3,020 |
0 |
3,020 |
122.82 |
$371 |
$507 |
|||||
|
2022 |
49,000 |
26,162 |
2,877 |
0 |
2,877 |
117.63 |
$339 |
$296 |
|||||
|
2021 |
40,000 |
24,917 |
2,740 |
0 |
2,740 |
117.70 |
$323 |
$195 |
|||||
| Property Account Status/Adjustments/Exemptions | ||
|---|---|---|
| Account # | Exemption Description | Amount |
|
R031233080 |
5% Capped Account |
0 |
| Property Deed Transaction History (Recorded in the County Clerk's Office) | |||||||
|---|---|---|---|---|---|---|---|
| Date | Type | Book | Page | Price | Grantor | Grantee | |
|
11/22/2004 |
|
Deeds |
$19,000 |
SWARTZ & BROUGH INC |
HORNSBY RICHARD R |
||
|
7/27/2004 |
|
Deeds |
$14,000 |
CARPENTER JOHN E & JO ANN ETAL R E & K CARPENTER IRREV TRUST |
SWARTZ & BROUGH INC |
||
|
2/1/1987 |
|
Historical |
$0 |
CARPENTER R E & K J |
CARPENTER JOHN E & JO ANN ETAL |
||
|
11/11/1911 |
|
Historical |
$0 |
|
CARPENTER R E & K J |
||
| Last Mailed Notice of Value (N.O.V.) Information/History | ||||||||
|---|---|---|---|---|---|---|---|---|
| Year | Date | Market Value | Taxable Market Value | Gross Assessed | Exemption | Net Assessed | ||
|
2026 |
02/23/2026 |
86,000 |
31,799 |
3,497 |
0 |
3,497 |
||
|
2025 |
02/14/2025 |
83,500 |
30,285 |
3,330 |
0 |
3,330 |
||
|
2024 |
02/13/2024 |
79,500 |
28,843 |
3,172 |
0 |
3,172 |
||
|
2023 |
02/14/2023 |
65,000 |
27,470 |
3,020 |
0 |
3,020 |
||
|
2022 |
03/15/2022 |
49,000 |
26,162 |
2,877 |
0 |
2,877 |
||
| Property Building Permit History | ||||||
|---|---|---|---|---|---|---|
| Issued | Permit # | Provided by | Bldg # | Description | Est Construction Cost | Status |
|
4/14/1992 |
10188904 |
OKLAHOMA CITY |
1 |
Demolish |
0 |
Inactive |
| Click button on building number to access detailed information: | ||||||
|---|---|---|---|---|---|---|
| Bldg # | Vacant/Improved Land | Bldg Description | Year Built | SqFt | # Stories | |
|
1 |
Improved |
Ranch 1 Story |
1925 |
1,151 |
1 Stories |
|