|
|
|
| Larry Stein Oklahoma County Assessor (405) 713-1200 - Public Access System |
|
|
|
|
|
|
| Real Property Display - Screen Produced 3/5/2026 6:29:47 AM | ||||
|---|---|---|---|---|
| Account: R031235180 | Type: Residential | Location: |
2140 N LOTTIE AVE |
|
| Building Name/Occupant: |
|
OKLAHOMA CITY |
||
| Owner Name 1: | MARTINEZ VICTOR |
Parcel PIN#: |
2704-03-123-5180 |
|
| Owner Name 2: | 1/4 section #: |
2704 |
||
| Owner Name 3: | Parent Acct: |
|
||
| Billing Address: | 2440 SW 80TH ST | Tax District: |
|
|
| City, State, Zip | OKLAHOMA CITY, OK 73159 | School System: |
Oklahoma City #89 |
|
|
Country: (If noted) |
Land Size: |
0.1160 Acres |
||
|
Land Value: 8,590 |
|
|||
|
Sect 26-T12N-R3W Qtr NW |
SUMMITT HEIGHTS SUB
Block
013
Lot
000
|
|||
| Full Legal Description: SUMMITT HEIGHTS SUB 013 000 LOT 26 & N 1/2 LOT 27 |
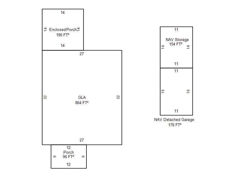
| Photo & Sketch (if available) | Comp Sales (ordered by relevancy) |
|
||||||||||||||||||
|
||||||||||||||||||||
| Value History (*The County Treasurer 405-713-1300 posts & collects actual tax amounts. Contact information HERE) | |||||||||||||
|---|---|---|---|---|---|---|---|---|---|---|---|---|---|
| Year | Market Value | Taxable Mkt Value | Gross Assessed | Exemption | Net Assessed | Millage | Est. Tax | Tax Savings | |||||
|
2025 |
72,500 |
25,851 |
2,843 |
0 |
2,843 |
122.90 |
$349 |
$631 |
|||||
|
2024 |
69,000 |
24,620 |
2,707 |
0 |
2,707 |
123.89 |
$336 |
$605 |
|||||
|
2023 |
56,500 |
23,448 |
2,578 |
0 |
2,578 |
122.82 |
$317 |
$447 |
|||||
|
2022 |
42,500 |
22,332 |
2,455 |
0 |
2,455 |
117.63 |
$289 |
$261 |
|||||
|
2021 |
34,500 |
21,269 |
2,339 |
0 |
2,339 |
117.70 |
$275 |
$171 |
|||||
| Property Account Status/Adjustments/Exemptions | ||||||
|---|---|---|---|---|---|---|
| Account # | Exemption Description | Amount | ||||
| No adjustment/exemption records returned. | ||||||
| Property Deed Transaction History (Recorded in the County Clerk's Office) | |||||||
|---|---|---|---|---|---|---|---|
| Date | Type | Book | Page | Price | Grantor | Grantee | |
|
6/3/2025 |
|
Deeds |
$80,000 |
FREEMAN TONY R |
MARTINEZ VICTOR |
||
|
6/13/2016 |
|
Other |
$0 |
BROOKS VIOLA ETAL BROOKS G H |
FREEMAN TONY R |
||
|
2/14/2000 |
|
Deeds |
$0 |
BROOKS ELMER & VIOLA |
BROOKS VIOLA ETAL BROOKS G H |
||
|
6/12/1995 |
|
Historical |
$0 |
BROOKS SIMS & VIVIAN |
BROOKS ELMER & VIOLA |
||
|
1/1/1985 |
|
Historical |
$0 |
|
BROOKS SIMS & VIVIAN |
||
| Last Mailed Notice of Value (N.O.V.) Information/History | ||||||||
|---|---|---|---|---|---|---|---|---|
| Year | Date | Market Value | Taxable Market Value | Gross Assessed | Exemption | Net Assessed | ||
|
2025 |
02/14/2025 |
72,500 |
25,851 |
2,843 |
0 |
2,843 |
||
|
2024 |
02/13/2024 |
69,000 |
24,620 |
2,707 |
0 |
2,707 |
||
|
2023 |
02/14/2023 |
56,500 |
23,448 |
2,578 |
0 |
2,578 |
||
|
2022 |
03/15/2022 |
42,500 |
22,332 |
2,455 |
0 |
2,455 |
||
|
2021 |
03/19/2021 |
34,500 |
21,269 |
2,339 |
0 |
2,339 |
||
| Property Building Permit History | ||||||
|---|---|---|---|---|---|---|
| Issued | Permit # | Provided by | Bldg # | Description | Est Construction Cost | Status |
|
9/15/2025 |
BLDR-2025-05138 |
|
1 |
Remodeled |
38,000 |
Active |
| Click button on building number to access detailed information: | ||||||
|---|---|---|---|---|---|---|
| Bldg # | Vacant/Improved Land | Bldg Description | Year Built | SqFt | # Stories | |
|
1 |
Improved |
Salvage |
1928 |
864 |
1 Stories |
|