|
|
|
| Larry Stein Oklahoma County Assessor (405) 713-1200 - Public Access System |
|
|
|
|
|
|
| Real Property Display - Screen Produced 4/2/2026 1:36:57 AM | ||||
|---|---|---|---|---|
| Account: R034671575 | Type: Residential | Location: |
712 NE 20TH ST |
|
| Building Name/Occupant: |
|
OKLAHOMA CITY |
||
| Owner Name 1: | BUXTON JONATHAN & ALISON |
Parcel PIN#: |
2705-03-467-1575 |
|
| Owner Name 2: | 1/4 section #: |
2705 |
||
| Owner Name 3: | Parent Acct: |
|
||
| Billing Address: | 712 NE 20TH ST | Tax District: |
|
|
| City, State, Zip | OKLAHOMA CITY, OK 73105-8010 | School System: |
Oklahoma City #89 |
|
|
Country: (If noted) |
Land Size: |
0.1771 Acres |
||
|
Land Value: 48,984 |
|
|||
|
Sect 27-T12N-R3W Qtr NE |
LINCOLN TERRACE ADD
Block
004
Lot
007
|
|||
| Full Legal Description: LINCOLN TERRACE ADD 004 007 |
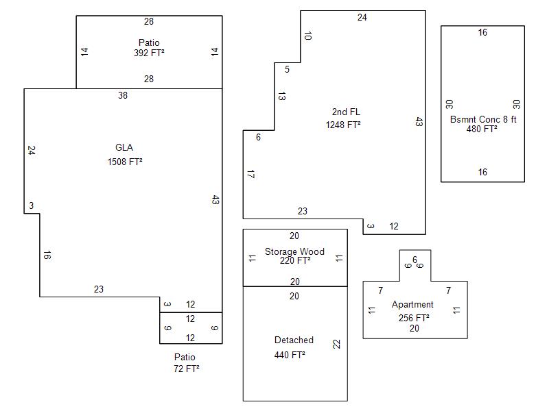
| Photo & Sketch (if available) | Comp Sales (ordered by relevancy) |
|
||||||||||||||||||
|
||||||||||||||||||||
| Value History (*The County Treasurer 405-713-1300 posts & collects actual tax amounts. Contact information HERE) | |||||||||||||
|---|---|---|---|---|---|---|---|---|---|---|---|---|---|
| Year | Market Value | Taxable Mkt Value | Gross Assessed | Exemption | Net Assessed | Millage | Est. Tax | Tax Savings | |||||
|
2026 |
451,000 |
281,218 |
30,933 |
1,000 |
29,933 |
122.90 |
$3,679 |
$2,418 |
|||||
|
2025 |
445,500 |
273,028 |
30,032 |
1,000 |
29,032 |
122.90 |
$3,568 |
$2,455 |
|||||
|
2024 |
423,000 |
265,076 |
29,158 |
1,000 |
28,158 |
123.89 |
$3,489 |
$2,276 |
|||||
|
2023 |
402,500 |
257,356 |
28,308 |
1,000 |
27,308 |
122.82 |
$3,354 |
$2,084 |
|||||
|
2022 |
311,000 |
249,861 |
27,484 |
1,000 |
26,484 |
117.63 |
$3,115 |
$909 |
|||||
| Property Account Status/Adjustments/Exemptions | ||
|---|---|---|
| Account # | Exemption Description | Amount |
|
R034671575 |
3% Cap Homestead |
0 |
|
R034671575 |
Homestead |
1,000 |
| Property Deed Transaction History (Recorded in the County Clerk's Office) | |||||||
|---|---|---|---|---|---|---|---|
| Date | Type | Book | Page | Price | Grantor | Grantee | |
|
6/28/2013 |
|
Deeds |
$220,000 |
WHATLEY MAGGIE ANN |
BUXTON JONATHAN & ALISON |
||
|
12/1/1979 |
|
Historical |
$0 |
|
WHATLEY MAGGIE ANN |
||
| Last Mailed Notice of Value (N.O.V.) Information/History | ||||||||
|---|---|---|---|---|---|---|---|---|
| Year | Date | Market Value | Taxable Market Value | Gross Assessed | Exemption | Net Assessed | ||
|
2026 |
02/23/2026 |
451,000 |
281,218 |
30,933 |
1,000 |
29,933 |
||
|
2025 |
02/14/2025 |
445,500 |
273,028 |
30,032 |
1,000 |
29,032 |
||
|
2024 |
02/13/2024 |
423,000 |
265,076 |
29,158 |
1,000 |
28,158 |
||
|
2023 |
02/14/2023 |
402,500 |
257,356 |
28,308 |
1,000 |
27,308 |
||
|
2022 |
03/15/2022 |
311,000 |
249,861 |
27,484 |
1,000 |
26,484 |
||
| Property Building Permit History | |||||||||||
|---|---|---|---|---|---|---|---|---|---|---|---|
| Issued | Permit # | Provided by | Bldg # | Description | Est Construction Cost | Status | |||||
| No Building Permit records returned. | |||||||||||
| Click button on building number to access detailed information: | ||||||
|---|---|---|---|---|---|---|
| Bldg # | Vacant/Improved Land | Bldg Description | Year Built | SqFt | # Stories | |
|
1 |
Improved |
2½ Story Unfin |
1928 |
2,756 |
2.5 Stories |
|