|
|
|
| Larry Stein Oklahoma County Assessor (405) 713-1200 - Public Access System |
|
|
|
|
|
|
| Real Property Display - Screen Produced 4/6/2026 5:45:50 AM | ||||
|---|---|---|---|---|
| Account: R034510825 | Type: Residential | Location: |
740 NE 15TH ST |
|
| Building Name/Occupant: |
|
OKLAHOMA CITY |
||
| Owner Name 1: | CASA BANANA LLC |
Parcel PIN#: |
2706-03-451-0825 |
|
| Owner Name 2: | 1/4 section #: |
2706 |
||
| Owner Name 3: | Parent Acct: |
|
||
| Billing Address: | 11032 QUAIL CREEK RD, Unit 205 | Tax District: |
|
|
| City, State, Zip | OKLAHOMA CITY, OK 73120 | School System: |
Oklahoma City #89 |
|
|
Country: (If noted) |
Land Size: |
0.1671 Acres |
||
|
Land Value: 48,048 |
|
|||
|
Sect 27-T12N-R3W Qtr SE |
HOWES CAPITOL
Block
005
Lot
001
|
|||
| Full Legal Description: HOWES CAPITOL 005 001 |
| No comparable sales report available. | ||||||||||||||||||||||
|
||||||||||||||||||||||
| Value History (*The County Treasurer 405-713-1300 posts & collects actual tax amounts. Contact information HERE) | |||||||||||||
|---|---|---|---|---|---|---|---|---|---|---|---|---|---|
| Year | Market Value | Taxable Mkt Value | Gross Assessed | Exemption | Net Assessed | Millage | Est. Tax | Tax Savings | |||||
|
2026 |
369,106 |
168,973 |
18,586 |
0 |
18,586 |
122.90 |
$2,284 |
$2,706 |
|||||
|
2025 |
363,304 |
160,927 |
17,701 |
0 |
17,701 |
122.90 |
$2,176 |
$2,736 |
|||||
|
2024 |
352,287 |
153,264 |
16,858 |
0 |
16,858 |
123.89 |
$2,089 |
$2,712 |
|||||
|
2023 |
291,519 |
145,966 |
16,055 |
0 |
16,055 |
122.82 |
$1,972 |
$1,966 |
|||||
|
2022 |
287,168 |
139,016 |
15,291 |
0 |
15,291 |
117.63 |
$1,799 |
$1,917 |
|||||
| Property Account Status/Adjustments/Exemptions | ||||||
|---|---|---|---|---|---|---|
| Account # | Exemption Description | Amount | ||||
| No adjustment/exemption records returned. | ||||||
| Property Deed Transaction History (Recorded in the County Clerk's Office) | |||||||
|---|---|---|---|---|---|---|---|
| Date | Type | Book | Page | Price | Grantor | Grantee | |
|
4/1/2021 |
|
Hmstd Off & |
$ |
BEAVERS BRYAN C |
CASA BANANA LLC |
||
|
10/19/2013 |
|
Deeds |
$95,000 |
BASINGER JOSEPH B |
BEAVERS BRYAN C |
||
|
4/20/1990 |
|
Historical |
$0 |
CONTINENTAL FEDERAL SAVINGS |
BASINGER JOSEPH B |
||
|
10/27/1987 |
|
Historical |
$0 |
GILBERT JERRY |
CONTINENTAL FEDERAL SAVINGS |
||
|
7/1/1978 |
|
Historical |
$0 |
|
GILBERT JERRY |
||
| Last Mailed Notice of Value (N.O.V.) Information/History | ||||||||
|---|---|---|---|---|---|---|---|---|
| Year | Date | Market Value | Taxable Market Value | Gross Assessed | Exemption | Net Assessed | ||
|
2026 |
02/23/2026 |
369,106 |
168,973 |
18,586 |
0 |
18,586 |
||
|
2025 |
02/14/2025 |
363,304 |
160,927 |
17,701 |
0 |
17,701 |
||
|
2024 |
02/13/2024 |
352,287 |
153,264 |
16,858 |
0 |
16,858 |
||
|
2023 |
02/14/2023 |
291,519 |
145,966 |
16,055 |
0 |
16,055 |
||
|
2022 |
03/15/2022 |
287,168 |
139,016 |
15,291 |
0 |
15,291 |
||
| Property Building Permit History | |||||||||||
|---|---|---|---|---|---|---|---|---|---|---|---|
| Issued | Permit # | Provided by | Bldg # | Description | Est Construction Cost | Status | |||||
| No Building Permit records returned. | |||||||||||
| Click button on building number to access detailed information: | ||||||
|---|---|---|---|---|---|---|
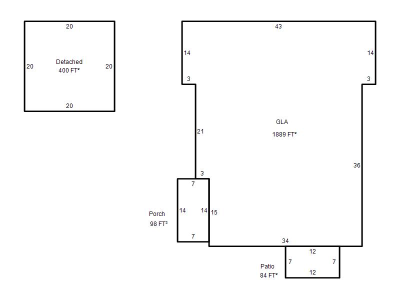
| Bldg # | Vacant/Improved Land | Bldg Description | Year Built | SqFt | # Stories | |
|
1 |
Improved |
Duplex One Story |
1927 |
1,889 |
1 Stories |
|
|
2 |
Improved |
1½ Story Fin |
1930 |
897 |
1.5 Stories |
|