|
|
|
| Larry Stein Oklahoma County Assessor (405) 713-1200 - Public Access System |
|
|
|
|
|
|
| Real Property Display - Screen Produced 4/2/2026 10:17:21 PM | ||||
|---|---|---|---|---|
| Account: R034277710 | Type: Residential | Location: |
403 NE 15TH ST |
|
| Building Name/Occupant: |
|
OKLAHOMA CITY |
||
| Owner Name 1: | OMEGA INVESTMENTS LLC |
Parcel PIN#: |
2707-03-427-7710 |
|
| Owner Name 2: | 1/4 section #: |
2707 |
||
| Owner Name 3: | Parent Acct: |
|
||
| Billing Address: | 20 NW 13TH ST, Unit 200 | Tax District: |
|
|
| City, State, Zip | OKLAHOMA CITY, OK 73103 | School System: |
Oklahoma City #89 |
|
|
Country: (If noted) |
Land Size: |
0.2250 Acres |
||
|
Land Value: 65,660 |
|
|||
|
Sect 27-T12N-R3W Qtr SW |
CLASSENS N HIGHLAND PARKED
Block
009
Lot
010
|
|||
| Full Legal Description: CLASSENS N HIGHLAND PARKED 009 010 |
| Photo & Sketch (if available) | Comp Sales (ordered by relevancy) |
|
||||||||||||||||||
|
||||||||||||||||||||
| Value History (*The County Treasurer 405-713-1300 posts & collects actual tax amounts. Contact information HERE) | |||||||||||||
|---|---|---|---|---|---|---|---|---|---|---|---|---|---|
| Year | Market Value | Taxable Mkt Value | Gross Assessed | Exemption | Net Assessed | Millage | Est. Tax | Tax Savings | |||||
|
2026 |
230,500 |
202,988 |
22,328 |
0 |
22,328 |
122.90 |
$2,744 |
$372 |
|||||
|
2025 |
231,000 |
193,322 |
21,264 |
0 |
21,264 |
122.90 |
$2,614 |
$509 |
|||||
|
2024 |
222,500 |
184,117 |
20,252 |
0 |
20,252 |
123.89 |
$2,509 |
$523 |
|||||
|
2023 |
208,500 |
175,350 |
19,288 |
0 |
19,288 |
122.82 |
$2,369 |
$448 |
|||||
|
2022 |
167,000 |
167,000 |
18,370 |
0 |
18,370 |
117.63 |
$2,161 |
$0 |
|||||
| Property Account Status/Adjustments/Exemptions | ||
|---|---|---|
| Account # | Exemption Description | Amount |
|
R034277710 |
5% Capped Account |
0 |
| Property Deed Transaction History (Recorded in the County Clerk's Office) | ||||||||||
|---|---|---|---|---|---|---|---|---|---|---|
| Date | Type | Book | Page | Price | Grantor | Grantee | ||||
|
7/29/2019 |
|
Sheriff's/Ma |
$103,000 |
THOMPSON EUEL LANEEL |
OMEGA INVESTMENTS LLC |
|||||
|
6/17/2019 |
|
Deeds |
$0 |
THOMPSON EUEL L |
THOMPSON EUEL LANEEL |
|||||
|
5/28/2018 |
|
Hmstd Off & |
$0 |
BILLS MARIAN W |
THOMPSON EUEL L |
|||||
|
5/23/2018 |
|
Hmstd Off & |
$0 |
BILLS MARIAN W |
THOMPSON EUEL L |
|||||
|
5/26/2004 |
|
Other |
$0 |
GARRETT FLOYD H |
BILLS MARIAN W |
|||||
| Last Mailed Notice of Value (N.O.V.) Information/History | ||||||||
|---|---|---|---|---|---|---|---|---|
| Year | Date | Market Value | Taxable Market Value | Gross Assessed | Exemption | Net Assessed | ||
|
2026 |
02/23/2026 |
230,500 |
202,988 |
22,328 |
0 |
22,328 |
||
|
2025 |
02/14/2025 |
231,000 |
193,322 |
21,264 |
0 |
21,264 |
||
|
2024 |
02/13/2024 |
222,500 |
184,117 |
20,252 |
0 |
20,252 |
||
|
2023 |
02/14/2023 |
208,500 |
175,350 |
19,288 |
0 |
19,288 |
||
|
2022 |
03/15/2022 |
167,000 |
167,000 |
18,370 |
0 |
18,370 |
||
| Property Building Permit History | |||||||||||
|---|---|---|---|---|---|---|---|---|---|---|---|
| Issued | Permit # | Provided by | Bldg # | Description | Est Construction Cost | Status | |||||
| No Building Permit records returned. | |||||||||||
| Click button on building number to access detailed information: | ||||||
|---|---|---|---|---|---|---|
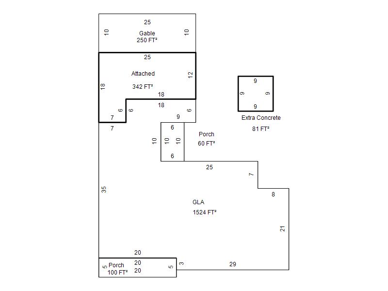
| Bldg # | Vacant/Improved Land | Bldg Description | Year Built | SqFt | # Stories | |
|
1 |
Improved |
Ranch 1 Story |
1954 |
1,524 |
1 Stories |
|