|
|
|
| Larry Stein Oklahoma County Assessor (405) 713-1200 - Public Access System |
|
|
|
|
|
|
| Real Property Display - Screen Produced 3/17/2026 7:00:07 AM | ||||
|---|---|---|---|---|
| Account: R044047590 | Type: Residential | Location: |
308 NW 21ST ST |
|
| Building Name/Occupant: |
|
OKLAHOMA CITY |
||
| Owner Name 1: | LILJESTRAND JOHN E & MARILYN SUE |
Parcel PIN#: |
2709-04-404-7590 |
|
| Owner Name 2: | 1/4 section #: |
2709 |
||
| Owner Name 3: | Parent Acct: |
|
||
| Billing Address: | 3509 WINDSOR BLVD | Tax District: |
|
|
| City, State, Zip | OKLAHOMA CITY, OK 73122-1307 | School System: |
Oklahoma City #89 |
|
|
Country: (If noted) |
Land Size: |
0.1722 Acres |
||
|
Land Value: 78,000 |
|
|||
|
Sect 28-T12N-R3W Qtr NE |
WINANS SECOND ADD
Block
006
Lot
002
|
|||
| Full Legal Description: WINANS SECOND ADD 006 002 |
| Photo & Sketch (if available) | Comp Sales (ordered by relevancy) |
|
||||||||||||||||||
|
||||||||||||||||||||
| Value History (*The County Treasurer 405-713-1300 posts & collects actual tax amounts. Contact information HERE) | |||||||||||||
|---|---|---|---|---|---|---|---|---|---|---|---|---|---|
| Year | Market Value | Taxable Mkt Value | Gross Assessed | Exemption | Net Assessed | Millage | Est. Tax | Tax Savings | |||||
|
2025 |
361,500 |
220,073 |
24,207 |
0 |
24,207 |
122.90 |
$2,975 |
$1,912 |
|||||
|
2024 |
369,000 |
209,594 |
23,054 |
0 |
23,054 |
123.89 |
$2,856 |
$2,172 |
|||||
|
2023 |
336,500 |
199,614 |
21,956 |
0 |
21,956 |
122.82 |
$2,697 |
$1,849 |
|||||
|
2022 |
290,500 |
190,109 |
20,910 |
0 |
20,910 |
117.63 |
$2,460 |
$1,299 |
|||||
|
2021 |
241,000 |
181,057 |
19,915 |
0 |
19,915 |
117.70 |
$2,344 |
$776 |
|||||
| Property Account Status/Adjustments/Exemptions | ||
|---|---|---|
| Account # | Exemption Description | Amount |
|
R044047590 |
5% Capped Account |
0 |
| Property Deed Transaction History (Recorded in the County Clerk's Office) | ||||||||||
|---|---|---|---|---|---|---|---|---|---|---|
| Date | Type | Book | Page | Price | Grantor | Grantee | ||||
|
4/17/2017 |
|
Hmstd Off & |
$0 |
LILJESTRAND MARILYN & JOHN TRS LILJESTRAND MARILYN SUE TRUST |
LILJESTRAND JOHN E & MARILYN SUE |
|||||
|
11/8/1991 |
|
Historical |
$0 |
LILJESTRAND JOHN E & MARILYN S |
LILJESTRAND MARILYN & JOHN TRS |
|||||
|
5/2/1991 |
|
Historical |
$0 |
CLARK TROY GENE |
LILJESTRAND JOHN E & MARILYN S |
|||||
|
10/12/1990 |
|
Historical |
$0 |
TUEL VIRGINIA ELLEN |
CLARK TROY GENE |
|||||
|
8/6/1990 |
|
Historical |
$0 |
HUBBARD KELLY |
TUEL VIRGINIA ELLEN |
|||||
| Last Mailed Notice of Value (N.O.V.) Information/History | ||||||||
|---|---|---|---|---|---|---|---|---|
| Year | Date | Market Value | Taxable Market Value | Gross Assessed | Exemption | Net Assessed | ||
|
2026 |
02/23/2026 |
389,500 |
231,076 |
25,418 |
0 |
25,418 |
||
|
2025 |
02/14/2025 |
361,500 |
220,073 |
24,207 |
0 |
24,207 |
||
|
2024 |
02/13/2024 |
369,000 |
209,594 |
23,054 |
0 |
23,054 |
||
|
2023 |
02/14/2023 |
336,500 |
199,614 |
21,956 |
0 |
21,956 |
||
|
2022 |
03/15/2022 |
290,500 |
190,109 |
20,910 |
0 |
20,910 |
||
| Property Building Permit History | ||||||
|---|---|---|---|---|---|---|
| Issued | Permit # | Provided by | Bldg # | Description | Est Construction Cost | Status |
|
6/22/2010 |
10405348 |
OKLAHOMA CITY |
1 |
Demolish |
0 |
Inactive |
| Click button on building number to access detailed information: | ||||||
|---|---|---|---|---|---|---|
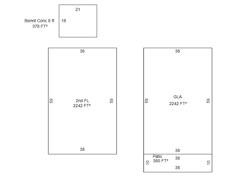
| Bldg # | Vacant/Improved Land | Bldg Description | Year Built | SqFt | # Stories | |
|
1 |
Improved |
Apartment <= 3 Stories |
1924 |
4,484 |
2 Stories |
|