|
|
|
| Larry Stein Oklahoma County Assessor (405) 713-1200 - Public Access System |
|
|
|
|
|
|
| Real Property Display - Screen Produced 4/3/2026 5:11:52 AM | ||||
|---|---|---|---|---|
| Account: R150512750 | Type: Residential | Location: |
319 E KERR DR |
|
| Building Name/Occupant: |
|
MIDWEST CITY |
||
| Owner Name 1: | LAGROW JEFFERY BLAKE |
Parcel PIN#: |
1409-15-051-2750 |
|
| Owner Name 2: | LAGROW JENNIFER | 1/4 section #: |
1409 |
|
| Owner Name 3: | Parent Acct: |
|
||
| Billing Address: | 17 N FILLY LN | Tax District: |
|
|
| City, State, Zip | EDMOND, OK 73034 | School System: |
Mid-Del #52 |
|
|
Country: (If noted) |
Land Size: |
0.1522 Acres |
||
|
Land Value: 18,896 |
|
|||
|
Sect 3-T11N-R2W Qtr NE |
COUNTRY ESTATES 4TH
Block
009
Lot
000
|
|||
| Full Legal Description: COUNTRY ESTATES 4TH 009 000 W1FT LOT 4 & ALL LOT 5 |
| Photo & Sketch (if available) | Comp Sales (ordered by relevancy) |
|
||||||||||||||||||
|
||||||||||||||||||||
| Value History (*The County Treasurer 405-713-1300 posts & collects actual tax amounts. Contact information HERE) | |||||||||||||
|---|---|---|---|---|---|---|---|---|---|---|---|---|---|
| Year | Market Value | Taxable Mkt Value | Gross Assessed | Exemption | Net Assessed | Millage | Est. Tax | Tax Savings | |||||
|
2026 |
142,000 |
131,882 |
14,506 |
0 |
14,506 |
119.58 |
$1,735 |
$133 |
|||||
|
2025 |
141,000 |
125,602 |
13,815 |
0 |
13,815 |
119.58 |
$1,652 |
$203 |
|||||
|
2024 |
132,500 |
119,621 |
13,157 |
0 |
13,157 |
122.51 |
$1,612 |
$174 |
|||||
|
2023 |
122,500 |
113,925 |
12,531 |
0 |
12,531 |
117.71 |
$1,475 |
$111 |
|||||
|
2022 |
108,500 |
108,500 |
11,935 |
0 |
11,935 |
116.64 |
$1,392 |
$0 |
|||||
| Property Account Status/Adjustments/Exemptions | ||
|---|---|---|
| Account # | Exemption Description | Amount |
|
R150512750 |
5% Capped Account |
0 |
| Property Deed Transaction History (Recorded in the County Clerk's Office) | ||||||||||
|---|---|---|---|---|---|---|---|---|---|---|
| Date | Type | Book | Page | Price | Grantor | Grantee | ||||
|
3/27/2021 |
|
Deeds |
$59,000 |
FRANKS LORAN |
LAGROW JEFFERY BLAKE |
|||||
|
1/15/2010 |
|
Deeds |
$78,000 |
THURMOND JENNIFER LYNN |
FRANKS LORAN |
|||||
|
6/8/2004 |
|
Deeds |
$0 |
ENGLAND GRACIE J CONNER KAREN |
ENGLAND GRACIE J |
|||||
|
6/8/2004 |
|
Deeds |
$68,000 |
ENGLAND GRACIE J |
THURMOND JENNIFER LYNN |
|||||
|
4/11/1990 |
|
Historical |
$0 |
ENGLAND BEN & G J |
ENGLAND GRACIE J |
|||||
| Last Mailed Notice of Value (N.O.V.) Information/History | ||||||||
|---|---|---|---|---|---|---|---|---|
| Year | Date | Market Value | Taxable Market Value | Gross Assessed | Exemption | Net Assessed | ||
|
2026 |
02/06/2026 |
142,000 |
131,882 |
14,506 |
0 |
14,506 |
||
|
2025 |
01/31/2025 |
141,000 |
125,602 |
13,815 |
0 |
13,815 |
||
|
2024 |
01/22/2024 |
132,500 |
119,621 |
13,157 |
0 |
13,157 |
||
|
2023 |
01/23/2023 |
122,500 |
113,925 |
12,531 |
0 |
12,531 |
||
|
2022 |
02/22/2022 |
108,500 |
108,500 |
11,935 |
0 |
11,935 |
||
| Property Building Permit History | |||||||||||
|---|---|---|---|---|---|---|---|---|---|---|---|
| Issued | Permit # | Provided by | Bldg # | Description | Est Construction Cost | Status | |||||
| No Building Permit records returned. | |||||||||||
| Click button on building number to access detailed information: | ||||||
|---|---|---|---|---|---|---|
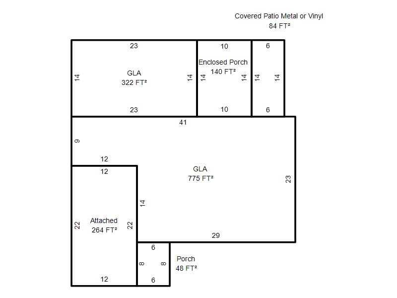
| Bldg # | Vacant/Improved Land | Bldg Description | Year Built | SqFt | # Stories | |
|
1 |
Improved |
Ranch 1 Story |
1951 |
1,097 |
1 Stories |
|