|
|
|
| Larry Stein Oklahoma County Assessor (405) 713-1200 - Public Access System |
|
|
|
|
|
|
| Real Property Display - Screen Produced 3/19/2026 7:19:27 AM | ||||
|---|---|---|---|---|
| Account: R045325400 | Type: Residential | Location: |
1520 CLASSEN DR |
|
| Building Name/Occupant: |
|
OKLAHOMA CITY |
||
| Owner Name 1: | HAWKINS TERRY L & BRENDA M |
Parcel PIN#: |
2711-04-532-5400 |
|
| Owner Name 2: | 1/4 section #: |
2711 |
||
| Owner Name 3: | Parent Acct: |
|
||
| Billing Address: | 1520 CLASSEN DR | Tax District: |
|
|
| City, State, Zip | OKLAHOMA CITY, OK 73106-6616 | School System: |
Oklahoma City #89 |
|
|
Country: (If noted) |
Land Size: |
0.2250 Acres |
||
|
Land Value: 130,144 |
|
|||
|
Sect 28-T12N-R3W Qtr SW |
HARNDALE AMEND ADD
Block
000
Lot
000
|
|||
| Full Legal Description: HARNDALE AMEND ADD 000 000 PT OF LOTS 5 7 & 7A BEG 5FT SE OF SW/C LOT 7 TH NE TO PT 6.9FT WLY FROM NW/C LOT 7 TH SELY70.1FT TO PT 10FT ELY FROM NW/C LOT 5 TH SWLY TO PT 15FT ELY FROM SW/C LOT 5 TH WLY 69.8FT TO BEG |
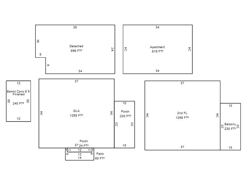
| Photo & Sketch (if available) | Comp Sales (ordered by relevancy) |
|
||||||||||||||||||
|
||||||||||||||||||||
| Value History (*The County Treasurer 405-713-1300 posts & collects actual tax amounts. Contact information HERE) | |||||||||||||
|---|---|---|---|---|---|---|---|---|---|---|---|---|---|
| Year | Market Value | Taxable Mkt Value | Gross Assessed | Exemption | Net Assessed | Millage | Est. Tax | Tax Savings | |||||
|
2025 |
987,500 |
925,249 |
101,776 |
0 |
101,776 |
122.90 |
$12,508 |
$842 |
|||||
|
2024 |
948,000 |
881,190 |
96,930 |
0 |
96,930 |
123.89 |
$12,009 |
$910 |
|||||
|
2023 |
1,017,500 |
839,229 |
92,314 |
0 |
92,314 |
122.82 |
$11,338 |
$2,408 |
|||||
|
2022 |
861,500 |
799,266 |
87,918 |
0 |
87,918 |
117.63 |
$10,342 |
$805 |
|||||
|
2021 |
857,500 |
761,206 |
83,732 |
0 |
83,732 |
117.70 |
$9,855 |
$1,247 |
|||||
| Property Account Status/Adjustments/Exemptions | ||
|---|---|---|
| Account # | Exemption Description | Amount |
|
R045325400 |
5% Capped Account |
0 |
| Property Deed Transaction History (Recorded in the County Clerk's Office) | ||||||||||
|---|---|---|---|---|---|---|---|---|---|---|
| Date | Type | Book | Page | Price | Grantor | Grantee | ||||
|
11/18/2010 |
|
Deeds |
$495,000 |
FARRIS TODD F FARRIS MELINDA D |
HAWKINS TERRY L & BRENDA M |
|||||
|
10/29/2007 |
|
Deeds |
$475,000 |
SAWYER DAVID L JR |
FARRIS TODD F FARRIS MELINDA D |
|||||
|
3/21/2006 |
|
Deeds |
$387,000 |
COLLAZO WILLIAM & VIRGINIA CO TRS COLLAZO W A & V M REV TRUS |
SAWYER DAVID L JR |
|||||
|
7/8/2003 |
|
Deeds |
$0 |
COLLAZO WILLIAM A & VIRGINIA M |
COLLAZO WILLIAM & VIRGINIA CO TRS COLLAZO W A & V M REV TRUS |
|||||
|
7/7/2003 |
|
Deeds |
$0 |
COLLAZO WILLIAM A & VIRGINIA CO TRS COLLAZO WILLIAM & VIRGIN |
COLLAZO WILLIAM A & VIRGINIA M |
|||||
| Last Mailed Notice of Value (N.O.V.) Information/History | ||||||||
|---|---|---|---|---|---|---|---|---|
| Year | Date | Market Value | Taxable Market Value | Gross Assessed | Exemption | Net Assessed | ||
|
2026 |
02/23/2026 |
995,500 |
971,511 |
106,865 |
0 |
106,865 |
||
|
2025 |
02/14/2025 |
987,500 |
925,249 |
101,776 |
0 |
101,776 |
||
|
2024 |
02/13/2024 |
948,000 |
881,190 |
96,930 |
0 |
96,930 |
||
|
2023 |
02/14/2023 |
1,017,500 |
839,229 |
92,314 |
0 |
92,314 |
||
|
2022 |
03/15/2022 |
861,500 |
799,266 |
87,918 |
0 |
87,918 |
||
| Property Building Permit History | ||||||
|---|---|---|---|---|---|---|
| Issued | Permit # | Provided by | Bldg # | Description | Est Construction Cost | Status |
|
3/8/2000 |
10190411 |
OKLAHOMA CITY |
1 |
Remodeled |
45,000 |
Inactive |
|
6/29/1994 |
10190412 |
OKLAHOMA CITY |
1 |
Demolish |
0 |
Inactive |
|
6/29/1994 |
10190413 |
OKLAHOMA CITY |
1 |
Garage |
35,000 |
Inactive |
|
7/13/1992 |
10190410 |
OKLAHOMA CITY |
1 |
Add On |
3,000 |
Inactive |
| Click button on building number to access detailed information: | ||||||
|---|---|---|---|---|---|---|
| Bldg # | Vacant/Improved Land | Bldg Description | Year Built | SqFt | # Stories | |
|
1 |
Improved |
2 Story |
1925 |
2,516 |
2 Stories |
|