|
|
|
| Larry Stein Oklahoma County Assessor (405) 713-1200 - Public Access System |
|
|
|
|
|
|
| Real Property Display - Screen Produced 4/1/2026 7:39:37 AM | ||||
|---|---|---|---|---|
| Account: R150513310 | Type: Residential | Location: |
2108 STEVENS DR |
|
| Building Name/Occupant: |
|
MIDWEST CITY |
||
| Owner Name 1: | BOGARD ANTHONY B & MERRI LYNN |
Parcel PIN#: |
1409-15-051-3310 |
|
| Owner Name 2: | 1/4 section #: |
1409 |
||
| Owner Name 3: | Parent Acct: |
|
||
| Billing Address: | 2108 STEVENS DR | Tax District: |
|
|
| City, State, Zip | MIDWEST CITY, OK 73110-4744 | School System: |
Mid-Del #52 |
|
|
Country: (If noted) |
Land Size: |
0.2273 Acres |
||
|
Land Value: 28,215 |
|
|||
|
Sect 3-T11N-R2W Qtr NE |
COUNTRY ESTATES 4TH
Block
011
Lot
011
|
|||
| Full Legal Description: COUNTRY ESTATES 4TH 011 011 |
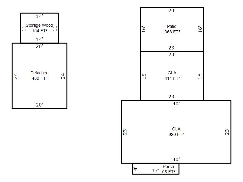
| Photo & Sketch (if available) | Comp Sales (ordered by relevancy) |
|
||||||||||||||||||
|
||||||||||||||||||||
| Value History (*The County Treasurer 405-713-1300 posts & collects actual tax amounts. Contact information HERE) | |||||||||||||
|---|---|---|---|---|---|---|---|---|---|---|---|---|---|
| Year | Market Value | Taxable Mkt Value | Gross Assessed | Exemption | Net Assessed | Millage | Est. Tax | Tax Savings | |||||
|
2026 |
121,500 |
91,795 |
10,096 |
0 |
10,096 |
119.58 |
$1,207 |
$391 |
|||||
|
2025 |
118,500 |
87,424 |
9,615 |
0 |
9,615 |
119.58 |
$1,150 |
$409 |
|||||
|
2024 |
111,000 |
83,261 |
9,158 |
0 |
9,158 |
122.51 |
$1,122 |
$374 |
|||||
|
2023 |
97,500 |
79,297 |
8,722 |
0 |
8,722 |
117.71 |
$1,027 |
$236 |
|||||
|
2022 |
85,500 |
75,521 |
8,306 |
0 |
8,306 |
116.64 |
$969 |
$128 |
|||||
| Property Account Status/Adjustments/Exemptions | ||
|---|---|---|
| Account # | Exemption Description | Amount |
|
R150513310 |
5% Capped Account |
0 |
| Property Deed Transaction History (Recorded in the County Clerk's Office) | |||||||
|---|---|---|---|---|---|---|---|
| Date | Type | Book | Page | Price | Grantor | Grantee | |
|
8/26/1993 |
|
Historical |
$35,000 |
MARSH E A & N M |
BOGARD ANTHONY B & MERRI LYNN |
||
|
11/11/1911 |
|
Historical |
$0 |
|
MARSH E A & N M |
||
| Last Mailed Notice of Value (N.O.V.) Information/History | ||||||||
|---|---|---|---|---|---|---|---|---|
| Year | Date | Market Value | Taxable Market Value | Gross Assessed | Exemption | Net Assessed | ||
|
2026 |
02/06/2026 |
121,500 |
91,795 |
10,096 |
0 |
10,096 |
||
|
2025 |
01/31/2025 |
118,500 |
87,424 |
9,615 |
0 |
9,615 |
||
|
2024 |
01/22/2024 |
111,000 |
83,261 |
9,158 |
0 |
9,158 |
||
|
2023 |
01/23/2023 |
97,500 |
79,297 |
8,722 |
0 |
8,722 |
||
|
2022 |
02/22/2022 |
85,500 |
75,521 |
8,306 |
0 |
8,306 |
||
| Property Building Permit History | |||||||||||
|---|---|---|---|---|---|---|---|---|---|---|---|
| Issued | Permit # | Provided by | Bldg # | Description | Est Construction Cost | Status | |||||
| No Building Permit records returned. | |||||||||||
| Click button on building number to access detailed information: | ||||||
|---|---|---|---|---|---|---|
| Bldg # | Vacant/Improved Land | Bldg Description | Year Built | SqFt | # Stories | |
|
1 |
Improved |
Ranch 1 Story |
1951 |
1,334 |
1 Stories |
|