|
|
|
| Larry Stein Oklahoma County Assessor (405) 713-1200 - Public Access System |
|
|
|
|
|
|
| Real Property Display - Screen Produced 3/17/2026 1:35:36 AM | ||||
|---|---|---|---|---|
| Account: R045000189 | Type: Residential | Location: |
611 NW 22ND ST |
|
| Building Name/Occupant: |
|
OKLAHOMA CITY |
||
| Owner Name 1: | CAMPBELL ZACHARY MICHAEL & DIYAHNA |
Parcel PIN#: |
2712-04-500-0189 |
|
| Owner Name 2: | 1/4 section #: |
2712 |
||
| Owner Name 3: | Parent Acct: |
|
||
| Billing Address: | 611 NW 22ND ST | Tax District: |
|
|
| City, State, Zip | OKLAHOMA CITY, OK 73103-1401 | School System: |
Oklahoma City #89 |
|
|
Country: (If noted) |
Land Size: |
0.1607 Acres |
||
|
Land Value: 54,250 |
|
|||
|
Sect 28-T12N-R3W Qtr NW |
UNIVERSITY ADDITION
Block
002
Lot
000
|
|||
| Full Legal Description: UNIVERSITY ADDITION 002 000 LOTS 21 & 22 |
| Photo & Sketch (if available) | Comp Sales (ordered by relevancy) |
|
||||||||||||||||||
|
||||||||||||||||||||
| Value History (*The County Treasurer 405-713-1300 posts & collects actual tax amounts. Contact information HERE) | |||||||||||||
|---|---|---|---|---|---|---|---|---|---|---|---|---|---|
| Year | Market Value | Taxable Mkt Value | Gross Assessed | Exemption | Net Assessed | Millage | Est. Tax | Tax Savings | |||||
|
2025 |
234,500 |
234,500 |
25,795 |
0 |
25,795 |
122.90 |
$3,170 |
$0 |
|||||
|
2024 |
226,500 |
122,985 |
13,528 |
0 |
13,528 |
123.89 |
$1,676 |
$1,411 |
|||||
|
2023 |
213,000 |
117,129 |
12,883 |
0 |
12,883 |
122.82 |
$1,582 |
$1,295 |
|||||
|
2022 |
170,000 |
111,552 |
12,269 |
0 |
12,269 |
117.63 |
$1,443 |
$756 |
|||||
|
2021 |
161,500 |
106,240 |
11,685 |
0 |
11,685 |
117.70 |
$1,375 |
$715 |
|||||
| Property Account Status/Adjustments/Exemptions | ||||||
|---|---|---|---|---|---|---|
| Account # | Exemption Description | Amount | ||||
| No adjustment/exemption records returned. | ||||||
| Property Deed Transaction History (Recorded in the County Clerk's Office) | ||||||||||
|---|---|---|---|---|---|---|---|---|---|---|
| Date | Type | Book | Page | Price | Grantor | Grantee | ||||
|
7/10/2025 |
|
Deeds |
$340,000 |
OMEGA INVESTMENTS LLC |
CAMPBELL ZACHARY MICHAEL & DIYAHNA |
|||||
|
10/30/2024 |
|
Deeds |
$150,000 |
COBB ROY L JR SUCCESSOR CO TRS ETAL |
OMEGA INVESTMENTS LLC |
|||||
|
9/24/2014 |
|
Hmstd Off & |
$0 |
DODSON IRENE FEWELL CO TRS |
COBB ROY L JR SUCCESSOR CO TRS ETAL |
|||||
|
5/30/2010 |
|
Deeds |
$0 |
DODSON IRENE FAMILY TRUST FEWELL TRUST |
DODSON IRENE FEWELL CO TRS |
|||||
|
6/24/2009 |
|
Deeds |
$0 |
DODSON IRENE FAMILY TRUST FEWELL CHARLES GLENN |
DODSON IRENE FAMILY TRUST FEWELL TRUST |
|||||
| Last Mailed Notice of Value (N.O.V.) Information/History | ||||||||
|---|---|---|---|---|---|---|---|---|
| Year | Date | Market Value | Taxable Market Value | Gross Assessed | Exemption | Net Assessed | ||
|
2026 |
02/23/2026 |
350,000 |
350,000 |
38,500 |
0 |
38,500 |
||
|
2025 |
02/14/2025 |
234,500 |
234,500 |
25,795 |
0 |
25,795 |
||
|
2024 |
02/13/2024 |
226,500 |
122,985 |
13,528 |
0 |
13,528 |
||
|
2023 |
02/14/2023 |
213,000 |
117,129 |
12,883 |
0 |
12,883 |
||
|
2022 |
03/15/2022 |
170,000 |
111,552 |
12,269 |
0 |
12,269 |
||
| Property Building Permit History | |||||||||||
|---|---|---|---|---|---|---|---|---|---|---|---|
| Issued | Permit # | Provided by | Bldg # | Description | Est Construction Cost | Status | |||||
| No Building Permit records returned. | |||||||||||
| Click button on building number to access detailed information: | ||||||
|---|---|---|---|---|---|---|
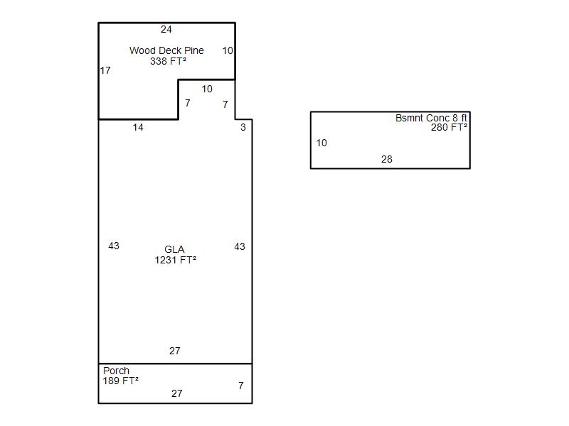
| Bldg # | Vacant/Improved Land | Bldg Description | Year Built | SqFt | # Stories | |
|
1 |
Improved |
Ranch 1 Story |
1923 |
1,231 |
1 Stories |
|