|
|
|
| Larry Stein Oklahoma County Assessor (405) 713-1200 - Public Access System |
|
|
|
|
|
|
| Real Property Display - Screen Produced 3/17/2026 1:35:33 AM | ||||
|---|---|---|---|---|
| Account: R045000216 | Type: Residential | Location: |
625 NW 22ND ST |
|
| Building Name/Occupant: |
|
OKLAHOMA CITY |
||
| Owner Name 1: | DKR PROPERTIES LLC |
Parcel PIN#: |
2712-04-500-0216 |
|
| Owner Name 2: | 1/4 section #: |
2712 |
||
| Owner Name 3: | Parent Acct: |
|
||
| Billing Address: | 3805 HIGHRIDGE | Tax District: |
|
|
| City, State, Zip | EDMOND, OK 73003-3056 | School System: |
Oklahoma City #89 |
|
|
Country: (If noted) |
Land Size: |
0.1607 Acres |
||
|
Land Value: 54,250 |
|
|||
|
Sect 28-T12N-R3W Qtr NW |
UNIVERSITY ADDITION
Block
002
Lot
000
|
|||
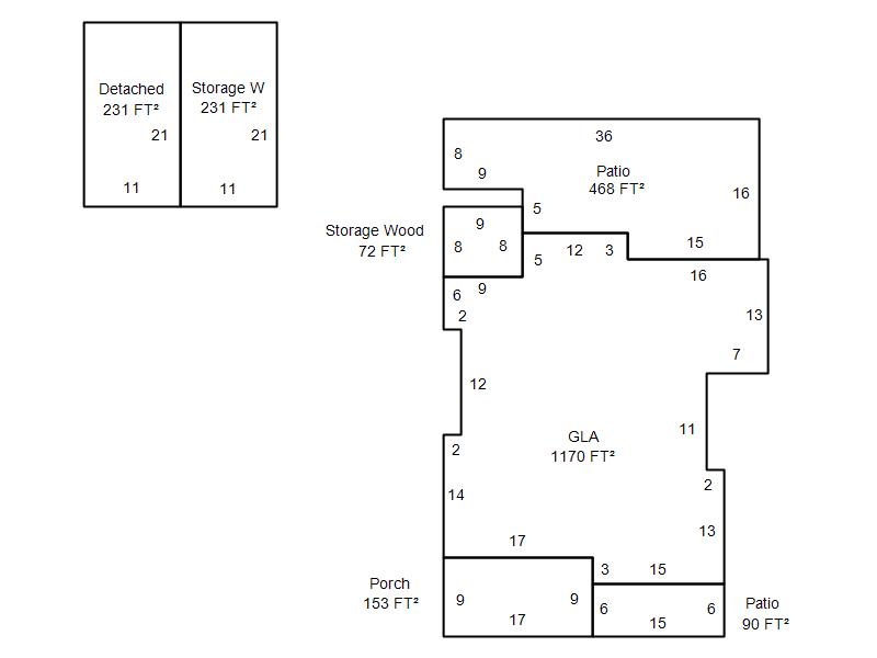
| Full Legal Description: UNIVERSITY ADDITION 002 000 LOTS 27 & 28 |
| Photo & Sketch (if available) | Comp Sales (ordered by relevancy) |
|
||||||||||||||||||
|
||||||||||||||||||||
| Value History (*The County Treasurer 405-713-1300 posts & collects actual tax amounts. Contact information HERE) | |||||||||||||
|---|---|---|---|---|---|---|---|---|---|---|---|---|---|
| Year | Market Value | Taxable Mkt Value | Gross Assessed | Exemption | Net Assessed | Millage | Est. Tax | Tax Savings | |||||
|
2025 |
239,500 |
150,832 |
16,591 |
0 |
16,591 |
122.90 |
$2,039 |
$1,199 |
|||||
|
2024 |
232,000 |
143,650 |
15,801 |
0 |
15,801 |
123.89 |
$1,958 |
$1,204 |
|||||
|
2023 |
219,500 |
136,810 |
15,048 |
0 |
15,048 |
122.82 |
$1,848 |
$1,117 |
|||||
|
2022 |
174,000 |
130,296 |
14,332 |
0 |
14,332 |
117.63 |
$1,686 |
$565 |
|||||
|
2021 |
168,000 |
124,092 |
13,650 |
0 |
13,650 |
117.70 |
$1,607 |
$568 |
|||||
| Property Account Status/Adjustments/Exemptions | ||
|---|---|---|
| Account # | Exemption Description | Amount |
|
R045000216 |
5% Capped Account |
0 |
| Property Deed Transaction History (Recorded in the County Clerk's Office) | ||||||||||
|---|---|---|---|---|---|---|---|---|---|---|
| Date | Type | Book | Page | Price | Grantor | Grantee | ||||
|
10/20/2014 |
|
Hmstd Off & |
$0 |
REEDER DILLON & KIM |
DKR PROPERTIES LLC |
|||||
|
8/6/2010 |
|
Deeds |
$79,000 |
FOUGHT MICHAEL & LAURA |
REEDER DILLON & KIM |
|||||
|
11/2/2006 |
|
Deeds |
$82,500 |
SCHACTER NATHAN D |
FOUGHT MICHAEL & LAURA |
|||||
|
9/21/2000 |
|
Deeds |
$0 |
SCHACTER NATHAN D DC |
SCHACTER NATHAN D |
|||||
|
8/25/2000 |
|
Deeds |
$56,500 |
WHITTON DONALD MICHAEL |
SCHACTER NATHAN D DC |
|||||
| Last Mailed Notice of Value (N.O.V.) Information/History | ||||||||
|---|---|---|---|---|---|---|---|---|
| Year | Date | Market Value | Taxable Market Value | Gross Assessed | Exemption | Net Assessed | ||
|
2026 |
02/23/2026 |
251,000 |
158,373 |
17,420 |
0 |
17,420 |
||
|
2025 |
02/14/2025 |
239,500 |
150,832 |
16,591 |
0 |
16,591 |
||
|
2024 |
02/13/2024 |
232,000 |
143,650 |
15,801 |
0 |
15,801 |
||
|
2023 |
02/14/2023 |
219,500 |
136,810 |
15,048 |
0 |
15,048 |
||
|
2022 |
03/15/2022 |
174,000 |
130,296 |
14,332 |
0 |
14,332 |
||
| Property Building Permit History | |||||||||||
|---|---|---|---|---|---|---|---|---|---|---|---|
| Issued | Permit # | Provided by | Bldg # | Description | Est Construction Cost | Status | |||||
| No Building Permit records returned. | |||||||||||
| Click button on building number to access detailed information: | ||||||
|---|---|---|---|---|---|---|
| Bldg # | Vacant/Improved Land | Bldg Description | Year Built | SqFt | # Stories | |
|
1 |
Improved |
Ranch 1 Story |
1924 |
1,170 |
1 Stories |
|