|
|
|
| Larry Stein Oklahoma County Assessor (405) 713-1200 - Public Access System |
|
|
|
|
|
|
| Real Property Display - Screen Produced 3/17/2026 1:36:34 AM | ||||
|---|---|---|---|---|
| Account: R045000234 | Type: Residential | Location: |
631 NW 22ND ST |
|
| Building Name/Occupant: |
|
OKLAHOMA CITY |
||
| Owner Name 1: | MELOT JUSTIN |
Parcel PIN#: |
2712-04-500-0234 |
|
| Owner Name 2: | MELOT SHAE | 1/4 section #: |
2712 |
|
| Owner Name 3: | Parent Acct: |
|
||
| Billing Address: | 631 NW 22ND ST | Tax District: |
|
|
| City, State, Zip | OKLAHOMA CITY, OK 73103-1401 | School System: |
Oklahoma City #89 |
|
|
Country: (If noted) |
Land Size: |
0.1607 Acres |
||
|
Land Value: 54,250 |
|
|||
|
Sect 28-T12N-R3W Qtr NW |
UNIVERSITY ADDITION
Block
002
Lot
000
|
|||
| Full Legal Description: UNIVERSITY ADDITION 002 000 LOTS 31 & 32 |
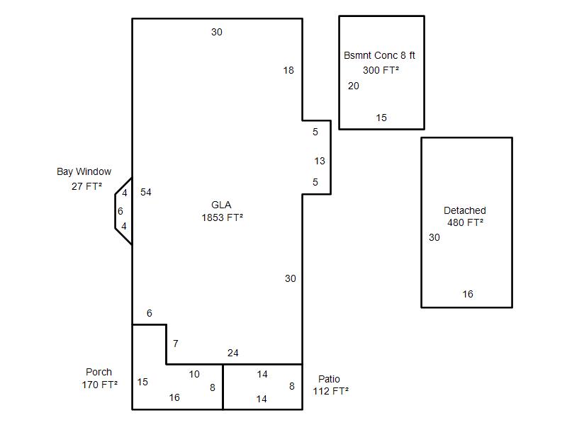
| Photo & Sketch (if available) | Comp Sales (ordered by relevancy) |
|
||||||||||||||||||
|
||||||||||||||||||||
| Value History (*The County Treasurer 405-713-1300 posts & collects actual tax amounts. Contact information HERE) | |||||||||||||
|---|---|---|---|---|---|---|---|---|---|---|---|---|---|
| Year | Market Value | Taxable Mkt Value | Gross Assessed | Exemption | Net Assessed | Millage | Est. Tax | Tax Savings | |||||
|
2025 |
451,500 |
410,377 |
45,140 |
0 |
45,140 |
122.90 |
$5,548 |
$556 |
|||||
|
2024 |
456,500 |
390,836 |
42,991 |
0 |
42,991 |
123.89 |
$5,326 |
$895 |
|||||
|
2023 |
423,500 |
372,225 |
40,944 |
0 |
40,944 |
122.82 |
$5,029 |
$693 |
|||||
|
2022 |
354,500 |
354,500 |
38,995 |
0 |
38,995 |
117.63 |
$4,587 |
$0 |
|||||
|
2021 |
338,000 |
338,000 |
37,180 |
0 |
37,180 |
117.70 |
$4,376 |
$0 |
|||||
| Property Account Status/Adjustments/Exemptions | ||||||
|---|---|---|---|---|---|---|
| Account # | Exemption Description | Amount | ||||
| No adjustment/exemption records returned. | ||||||
| Property Deed Transaction History (Recorded in the County Clerk's Office) | ||||||||||
|---|---|---|---|---|---|---|---|---|---|---|
| Date | Type | Book | Page | Price | Grantor | Grantee | ||||
|
3/14/2025 |
|
Deeds |
$440,000 |
FERGUSON JOHN CEPHAS |
MELOT JUSTIN |
|||||
|
2/5/2018 |
|
Deeds |
$310,000 |
THE RUFF HOUSE LLC |
FERGUSON JOHN CEPHAS |
|||||
|
8/24/2016 |
|
Deeds |
$0 |
BRIGGS CLARENCE & SUSAN ALLEN |
BRIGGS CLARENCE E |
|||||
|
8/24/2016 |
|
Deeds |
$200,000 |
BRIGGS CLARENCE E |
S & L SOLUTIONS LLC |
|||||
|
8/24/2016 |
|
Deeds |
$235,000 |
S & L SOLUTIONS LLC |
THE RUFF HOUSE LLC |
|||||
| Last Mailed Notice of Value (N.O.V.) Information/History | ||||||||
|---|---|---|---|---|---|---|---|---|
| Year | Date | Market Value | Taxable Market Value | Gross Assessed | Exemption | Net Assessed | ||
|
2026 |
02/23/2026 |
451,000 |
451,000 |
49,610 |
0 |
49,610 |
||
|
2025 |
02/14/2025 |
451,500 |
410,377 |
45,140 |
0 |
45,140 |
||
|
2025 |
03/28/2025 |
451,500 |
410,377 |
45,140 |
0 |
45,140 |
||
|
2024 |
02/13/2024 |
456,500 |
390,836 |
42,991 |
0 |
42,991 |
||
|
2023 |
02/14/2023 |
423,500 |
372,225 |
40,944 |
0 |
40,944 |
||
| Property Building Permit History | ||||||
|---|---|---|---|---|---|---|
| Issued | Permit # | Provided by | Bldg # | Description | Est Construction Cost | Status |
|
5/3/1993 |
10190081 |
OKLAHOMA CITY |
1 |
Garage |
1,000 |
Inactive |
|
4/29/1993 |
10190080 |
OKLAHOMA CITY |
1 |
Demolish |
0 |
Inactive |
| Click button on building number to access detailed information: | ||||||
|---|---|---|---|---|---|---|
| Bldg # | Vacant/Improved Land | Bldg Description | Year Built | SqFt | # Stories | |
|
1 |
Improved |
Ranch 1 Story |
1923 |
1,880 |
1 Stories |
|