|
|
|
| Larry Stein Oklahoma County Assessor (405) 713-1200 - Public Access System |
|
|
|
|
|
|
| Real Property Display - Screen Produced 3/19/2026 5:38:53 AM | ||||
|---|---|---|---|---|
| Account: R045000315 | Type: Residential | Location: |
705 NW 22ND ST |
|
| Building Name/Occupant: |
|
OKLAHOMA CITY |
||
| Owner Name 1: | BABY BLUE EYES LLC |
Parcel PIN#: |
2712-04-500-0315 |
|
| Owner Name 2: | 1/4 section #: |
2712 |
||
| Owner Name 3: | Parent Acct: |
|
||
| Billing Address: | 2508 NW 69TH ST | Tax District: |
|
|
| City, State, Zip | OKLAHOMA CITY, OK 73116-4714 | School System: |
Oklahoma City #89 |
|
|
Country: (If noted) |
Land Size: |
0.1189 Acres |
||
|
Land Value: 40,145 |
|
|||
|
Sect 28-T12N-R3W Qtr NW |
UNIVERSITY ADDITION
Block
003
Lot
000
|
|||
| Full Legal Description: UNIVERSITY ADDITION 003 000 W 1/2 LOT 19 & ALL LOT 20 |
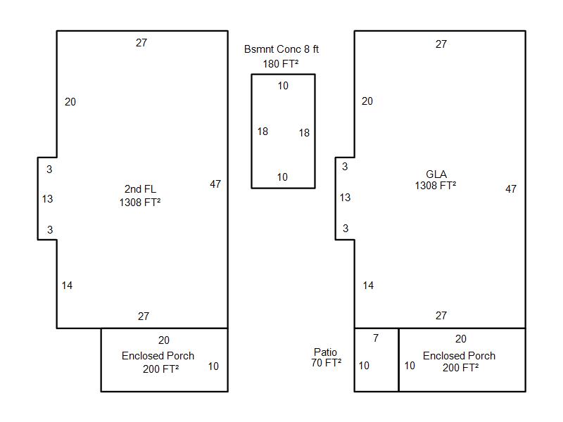
| Photo & Sketch (if available) | Comp Sales (ordered by relevancy) |
|
||||||||||||||||||
|
||||||||||||||||||||
| Value History (*The County Treasurer 405-713-1300 posts & collects actual tax amounts. Contact information HERE) | |||||||||||||
|---|---|---|---|---|---|---|---|---|---|---|---|---|---|
| Year | Market Value | Taxable Mkt Value | Gross Assessed | Exemption | Net Assessed | Millage | Est. Tax | Tax Savings | |||||
|
2025 |
414,500 |
144,440 |
15,887 |
0 |
15,887 |
122.90 |
$1,953 |
$3,651 |
|||||
|
2024 |
401,000 |
137,562 |
15,131 |
0 |
15,131 |
123.89 |
$1,875 |
$3,590 |
|||||
|
2023 |
386,500 |
131,012 |
14,411 |
0 |
14,411 |
122.82 |
$1,770 |
$3,452 |
|||||
|
2022 |
360,000 |
124,774 |
13,724 |
0 |
13,724 |
117.63 |
$1,614 |
$3,044 |
|||||
|
2021 |
318,000 |
118,833 |
13,071 |
0 |
13,071 |
117.70 |
$1,539 |
$2,579 |
|||||
| Property Account Status/Adjustments/Exemptions | ||||||
|---|---|---|---|---|---|---|
| Account # | Exemption Description | Amount | ||||
| No adjustment/exemption records returned. | ||||||
| Property Deed Transaction History (Recorded in the County Clerk's Office) | |||||||
|---|---|---|---|---|---|---|---|
| Date | Type | Book | Page | Price | Grantor | Grantee | |
|
8/14/2025 |
|
Hmstd Off & |
$0 |
WASSON PROPERTIES LLC |
BABY BLUE EYES LLC |
||
|
3/24/2022 |
|
Hmstd Off & |
$0 |
WASSON LESLIE TRS & REV TRUST |
WASSON PROPERTIES LLC |
||
|
3/12/2003 |
|
Deeds |
$0 |
WASON LESLIE |
WASSON LESLIE TRS & REV TRUST |
||
|
3/22/1994 |
|
Historical |
$0 |
ROGERS WILLIAM B |
WASSON LESLIE S |
||
|
7/1/1984 |
|
Historical |
$0 |
|
ROGERS WILLIAM B |
||
| Last Mailed Notice of Value (N.O.V.) Information/History | ||||||||
|---|---|---|---|---|---|---|---|---|
| Year | Date | Market Value | Taxable Market Value | Gross Assessed | Exemption | Net Assessed | ||
|
2026 |
02/23/2026 |
409,500 |
151,662 |
16,682 |
0 |
16,682 |
||
|
2025 |
02/14/2025 |
414,500 |
144,440 |
15,887 |
0 |
15,887 |
||
|
2024 |
02/13/2024 |
401,000 |
137,562 |
15,131 |
0 |
15,131 |
||
|
2023 |
02/14/2023 |
386,500 |
131,012 |
14,411 |
0 |
14,411 |
||
|
2022 |
03/15/2022 |
360,000 |
124,774 |
13,724 |
0 |
13,724 |
||
| Property Building Permit History | |||||||||||
|---|---|---|---|---|---|---|---|---|---|---|---|
| Issued | Permit # | Provided by | Bldg # | Description | Est Construction Cost | Status | |||||
| No Building Permit records returned. | |||||||||||
| Click button on building number to access detailed information: | ||||||
|---|---|---|---|---|---|---|
| Bldg # | Vacant/Improved Land | Bldg Description | Year Built | SqFt | # Stories | |
|
1 |
Improved |
Duplex Two Story |
1909 |
2,616 |
2 Stories |
|