|
|
|
| Larry Stein Oklahoma County Assessor (405) 713-1200 - Public Access System |
|
|
|
|
|
|
| Real Property Display - Screen Produced 3/19/2026 5:38:53 AM | ||||
|---|---|---|---|---|
| Account: R045000006 | Type: Commercial | Location: |
1701 N CLASSEN BLVD |
|
| Building Name/Occupant: |
CLASSEN 16 APARTMENTS |
OKLAHOMA CITY |
||
| Owner Name 1: | CLASSEN16OKC JV LLC |
Parcel PIN#: |
2713-04-500-0006 |
|
| Owner Name 2: | 1/4 section #: |
2713 |
||
| Owner Name 3: | Parent Acct: |
|
||
| Billing Address: | 204 SE 6TH ST, Unit 201 | Tax District: |
|
|
| City, State, Zip | BENTONVILLE, AR 72712-2805 | School System: |
Oklahoma City #89 |
|
|
Country: (If noted) |
Land Size: |
49,125.0000 Square Feet |
||
|
Land Value: 688,831 |
|
|||
|
Sect 29-T12N-R3W Qtr NE |
UNIVERSITY ADDITION
Block
00B
Lot
000
|
|||
| Full Legal Description: UNIVERSITY ADDITION BLK 000 LOT 000 S/2 OF BLK B & S/2 OF A 55FT STRIP ADJ ON W & LOTS 13 THRU 16 BLK 75 & S/2 OF VACATED ALLEY ADJ LTS 13 THRU 16 ON N |
| No comparable sales report available. | ||||||||||||||||||||||
|
||||||||||||||||||||||
| Value History (*The County Treasurer 405-713-1300 posts & collects actual tax amounts. Contact information HERE) | |||||||||||||
|---|---|---|---|---|---|---|---|---|---|---|---|---|---|
| Year | Market Value | Taxable Mkt Value | Gross Assessed | Exemption | Net Assessed | Millage | Est. Tax | Tax Savings | |||||
|
2025 |
7,558,372 |
7,558,372 |
831,420 |
0 |
831,420 |
122.90 |
$102,182 |
$0 |
|||||
|
2024 |
7,750,000 |
7,750,000 |
852,500 |
0 |
852,500 |
123.89 |
$105,616 |
$0 |
|||||
|
2023 |
8,533,829 |
8,222,163 |
904,437 |
0 |
904,437 |
122.82 |
$111,083 |
$4,211 |
|||||
|
2022 |
7,830,632 |
7,830,632 |
861,369 |
0 |
861,369 |
117.63 |
$101,323 |
$0 |
|||||
|
2021 |
765,368 |
765,368 |
84,190 |
0 |
84,190 |
117.70 |
$9,909 |
$0 |
|||||
| Property Account Status/Adjustments/Exemptions | ||
|---|---|---|
| Account # | Exemption Description | Amount |
|
R045000006 |
5% Capped Account |
0 |
| Property Deed Transaction History (Recorded in the County Clerk's Office) | ||||||||||
|---|---|---|---|---|---|---|---|---|---|---|
| Date | Type | Book | Page | Price | Grantor | Grantee | ||||
|
4/18/2024 |
|
Deeds |
$7,750,000 |
1701 N CLASSEN LLC |
CLASSEN16OKC JV LLC |
|||||
|
12/28/2018 |
|
Deeds |
$0 |
JOURNAL ENTRY OF JUDGMENT |
1701 N CLASSEN LLC |
|||||
|
7/17/2015 |
|
Deeds |
$750,000 |
DDDD LLC |
1701 N CLASSEN LLC |
|||||
|
11/18/2014 |
|
Deeds |
$500,000 |
MARTINEZ JUANA |
DDDD LLC |
|||||
|
6/6/2003 |
|
Deeds |
$235,000 |
LANDRITH ANN REV TRUST LEAVITT CHERYL H CO TRS |
MARTINEZ JUANA |
|||||
| Last Mailed Notice of Value (N.O.V.) Information/History | ||||||||
|---|---|---|---|---|---|---|---|---|
| Year | Date | Market Value | Taxable Market Value | Gross Assessed | Exemption | Net Assessed | ||
|
2024 |
03/12/2024 |
8,533,829 |
8,533,829 |
938,721 |
0 |
938,721 |
||
|
2023 |
03/13/2023 |
8,533,829 |
8,222,163 |
904,437 |
0 |
904,437 |
||
|
2022 |
04/05/2022 |
7,830,632 |
7,830,632 |
861,369 |
0 |
861,369 |
||
|
2019 |
04/05/2019 |
765,535 |
765,535 |
84,209 |
0 |
84,209 |
||
|
2016 |
03/14/2016 |
750,000 |
750,000 |
82,500 |
0 |
82,500 |
||
| Property Building Permit History | ||||||
|---|---|---|---|---|---|---|
| Issued | Permit # | Provided by | Bldg # | Description | Est Construction Cost | Status |
|
8/11/2025 |
BLDC-2025-03241 |
|
1 |
Supplement |
495,000 |
Active |
|
4/28/2025 |
BLDC-2024-05900 |
|
1 |
Carport |
14,750 |
Inactive |
|
2/22/2019 |
BLDC2016-09394 |
|
1 |
Commercial |
5,000,000 |
Inactive |
|
8/4/2016 |
10486687 |
OKLAHOMA CITY |
1 |
Demolish |
0 |
Inactive |
|
4/3/1997 |
10190071 |
OKLAHOMA CITY |
1 |
Remodeled |
3,000 |
Inactive |
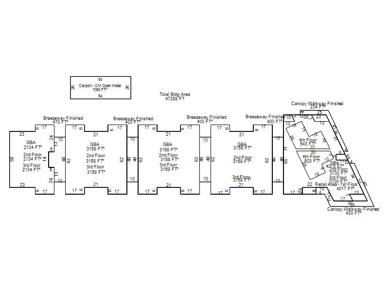
| Click button on building number to access detailed information: | ||||||
|---|---|---|---|---|---|---|
| Bldg # | Vacant/Improved Land | Bldg Description | Year Built | SqFt | # Stories | |
|
1 |
Improved |
Multiple - Residential |
2021 |
47,288 |
3.5 Stories |
|