|
|
|
| Larry Stein Oklahoma County Assessor (405) 713-1200 - Public Access System |
|
|
|
|
|
|
| Real Property Display - Screen Produced 3/17/2026 1:35:35 AM | ||||
|---|---|---|---|---|
| Account: R045001026 | Type: Commercial | Location: |
1400 NW 23RD ST |
|
| Building Name/Occupant: |
HTeaO |
OKLAHOMA CITY |
||
| Owner Name 1: | MOONLIGHT LAND OWNERSHIP COMPANY LLC SERIE EXODUS |
Parcel PIN#: |
2713-04-500-1026 |
|
| Owner Name 2: | 1/4 section #: |
2713 |
||
| Owner Name 3: | Parent Acct: |
|
||
| Billing Address: | 1850 LOHMAN CIR | Tax District: |
|
|
| City, State, Zip | NORMAN , OK 73069 | School System: |
Oklahoma City #89 |
|
|
Country: (If noted) |
Land Size: |
19,650.0000 Square Feet |
||
|
Land Value: 265,275 |
|
|||
|
Sect 29-T12N-R3W Qtr NE |
UNIVERSITY ADDITION
Block
010
Lot
000
|
|||
| Full Legal Description: UNIVERSITY ADDITION 010 000 LOTS 7 THRU 12 |
| No comparable sales report available. | ||||||||||||||||||||||
|
||||||||||||||||||||||
| Value History (*The County Treasurer 405-713-1300 posts & collects actual tax amounts. Contact information HERE) | |||||||||||||
|---|---|---|---|---|---|---|---|---|---|---|---|---|---|
| Year | Market Value | Taxable Mkt Value | Gross Assessed | Exemption | Net Assessed | Millage | Est. Tax | Tax Savings | |||||
|
2025 |
809,089 |
809,089 |
88,999 |
0 |
88,999 |
122.90 |
$10,938 |
$0 |
|||||
|
2024 |
809,089 |
809,089 |
88,999 |
0 |
88,999 |
123.89 |
$11,026 |
$0 |
|||||
|
2023 |
817,550 |
817,550 |
89,930 |
0 |
89,930 |
122.82 |
$11,045 |
$0 |
|||||
|
2022 |
294,750 |
294,750 |
32,422 |
0 |
32,422 |
117.63 |
$3,814 |
$0 |
|||||
|
2021 |
294,750 |
294,750 |
32,422 |
0 |
32,422 |
117.70 |
$3,816 |
$0 |
|||||
| Property Account Status/Adjustments/Exemptions | ||
|---|---|---|
| Account # | Exemption Description | Amount |
|
R045001026 |
5% Capped Account |
0 |
| Property Deed Transaction History (Recorded in the County Clerk's Office) | |||||||
|---|---|---|---|---|---|---|---|
| Date | Type | Book | Page | Price | Grantor | Grantee | |
|
11/25/2020 |
|
Deeds |
$725,000 |
JORDAN FONG |
MOONLIGHT LAND OWNERSHIP COMPANY LLC SERIE EXODUS |
||
|
9/13/2019 |
|
Deeds |
$500,000 |
CHARLES A SHADID LLC |
JORDAN FONG |
||
|
9/3/2007 |
|
Hmstd Off & |
$0 |
SHADID CHARLES A REV TRUST |
CHARLES A SHADID LLC |
||
|
10/2/1998 |
|
Historical |
$0 |
SHADID CHARLES A |
SHADID CHARLES A REV TRUST |
||
|
11/11/1911 |
|
Historical |
$0 |
|
SHADID CHARLES A |
||
| Last Mailed Notice of Value (N.O.V.) Information/History | ||||||||
|---|---|---|---|---|---|---|---|---|
| Year | Date | Market Value | Taxable Market Value | Gross Assessed | Exemption | Net Assessed | ||
|
2023 |
03/13/2023 |
817,550 |
817,550 |
89,930 |
0 |
89,930 |
||
|
2021 |
03/22/2021 |
294,750 |
294,750 |
32,422 |
0 |
32,422 |
||
|
2020 |
03/16/2020 |
191,093 |
191,093 |
21,020 |
0 |
21,020 |
||
|
2019 |
04/05/2019 |
293,760 |
186,573 |
20,523 |
0 |
20,523 |
||
|
2018 |
04/18/2018 |
293,760 |
177,689 |
19,545 |
0 |
19,545 |
||
| Property Building Permit History | ||||||
|---|---|---|---|---|---|---|
| Issued | Permit # | Provided by | Bldg # | Description | Est Construction Cost | Status |
|
8/12/2020 |
BLDD-2020-05278 |
|
|
Demolish |
0 |
Inactive |
|
1/17/2013 |
10448934 |
OKLAHOMA CITY |
|
Add On |
5,500 |
Inactive |
| Click button on building number to access detailed information: | ||||||
|---|---|---|---|---|---|---|
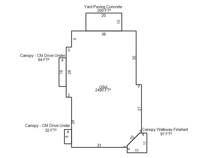
| Bldg # | Vacant/Improved Land | Bldg Description | Year Built | SqFt | # Stories | |
|
1 |
Improved |
Fast Food Restaurant |
2021 |
2,490 |
1 Stories |
|