|
|
|
| Larry Stein Oklahoma County Assessor (405) 713-1200 - Public Access System |
|
|
|
|
|
|
| Real Property Display - Screen Produced 4/1/2026 7:39:37 AM | ||||
|---|---|---|---|---|
| Account: R150514260 | Type: Residential | Location: |
805 S MIDWEST BLVD |
|
| Building Name/Occupant: |
|
MIDWEST CITY |
||
| Owner Name 1: | P163 LLC |
Parcel PIN#: |
1409-15-051-4260 |
|
| Owner Name 2: | 1/4 section #: |
1409 |
||
| Owner Name 3: | Parent Acct: |
|
||
| Billing Address: | 7317 NE 107TH ST | Tax District: |
|
|
| City, State, Zip | OKLAHOMA CITY, OK 73151-9461 | School System: |
Mid-Del #52 |
|
|
Country: (If noted) |
Land Size: |
0.1639 Acres |
||
|
Land Value: 20,349 |
|
|||
|
Sect 3-T11N-R2W Qtr NE |
COUNTRY ESTATES 4TH
Block
013
Lot
000
|
|||
| Full Legal Description: COUNTRY ESTATES 4TH 013 000 ALL LOT 36 & S1FT LOT 37 |
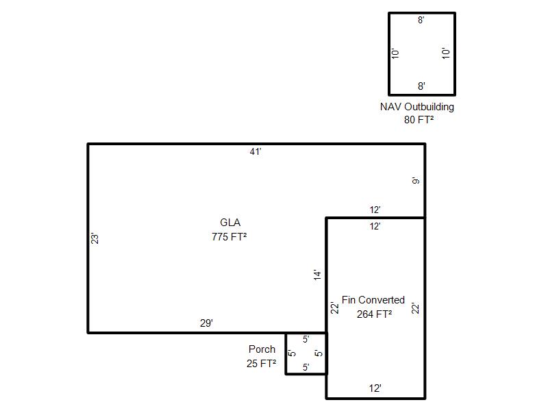
| Photo & Sketch (if available) | Comp Sales (ordered by relevancy) |
|
||||||||||||||||||
|
||||||||||||||||||||
| Value History (*The County Treasurer 405-713-1300 posts & collects actual tax amounts. Contact information HERE) | |||||||||||||
|---|---|---|---|---|---|---|---|---|---|---|---|---|---|
| Year | Market Value | Taxable Mkt Value | Gross Assessed | Exemption | Net Assessed | Millage | Est. Tax | Tax Savings | |||||
|
2026 |
123,500 |
123,500 |
13,585 |
0 |
13,585 |
119.58 |
$1,624 |
$0 |
|||||
|
2025 |
123,500 |
123,500 |
13,585 |
0 |
13,585 |
119.58 |
$1,624 |
$0 |
|||||
|
2024 |
115,500 |
85,084 |
9,358 |
0 |
9,358 |
122.51 |
$1,147 |
$410 |
|||||
|
2023 |
105,000 |
81,033 |
8,913 |
0 |
8,913 |
117.71 |
$1,049 |
$310 |
|||||
|
2022 |
91,000 |
77,175 |
8,489 |
0 |
8,489 |
116.64 |
$990 |
$177 |
|||||
| Property Account Status/Adjustments/Exemptions | ||
|---|---|---|
| Account # | Exemption Description | Amount |
|
R150514260 |
5% Capped Account |
0 |
| Property Deed Transaction History (Recorded in the County Clerk's Office) | ||||||||||
|---|---|---|---|---|---|---|---|---|---|---|
| Date | Type | Book | Page | Price | Grantor | Grantee | ||||
|
2/12/2024 |
|
Deeds |
$75,000 |
CHITTY BRIHTRIC B |
P163 LLC |
|||||
|
5/20/2019 |
|
Deeds |
$0 |
CHITTY BROOKE SHENEEN |
CHITTY BRIHTRIC B |
|||||
|
4/23/2008 |
|
Deeds |
$54,000 |
KUBICEK KAREN M |
CHITTY BRIHTRIC B |
|||||
|
9/28/2000 |
|
Deeds |
$30,000 |
LEWIS DELORES L & CHARLES W TRS LEWIS DELORES L LOVING TRS |
KUBICEK KAREN M |
|||||
|
9/25/2000 |
|
Deeds |
$0 |
LEWIS CHARLES W TRS LEWIS CHARLES W LOVING TRUST |
LEWIS DELORES L |
|||||
| Last Mailed Notice of Value (N.O.V.) Information/History | ||||||||
|---|---|---|---|---|---|---|---|---|
| Year | Date | Market Value | Taxable Market Value | Gross Assessed | Exemption | Net Assessed | ||
|
2025 |
01/31/2025 |
123,500 |
123,500 |
13,585 |
0 |
13,585 |
||
|
2024 |
01/22/2024 |
115,500 |
85,084 |
9,358 |
0 |
9,358 |
||
|
2024 |
03/01/2024 |
115,500 |
85,084 |
9,358 |
0 |
9,358 |
||
|
2023 |
01/23/2023 |
105,000 |
81,033 |
8,913 |
0 |
8,913 |
||
|
2022 |
02/22/2022 |
91,000 |
77,175 |
8,489 |
0 |
8,489 |
||
| Property Building Permit History | |||||||||||
|---|---|---|---|---|---|---|---|---|---|---|---|
| Issued | Permit # | Provided by | Bldg # | Description | Est Construction Cost | Status | |||||
| No Building Permit records returned. | |||||||||||
| Click button on building number to access detailed information: | ||||||
|---|---|---|---|---|---|---|
| Bldg # | Vacant/Improved Land | Bldg Description | Year Built | SqFt | # Stories | |
|
1 |
Improved |
Ranch 1 Story |
1952 |
775 |
1 Stories |
|