|
|
|
| Larry Stein Oklahoma County Assessor (405) 713-1200 - Public Access System |
|
|
|
|
|
|
| Real Property Display - Screen Produced 3/17/2026 8:27:45 AM | ||||
|---|---|---|---|---|
| Account: R045161200 | Type: Residential | Location: |
1413 NW 17TH ST, Unit 1/2 |
|
| Building Name/Occupant: |
|
OKLAHOMA CITY |
||
| Owner Name 1: | MAXEV INVESTMENT LLC |
Parcel PIN#: |
2713-04-516-1200 |
|
| Owner Name 2: | 1/4 section #: |
2713 |
||
| Owner Name 3: | Parent Acct: |
|
||
| Billing Address: | 2604 SW 136TH ST | Tax District: |
|
|
| City, State, Zip | OKLAHOMA CITY, OK 73170-5135 | School System: |
Oklahoma City #89 |
|
|
Country: (If noted) |
Land Size: |
0.1956 Acres |
||
|
Land Value: 47,286 |
|
|||
|
Sect 29-T12N-R3W Qtr NE |
NICHOLS UNIV PLACE
Block
001
Lot
006
|
|||
| Full Legal Description: NICHOLS UNIV PLACE 001 006 |
| Photo & Sketch (if available) | Comp Sales (ordered by relevancy) |
|
||||||||||||||||||
|
||||||||||||||||||||
| Value History (*The County Treasurer 405-713-1300 posts & collects actual tax amounts. Contact information HERE) | |||||||||||||
|---|---|---|---|---|---|---|---|---|---|---|---|---|---|
| Year | Market Value | Taxable Mkt Value | Gross Assessed | Exemption | Net Assessed | Millage | Est. Tax | Tax Savings | |||||
|
2025 |
452,000 |
277,659 |
30,542 |
0 |
30,542 |
122.90 |
$3,754 |
$2,357 |
|||||
|
2024 |
423,000 |
264,438 |
29,088 |
0 |
29,088 |
123.89 |
$3,604 |
$2,161 |
|||||
|
2023 |
392,000 |
251,846 |
27,702 |
0 |
27,702 |
122.82 |
$3,402 |
$1,894 |
|||||
|
2022 |
351,500 |
239,854 |
26,383 |
0 |
26,383 |
117.63 |
$3,104 |
$1,445 |
|||||
|
2021 |
291,000 |
228,433 |
25,127 |
0 |
25,127 |
117.70 |
$2,958 |
$810 |
|||||
| Property Account Status/Adjustments/Exemptions | ||
|---|---|---|
| Account # | Exemption Description | Amount |
|
R045161200 |
5% Capped Account |
0 |
| Property Deed Transaction History (Recorded in the County Clerk's Office) | |||||||
|---|---|---|---|---|---|---|---|
| Date | Type | Book | Page | Price | Grantor | Grantee | |
|
4/7/2015 |
|
Mult Parcel |
$1,185,000 |
SEABROOKE J KARYN & TOM TRS |
MAXEV INVESTMENT LLC |
||
|
12/23/2010 |
|
Deeds |
$0 |
SEABROOKE TOM & KARYN |
SEABROOKE J KARYN & TOM TRS |
||
|
10/6/1999 |
|
Deeds |
$55,000 |
HOLTSLANDER PAMELA TOMMIE |
SEABROOKE TOM W & JUDITH K |
||
|
10/25/1990 |
|
Historical |
$0 |
RAY CARL B |
HOLTSLANDER PAMELA TOMMIE |
||
|
11/1/1984 |
|
Historical |
$0 |
|
RAY CARL B |
||
| Last Mailed Notice of Value (N.O.V.) Information/History | ||||||||
|---|---|---|---|---|---|---|---|---|
| Year | Date | Market Value | Taxable Market Value | Gross Assessed | Exemption | Net Assessed | ||
|
2026 |
02/23/2026 |
455,000 |
291,541 |
32,069 |
0 |
32,069 |
||
|
2025 |
02/14/2025 |
452,000 |
277,659 |
30,542 |
0 |
30,542 |
||
|
2024 |
02/13/2024 |
423,000 |
264,438 |
29,088 |
0 |
29,088 |
||
|
2023 |
02/14/2023 |
392,000 |
251,846 |
27,702 |
0 |
27,702 |
||
|
2022 |
03/15/2022 |
351,500 |
239,854 |
26,383 |
0 |
26,383 |
||
| Property Building Permit History | |||||||||||
|---|---|---|---|---|---|---|---|---|---|---|---|
| Issued | Permit # | Provided by | Bldg # | Description | Est Construction Cost | Status | |||||
| No Building Permit records returned. | |||||||||||
| Click button on building number to access detailed information: | ||||||
|---|---|---|---|---|---|---|
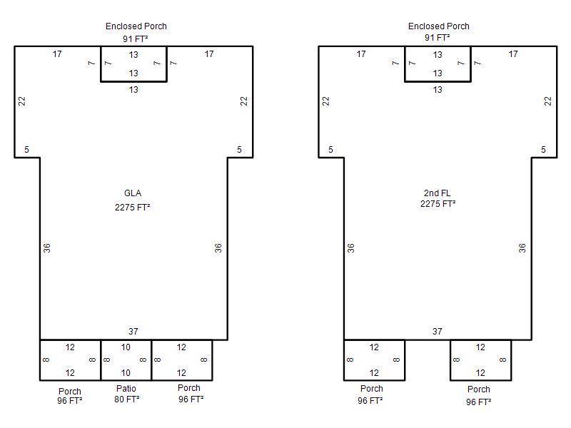
| Bldg # | Vacant/Improved Land | Bldg Description | Year Built | SqFt | # Stories | |
|
1 |
Improved |
Apartment <= 3 Stories |
1928 |
4,550 |
2 Stories |
|