|
|
|
| Larry Stein Oklahoma County Assessor (405) 713-1200 - Public Access System |
|
|
|
|
|
|
| Real Property Display - Screen Produced 3/16/2026 7:30:52 PM | ||||
|---|---|---|---|---|
| Account: R060081750 | Type: Residential | Location: |
1314 NW 15TH ST |
|
| Building Name/Occupant: |
|
OKLAHOMA CITY |
||
| Owner Name 1: | ALCALA JUAN |
Parcel PIN#: |
2714-06-008-1750 |
|
| Owner Name 2: | LUNA MA ELENA | 1/4 section #: |
2714 |
|
| Owner Name 3: | Parent Acct: |
|
||
| Billing Address: | 1314 NW 15TH ST | Tax District: |
|
|
| City, State, Zip | OKLAHOMA CITY, OK 73106-4427 | School System: |
Oklahoma City #89 |
|
|
Country: (If noted) |
Land Size: |
0.1722 Acres |
||
|
Land Value: 32,625 |
|
|||
|
Sect 29-T12N-R3W Qtr SE |
SUMMERS PLACE ADD
Block
004
Lot
002
|
|||
| Full Legal Description: SUMMERS PLACE ADD 004 002 W50FT OF E100FT |
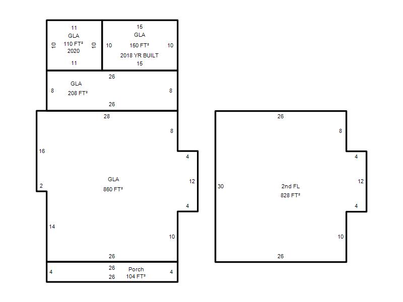
| Photo & Sketch (if available) | Comp Sales (ordered by relevancy) |
|
||||||||||||||||||
|
||||||||||||||||||||
| Value History (*The County Treasurer 405-713-1300 posts & collects actual tax amounts. Contact information HERE) | |||||||||||||
|---|---|---|---|---|---|---|---|---|---|---|---|---|---|
| Year | Market Value | Taxable Mkt Value | Gross Assessed | Exemption | Net Assessed | Millage | Est. Tax | Tax Savings | |||||
|
2025 |
249,500 |
249,500 |
27,445 |
0 |
27,445 |
122.90 |
$3,373 |
$0 |
|||||
|
2024 |
242,500 |
80,448 |
8,848 |
0 |
8,848 |
123.89 |
$1,096 |
$2,208 |
|||||
|
2023 |
218,500 |
76,618 |
8,427 |
0 |
8,427 |
122.82 |
$1,035 |
$1,917 |
|||||
|
2022 |
177,000 |
72,970 |
8,026 |
0 |
8,026 |
117.63 |
$944 |
$1,346 |
|||||
|
2021 |
154,500 |
69,496 |
7,644 |
0 |
7,644 |
117.70 |
$900 |
$1,101 |
|||||
| Property Account Status/Adjustments/Exemptions | ||
|---|---|---|
| Account # | Exemption Description | Amount |
|
R060081750 |
5% Capped Account |
0 |
| Property Deed Transaction History (Recorded in the County Clerk's Office) | |||||||
|---|---|---|---|---|---|---|---|
| Date | Type | Book | Page | Price | Grantor | Grantee | |
|
9/16/2024 |
|
Deeds |
$25,000 |
ACPACO CORPORATION |
ALCALA JUAN |
||
|
4/23/2001 |
|
Deeds |
$7,000 |
DURAN MARY L |
ACPACO CORPORATION |
||
|
2/1/1983 |
|
Historical |
$0 |
|
DURAN MARY L |
||
| Last Mailed Notice of Value (N.O.V.) Information/History | ||||||||
|---|---|---|---|---|---|---|---|---|
| Year | Date | Market Value | Taxable Market Value | Gross Assessed | Exemption | Net Assessed | ||
|
2026 |
02/23/2026 |
250,500 |
250,500 |
27,555 |
0 |
27,555 |
||
|
2025 |
02/14/2025 |
249,500 |
249,500 |
27,445 |
0 |
27,445 |
||
|
2024 |
02/13/2024 |
242,500 |
80,448 |
8,848 |
0 |
8,848 |
||
|
2023 |
02/14/2023 |
218,500 |
76,618 |
8,427 |
0 |
8,427 |
||
|
2022 |
03/15/2022 |
177,000 |
72,970 |
8,026 |
0 |
8,026 |
||
| Property Building Permit History | ||||||
|---|---|---|---|---|---|---|
| Issued | Permit # | Provided by | Bldg # | Description | Est Construction Cost | Status |
|
5/14/2009 |
10378929 |
OKLAHOMA CITY |
1 |
Remodeled |
0 |
Inactive |
|
9/5/1995 |
10193183 |
OKLAHOMA CITY |
1 |
Demolish |
0 |
Inactive |
| Click button on building number to access detailed information: | ||||||
|---|---|---|---|---|---|---|
| Bldg # | Vacant/Improved Land | Bldg Description | Year Built | SqFt | # Stories | |
|
1 |
Improved |
2 Story |
1930 |
2,156 |
2 Stories |
|