|
|
|
| Larry Stein Oklahoma County Assessor (405) 713-1200 - Public Access System |
|
|
|
|
|
|
| Real Property Display - Screen Produced 3/16/2026 7:28:43 PM | ||||
|---|---|---|---|---|
| Account: R060084230 | Type: Residential | Location: |
1221 NW 12TH ST |
|
| Building Name/Occupant: |
|
OKLAHOMA CITY |
||
| Owner Name 1: | STAY PROPERTIES LLC |
Parcel PIN#: |
2714-06-008-4230 |
|
| Owner Name 2: | 1/4 section #: |
2714 |
||
| Owner Name 3: | Parent Acct: |
|
||
| Billing Address: | 12101 N MACARTHUR BLVD, Unit A160 | Tax District: |
|
|
| City, State, Zip | OKLAHOMA CITY, OK 73162 | School System: |
Oklahoma City #89 |
|
|
Country: (If noted) |
Land Size: |
0.1090 Acres |
||
|
Land Value: 20,663 |
|
|||
|
Sect 29-T12N-R3W Qtr SE |
SUMMERS PLACE ADD
Block
011
Lot
000
|
|||
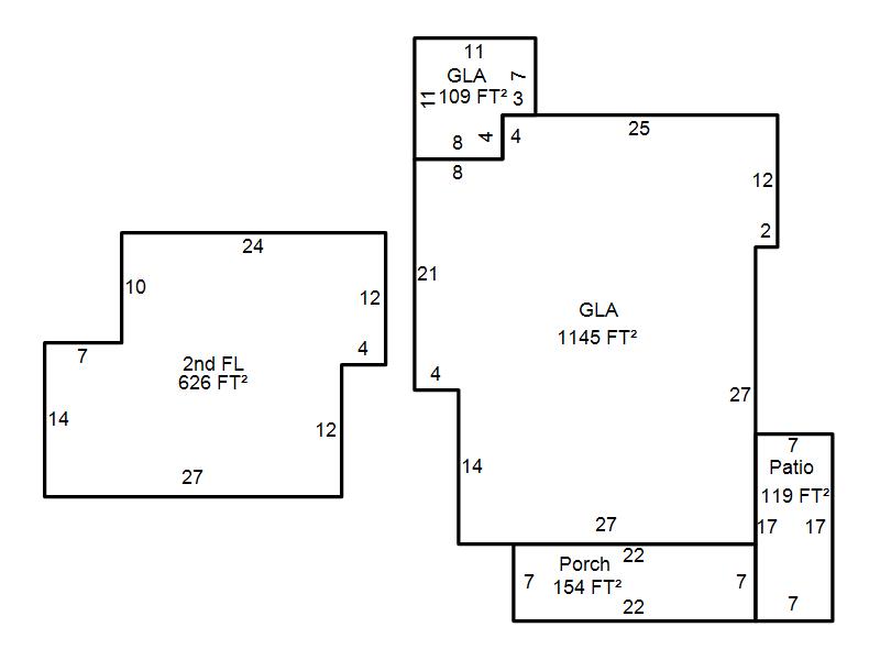
| Full Legal Description: SUMMERS PLACE ADD 011 000 W50FT OF S95FT LOT 3 |
| Photo & Sketch (if available) | Comp Sales (ordered by relevancy) |
|
||||||||||||||||||
|
||||||||||||||||||||
| Value History (*The County Treasurer 405-713-1300 posts & collects actual tax amounts. Contact information HERE) | |||||||||||||
|---|---|---|---|---|---|---|---|---|---|---|---|---|---|
| Year | Market Value | Taxable Mkt Value | Gross Assessed | Exemption | Net Assessed | Millage | Est. Tax | Tax Savings | |||||
|
2025 |
277,500 |
210,584 |
23,164 |
0 |
23,164 |
122.90 |
$2,847 |
$905 |
|||||
|
2024 |
272,500 |
200,557 |
22,060 |
0 |
22,060 |
123.89 |
$2,733 |
$980 |
|||||
|
2023 |
249,000 |
191,007 |
21,010 |
0 |
21,010 |
122.82 |
$2,581 |
$783 |
|||||
|
2022 |
213,500 |
181,912 |
20,009 |
0 |
20,009 |
117.63 |
$2,354 |
$409 |
|||||
|
2021 |
177,000 |
173,250 |
19,057 |
0 |
19,057 |
117.70 |
$2,243 |
$49 |
|||||
| Property Account Status/Adjustments/Exemptions | ||||||
|---|---|---|---|---|---|---|
| Account # | Exemption Description | Amount | ||||
| No adjustment/exemption records returned. | ||||||
| Property Deed Transaction History (Recorded in the County Clerk's Office) | ||||||||||
|---|---|---|---|---|---|---|---|---|---|---|
| Date | Type | Book | Page | Price | Grantor | Grantee | ||||
|
7/11/2025 |
|
Deeds |
$200,000 |
BEACH JAMES |
STAY PROPERTIES LLC |
|||||
|
6/15/2018 |
|
Deeds |
$153,500 |
RACE PROPERTIES LLC |
BEACH JAMES |
|||||
|
12/18/2015 |
|
Deeds |
$23,000 |
EASLEY BLAIR |
RACE PROPERTIES LLC |
|||||
|
3/28/2007 |
|
Deeds |
$0 |
EASLEY BLAIR HART-EASLEY NELDA |
EASLEY BLAIR |
|||||
|
10/8/1996 |
|
Historical |
$0 |
SPENCER STATE BANK |
EASLEY BLAIR |
|||||
| Last Mailed Notice of Value (N.O.V.) Information/History | ||||||||
|---|---|---|---|---|---|---|---|---|
| Year | Date | Market Value | Taxable Market Value | Gross Assessed | Exemption | Net Assessed | ||
|
2026 |
02/23/2026 |
243,500 |
243,500 |
26,785 |
0 |
26,785 |
||
|
2025 |
02/14/2025 |
277,500 |
210,584 |
23,164 |
0 |
23,164 |
||
|
2024 |
02/13/2024 |
272,500 |
200,557 |
22,060 |
0 |
22,060 |
||
|
2023 |
02/14/2023 |
249,000 |
191,007 |
21,010 |
0 |
21,010 |
||
|
2022 |
03/15/2022 |
213,500 |
181,912 |
20,009 |
0 |
20,009 |
||
| Property Building Permit History | |||||||||||
|---|---|---|---|---|---|---|---|---|---|---|---|
| Issued | Permit # | Provided by | Bldg # | Description | Est Construction Cost | Status | |||||
| No Building Permit records returned. | |||||||||||
| Click button on building number to access detailed information: | ||||||
|---|---|---|---|---|---|---|
| Bldg # | Vacant/Improved Land | Bldg Description | Year Built | SqFt | # Stories | |
|
1 |
Improved |
1½ Story Fin |
1925 |
1,880 |
1.5 Stories |
|