|
|
|
| Larry Stein Oklahoma County Assessor (405) 713-1200 - Public Access System |
|
|
|
|
|
|
| Real Property Display - Screen Produced 3/16/2026 7:30:52 PM | ||||
|---|---|---|---|---|
| Account: R060086305 | Type: Residential | Location: |
1136 N DOUGLAS BLVD |
|
| Building Name/Occupant: |
|
OKLAHOMA CITY |
||
| Owner Name 1: | PEREZ MARTIN & FELIPA |
Parcel PIN#: |
2714-06-008-6305 |
|
| Owner Name 2: | 1/4 section #: |
2714 |
||
| Owner Name 3: | Parent Acct: |
|
||
| Billing Address: | 1133 N DOUGLAS AVE | Tax District: |
|
|
| City, State, Zip | OKLAHOMA CITY, OK 73106-4603 | School System: |
Oklahoma City #89 |
|
|
Country: (If noted) |
Land Size: |
0.0574 Acres |
||
|
Land Value: 10,875 |
|
|||
|
Sect 29-T12N-R3W Qtr SE |
SUMMERS PLACE ADD
Block
016
Lot
000
|
|||
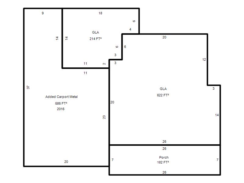
| Full Legal Description: SUMMERS PLACE ADD 016 000 S50FT OF W50FT OF LOT 2 |
| Photo & Sketch (if available) | Comp Sales (ordered by relevancy) |
|
||||||||||||||||||
|
||||||||||||||||||||
| Value History (*The County Treasurer 405-713-1300 posts & collects actual tax amounts. Contact information HERE) | |||||||||||||
|---|---|---|---|---|---|---|---|---|---|---|---|---|---|
| Year | Market Value | Taxable Mkt Value | Gross Assessed | Exemption | Net Assessed | Millage | Est. Tax | Tax Savings | |||||
|
2025 |
114,500 |
16,391 |
1,802 |
0 |
1,802 |
122.90 |
$222 |
$1,326 |
|||||
|
2024 |
93,500 |
15,611 |
1,716 |
0 |
1,716 |
123.89 |
$213 |
$1,061 |
|||||
|
2023 |
88,000 |
14,868 |
1,634 |
0 |
1,634 |
122.82 |
$201 |
$988 |
|||||
|
2022 |
71,000 |
14,160 |
1,556 |
0 |
1,556 |
117.63 |
$183 |
$735 |
|||||
|
2021 |
62,500 |
13,486 |
1,482 |
0 |
1,482 |
117.70 |
$175 |
$635 |
|||||
| Property Account Status/Adjustments/Exemptions | ||
|---|---|---|
| Account # | Exemption Description | Amount |
|
R060086305 |
5% Capped Account |
0 |
| Property Deed Transaction History (Recorded in the County Clerk's Office) | |||||||
|---|---|---|---|---|---|---|---|
| Date | Type | Book | Page | Price | Grantor | Grantee | |
|
11/8/1995 |
|
Historical |
$3,500 |
|
PEREZ MARTIN & FELIPA |
||
| Last Mailed Notice of Value (N.O.V.) Information/History | ||||||||
|---|---|---|---|---|---|---|---|---|
| Year | Date | Market Value | Taxable Market Value | Gross Assessed | Exemption | Net Assessed | ||
|
2026 |
02/23/2026 |
120,000 |
17,210 |
1,893 |
0 |
1,893 |
||
|
2025 |
02/14/2025 |
114,500 |
16,391 |
1,802 |
0 |
1,802 |
||
|
2024 |
02/13/2024 |
93,500 |
15,611 |
1,716 |
0 |
1,716 |
||
|
2023 |
02/14/2023 |
88,000 |
14,868 |
1,634 |
0 |
1,634 |
||
|
2022 |
03/15/2022 |
71,000 |
14,160 |
1,556 |
0 |
1,556 |
||
| Property Building Permit History | |||||||||||
|---|---|---|---|---|---|---|---|---|---|---|---|
| Issued | Permit # | Provided by | Bldg # | Description | Est Construction Cost | Status | |||||
| No Building Permit records returned. | |||||||||||
| Click button on building number to access detailed information: | ||||||
|---|---|---|---|---|---|---|
| Bldg # | Vacant/Improved Land | Bldg Description | Year Built | SqFt | # Stories | |
|
1 |
Improved |
Ranch 1 Story |
1930 |
836 |
1 Stories |
|