|
|
|
| Larry Stein Oklahoma County Assessor (405) 713-1200 - Public Access System |
|
|
|
|
|
|
| Real Property Display - Screen Produced 3/21/2026 5:53:57 AM | ||||
|---|---|---|---|---|
| Account: R062864050 | Type: Residential | Location: |
1715 W PARK PL |
|
| Building Name/Occupant: |
|
OKLAHOMA CITY |
||
| Owner Name 1: | PEREZ ONEIDA |
Parcel PIN#: |
2715-06-286-4050 |
|
| Owner Name 2: | 1/4 section #: |
2715 |
||
| Owner Name 3: | Parent Acct: |
2715-06-286-4400 |
||
| Billing Address: | 1719 W PARK PL | Tax District: |
|
|
| City, State, Zip | OKLAHOMA CITY, OK 73106-2228 | School System: |
Oklahoma City #89 |
|
|
Country: (If noted) |
Land Size: |
0.2603 Acres |
||
|
Land Value: 48,479 |
|
|||
|
Sect 29-T12N-R3W Qtr SW |
CLASSENS CREAM RIDGE
Block
006
Lot
000
|
|||
| Full Legal Description: CLASSENS CREAM RIDGE 006 000 ALL OF LOTS 23 & 24 & PT OF LOTS 25 THRU 30 BEG W LINE OF LOT 30 15FT N OF SW/C LOT 30 TH S140FT TO SW/C LOT 25 TH E18.39FT NW TO A PT 15FT N & 2.48FT E OF SW/C LOT 30 TH W2.48FT TO BEG & S140FT OF ALLEY RUNNING N & S |
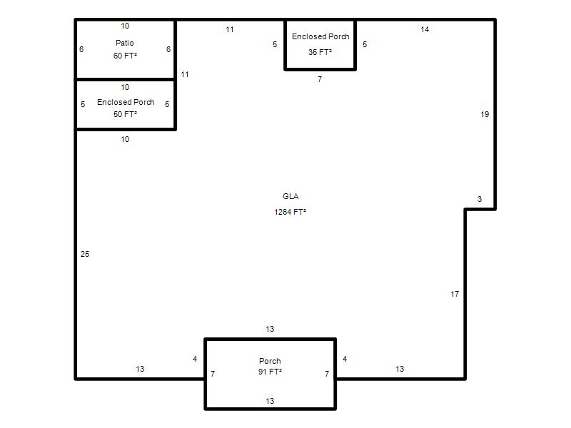
| Photo & Sketch (if available) | Comp Sales (ordered by relevancy) |
|
||||||||||||||||||
|
||||||||||||||||||||
| Value History (*The County Treasurer 405-713-1300 posts & collects actual tax amounts. Contact information HERE) | |||||||||||||
|---|---|---|---|---|---|---|---|---|---|---|---|---|---|
| Year | Market Value | Taxable Mkt Value | Gross Assessed | Exemption | Net Assessed | Millage | Est. Tax | Tax Savings | |||||
|
2025 |
168,000 |
82,990 |
9,128 |
0 |
9,128 |
122.90 |
$1,122 |
$1,149 |
|||||
|
2024 |
165,500 |
79,039 |
8,694 |
0 |
8,694 |
123.89 |
$1,077 |
$1,178 |
|||||
|
2023 |
145,500 |
75,276 |
8,280 |
0 |
8,280 |
122.82 |
$1,017 |
$949 |
|||||
|
2022 |
115,000 |
71,692 |
7,885 |
0 |
7,885 |
117.63 |
$928 |
$560 |
|||||
|
2021 |
102,000 |
68,279 |
7,510 |
0 |
7,510 |
117.70 |
$884 |
$437 |
|||||
| Property Account Status/Adjustments/Exemptions | ||
|---|---|---|
| Account # | Exemption Description | Amount |
|
R062864050 |
5% Capped Account |
0 |
| Property Deed Transaction History (Recorded in the County Clerk's Office) | ||||||||||
|---|---|---|---|---|---|---|---|---|---|---|
| Date | Type | Book | Page | Price | Grantor | Grantee | ||||
|
12/8/2010 |
|
Hmstd Off & |
$0 |
PEREZ JOSE A |
PEREZ ONEIDA |
|||||
|
10/11/2004 |
|
Deeds |
$34,500 |
MULL PROPERTIES LLC |
PEREZ JOSE A |
|||||
|
9/24/2004 |
|
Mult Parcel |
$21,500 |
BARNES EUGENE VIRGIL |
MULL PROPERTIES LLC |
|||||
|
8/12/1988 |
|
Historical |
$0 |
BELL RONALD E & JENNIFER G |
BARNES EUGENE VIRGIL |
|||||
|
10/8/1987 |
|
Historical |
$0 |
BELL RONALD E & JENNIFER G |
SOONER FEDERAL SAVINGS |
|||||
| Last Mailed Notice of Value (N.O.V.) Information/History | ||||||||
|---|---|---|---|---|---|---|---|---|
| Year | Date | Market Value | Taxable Market Value | Gross Assessed | Exemption | Net Assessed | ||
|
2026 |
02/23/2026 |
171,500 |
87,139 |
9,584 |
0 |
9,584 |
||
|
2025 |
02/14/2025 |
168,000 |
82,990 |
9,128 |
0 |
9,128 |
||
|
2024 |
02/13/2024 |
165,500 |
79,039 |
8,694 |
0 |
8,694 |
||
|
2023 |
02/14/2023 |
145,500 |
75,276 |
8,280 |
0 |
8,280 |
||
|
2022 |
03/15/2022 |
115,000 |
71,692 |
7,885 |
0 |
7,885 |
||
| Property Building Permit History | |||||||||||
|---|---|---|---|---|---|---|---|---|---|---|---|
| Issued | Permit # | Provided by | Bldg # | Description | Est Construction Cost | Status | |||||
| No Building Permit records returned. | |||||||||||
| Click button on building number to access detailed information: | ||||||
|---|---|---|---|---|---|---|
| Bldg # | Vacant/Improved Land | Bldg Description | Year Built | SqFt | # Stories | |
|
1 |
Improved |
Ranch 1 Story |
1920 |
1,264 |
1 Stories |
|