|
|
|
| Larry Stein Oklahoma County Assessor (405) 713-1200 - Public Access System |
|
|
|
|
|
|
| Real Property Display - Screen Produced 3/16/2026 7:28:43 PM | ||||
|---|---|---|---|---|
| Account: R063022400 | Type: Residential | Location: |
1513 N KENTUCKY AVE |
|
| Building Name/Occupant: |
|
OKLAHOMA CITY |
||
| Owner Name 1: | MENDEZ VICTOR A & MARTHA ALICIA |
Parcel PIN#: |
2715-06-302-2400 |
|
| Owner Name 2: | 1/4 section #: |
2715 |
||
| Owner Name 3: | Parent Acct: |
|
||
| Billing Address: | 715 NW 31ST ST | Tax District: |
|
|
| City, State, Zip | OKLAHOMA CITY, OK 73118 | School System: |
Oklahoma City #89 |
|
|
Country: (If noted) |
Land Size: |
0.1722 Acres |
||
|
Land Value: 32,625 |
|
|||
|
Sect 29-T12N-R3W Qtr SW |
BAUMANS ADDITION
Block
002
Lot
000
|
|||
| Full Legal Description: BAUMANS ADDITION 002 000 S20FT OF LOT 2 & N30FT LOT 3 |
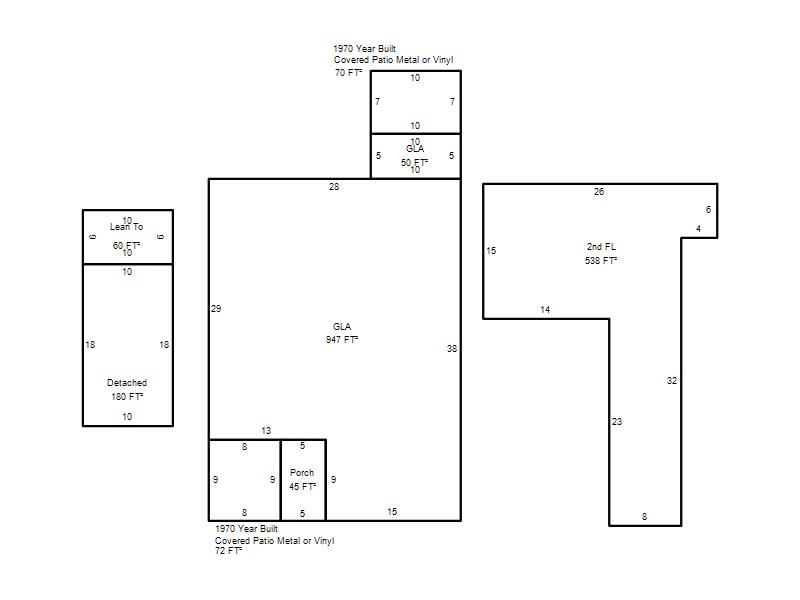
| Photo & Sketch (if available) | Comp Sales (ordered by relevancy) |
|
||||||||||||||||||
|
||||||||||||||||||||
| Value History (*The County Treasurer 405-713-1300 posts & collects actual tax amounts. Contact information HERE) | |||||||||||||
|---|---|---|---|---|---|---|---|---|---|---|---|---|---|
| Year | Market Value | Taxable Mkt Value | Gross Assessed | Exemption | Net Assessed | Millage | Est. Tax | Tax Savings | |||||
|
2025 |
181,500 |
83,434 |
9,177 |
0 |
9,177 |
122.90 |
$1,128 |
$1,326 |
|||||
|
2024 |
174,500 |
79,461 |
8,740 |
0 |
8,740 |
123.89 |
$1,083 |
$1,295 |
|||||
|
2023 |
154,500 |
75,678 |
8,324 |
0 |
8,324 |
122.82 |
$1,022 |
$1,065 |
|||||
|
2022 |
122,000 |
72,075 |
7,927 |
0 |
7,927 |
117.63 |
$933 |
$646 |
|||||
|
2021 |
108,500 |
68,643 |
7,550 |
0 |
7,550 |
117.70 |
$889 |
$516 |
|||||
| Property Account Status/Adjustments/Exemptions | ||
|---|---|---|
| Account # | Exemption Description | Amount |
|
R063022400 |
5% Capped Account |
0 |
| Property Deed Transaction History (Recorded in the County Clerk's Office) | ||||||||||
|---|---|---|---|---|---|---|---|---|---|---|
| Date | Type | Book | Page | Price | Grantor | Grantee | ||||
|
5/30/2014 |
|
Deeds |
$10,000 |
SEGOVIANO ISIDRO & ELIDA M |
MENDEZ VICTOR A & MARTHA ALICIA |
|||||
|
2/1/2004 |
|
Deeds |
$47,500 |
SHIN YOUNG TAEK & CHONG HA |
SEGOVIANO ISIDRO & ELIDA M |
|||||
|
12/31/2002 |
|
Deeds |
$25,000 |
SHIN SOO NAM |
SHIN YOUNG TAEK & CHONG HA |
|||||
|
8/13/2001 |
|
Deeds |
$0 |
SHIN SOO KYUNG SHIN SOO NAM |
SHIN SOO NAM |
|||||
|
3/15/1991 |
|
Historical |
$0 |
EWING EDWIN C |
SHIN SOO KYUNG |
|||||
| Last Mailed Notice of Value (N.O.V.) Information/History | ||||||||
|---|---|---|---|---|---|---|---|---|
| Year | Date | Market Value | Taxable Market Value | Gross Assessed | Exemption | Net Assessed | ||
|
2026 |
02/23/2026 |
186,000 |
87,605 |
9,635 |
0 |
9,635 |
||
|
2025 |
02/14/2025 |
181,500 |
83,434 |
9,177 |
0 |
9,177 |
||
|
2024 |
02/13/2024 |
174,500 |
79,461 |
8,740 |
0 |
8,740 |
||
|
2023 |
02/14/2023 |
154,500 |
75,678 |
8,324 |
0 |
8,324 |
||
|
2022 |
03/15/2022 |
122,000 |
72,075 |
7,927 |
0 |
7,927 |
||
| Property Building Permit History | |||||||||||
|---|---|---|---|---|---|---|---|---|---|---|---|
| Issued | Permit # | Provided by | Bldg # | Description | Est Construction Cost | Status | |||||
| No Building Permit records returned. | |||||||||||
| Click button on building number to access detailed information: | ||||||
|---|---|---|---|---|---|---|
| Bldg # | Vacant/Improved Land | Bldg Description | Year Built | SqFt | # Stories | |
|
1 |
Improved |
1½ Story Fin |
1925 |
1,535 |
1.5 Stories |
|