|
|
|
| Larry Stein Oklahoma County Assessor (405) 713-1200 - Public Access System |
|
|
|
|
|
|
| Real Property Display - Screen Produced 3/21/2026 8:48:04 AM | ||||
|---|---|---|---|---|
| Account: R062222420 | Type: Residential | Location: |
1911 NW 20TH ST |
|
| Building Name/Occupant: |
|
OKLAHOMA CITY |
||
| Owner Name 1: | RICHARD REX |
Parcel PIN#: |
2716-06-222-2420 |
|
| Owner Name 2: | RICHARD ELIZABETH | 1/4 section #: |
2716 |
|
| Owner Name 3: | Parent Acct: |
|
||
| Billing Address: | 1937 NW 17TH ST | Tax District: |
|
|
| City, State, Zip | OKLAHOMA CITY, OK 73106-1803 | School System: |
Oklahoma City #89 |
|
|
Country: (If noted) |
Land Size: |
0.1722 Acres |
||
|
Land Value: 48,000 |
|
|||
|
Sect 29-T12N-R3W Qtr NW |
GATEWOOD ADDITION
Block
006
Lot
021
|
|||
| Full Legal Description: GATEWOOD ADDITION 006 021 |
| Photo & Sketch (if available) | Comp Sales (ordered by relevancy) |
|
||||||||||||||||||
|
||||||||||||||||||||
| Value History (*The County Treasurer 405-713-1300 posts & collects actual tax amounts. Contact information HERE) | |||||||||||||
|---|---|---|---|---|---|---|---|---|---|---|---|---|---|
| Year | Market Value | Taxable Mkt Value | Gross Assessed | Exemption | Net Assessed | Millage | Est. Tax | Tax Savings | |||||
|
2025 |
313,500 |
249,922 |
27,491 |
0 |
27,491 |
122.90 |
$3,379 |
$860 |
|||||
|
2024 |
316,000 |
238,021 |
26,181 |
0 |
26,181 |
123.89 |
$3,244 |
$1,063 |
|||||
|
2023 |
292,500 |
226,687 |
24,935 |
0 |
24,935 |
122.82 |
$3,063 |
$889 |
|||||
|
2022 |
241,000 |
215,893 |
23,747 |
1,000 |
22,747 |
117.63 |
$2,676 |
$442 |
|||||
|
2021 |
224,000 |
209,605 |
23,056 |
1,000 |
22,056 |
117.70 |
$2,596 |
$304 |
|||||
| Property Account Status/Adjustments/Exemptions | ||
|---|---|---|
| Account # | Exemption Description | Amount |
|
R062222420 |
5% Capped Account |
0 |
| Property Deed Transaction History (Recorded in the County Clerk's Office) | ||||||||||
|---|---|---|---|---|---|---|---|---|---|---|
| Date | Type | Book | Page | Price | Grantor | Grantee | ||||
|
2/3/2017 |
|
Deeds |
$208,000 |
BARTELS KORRIE E & MARK E |
RICHARD REX |
|||||
|
9/30/2015 |
|
Deeds |
$200,000 |
STREETER KALE B & TAMERA E |
BARTELS KORRIE E & MARK E |
|||||
|
1/3/2013 |
|
Deeds |
$64,000 |
SCHULTZ BEVERLY |
STREETER KALE B & TAMERA E |
|||||
|
12/28/2012 |
|
Deeds |
$0 |
SCHULTZ MICHAEL SCHULTZ BEVERLY |
SCHULTZ BEVERLY |
|||||
|
10/10/1996 |
|
Historical |
$48,500 |
DULANEY LYNN ELLEN |
SCHULTZ MICHAEL |
|||||
| Last Mailed Notice of Value (N.O.V.) Information/History | ||||||||
|---|---|---|---|---|---|---|---|---|
| Year | Date | Market Value | Taxable Market Value | Gross Assessed | Exemption | Net Assessed | ||
|
2026 |
02/23/2026 |
310,000 |
262,418 |
28,865 |
0 |
28,865 |
||
|
2025 |
02/14/2025 |
313,500 |
249,922 |
27,491 |
0 |
27,491 |
||
|
2024 |
02/13/2024 |
316,000 |
238,021 |
26,181 |
0 |
26,181 |
||
|
2023 |
02/14/2023 |
292,500 |
222,369 |
24,460 |
1,000 |
23,460 |
||
|
2022 |
03/15/2022 |
241,000 |
215,893 |
23,747 |
1,000 |
22,747 |
||
| Property Building Permit History | |||||||||||
|---|---|---|---|---|---|---|---|---|---|---|---|
| Issued | Permit # | Provided by | Bldg # | Description | Est Construction Cost | Status | |||||
| No Building Permit records returned. | |||||||||||
| Click button on building number to access detailed information: | ||||||
|---|---|---|---|---|---|---|
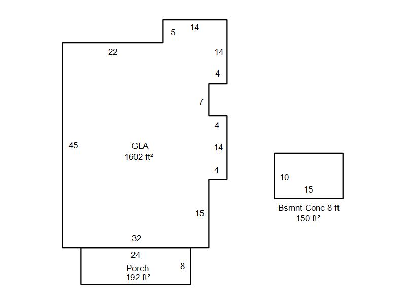
| Bldg # | Vacant/Improved Land | Bldg Description | Year Built | SqFt | # Stories | |
|
1 |
Improved |
Ranch 1 Story |
1925 |
1,602 |
1 Stories |
|