|
|
|
| Larry Stein Oklahoma County Assessor (405) 713-1200 - Public Access System |
|
|
|
|
|
|
| Real Property Display - Screen Produced 3/21/2026 8:49:10 AM | ||||
|---|---|---|---|---|
| Account: R062222580 | Type: Residential | Location: |
2024 NW 21ST ST |
|
| Building Name/Occupant: |
|
OKLAHOMA CITY |
||
| Owner Name 1: | EPSTEIN DAN A |
Parcel PIN#: |
2716-06-222-2580 |
|
| Owner Name 2: | GIBBONS JANE M | 1/4 section #: |
2716 |
|
| Owner Name 3: | Parent Acct: |
|
||
| Billing Address: | 2024 NW 21ST ST | Tax District: |
|
|
| City, State, Zip | OKLAHOMA CITY, OK 73106-1614 | School System: |
Oklahoma City #89 |
|
|
Country: (If noted) |
Land Size: |
0.1722 Acres |
||
|
Land Value: 48,000 |
|
|||
|
Sect 29-T12N-R3W Qtr NW |
GATEWOOD ADDITION
Block
007
Lot
007
|
|||
| Full Legal Description: GATEWOOD ADDITION 007 007 |
| Photo & Sketch (if available) | Comp Sales (ordered by relevancy) |
|
||||||||||||||||||
|
||||||||||||||||||||
| Value History (*The County Treasurer 405-713-1300 posts & collects actual tax amounts. Contact information HERE) | |||||||||||||
|---|---|---|---|---|---|---|---|---|---|---|---|---|---|
| Year | Market Value | Taxable Mkt Value | Gross Assessed | Exemption | Net Assessed | Millage | Est. Tax | Tax Savings | |||||
|
2025 |
437,500 |
306,235 |
33,685 |
1,000 |
32,685 |
122.90 |
$4,017 |
$1,897 |
|||||
|
2024 |
438,000 |
297,316 |
32,704 |
1,000 |
31,704 |
123.89 |
$3,928 |
$2,041 |
|||||
|
2023 |
406,500 |
288,657 |
31,751 |
1,000 |
30,751 |
122.82 |
$3,777 |
$1,715 |
|||||
|
2022 |
332,000 |
280,250 |
30,826 |
1,000 |
29,826 |
117.63 |
$3,509 |
$787 |
|||||
|
2021 |
290,000 |
272,088 |
29,929 |
1,000 |
28,929 |
117.70 |
$3,405 |
$350 |
|||||
| Property Account Status/Adjustments/Exemptions | ||
|---|---|---|
| Account # | Exemption Description | Amount |
|
R062222580 |
3% Cap Homestead |
0 |
|
R062222580 |
Homestead |
1,000 |
| Property Deed Transaction History (Recorded in the County Clerk's Office) | ||||||||||
|---|---|---|---|---|---|---|---|---|---|---|
| Date | Type | Book | Page | Price | Grantor | Grantee | ||||
|
6/21/2017 |
|
Deeds |
$250,000 |
CLAYBAUGH BRIAN C & TARA S |
EPSTEIN DAN A |
|||||
|
11/2/2015 |
|
Deeds |
$240,000 |
SMITH GARY D & RUTHANNE |
CLAYBAUGH BRIAN C & TARA S |
|||||
|
1/17/1996 |
|
Historical |
$87,900 |
FRITZ TERESA A |
SMITH GARY D & RUTHANNE |
|||||
|
3/4/1994 |
|
Historical |
$77,500 |
ALBERT WAYNE H |
FRITZ TERESA A |
|||||
|
10/14/1992 |
|
Historical |
$72,000 |
LYKES JAMES MARK |
ALBERT WAYNE H |
|||||
| Last Mailed Notice of Value (N.O.V.) Information/History | ||||||||
|---|---|---|---|---|---|---|---|---|
| Year | Date | Market Value | Taxable Market Value | Gross Assessed | Exemption | Net Assessed | ||
|
2026 |
02/23/2026 |
431,500 |
315,422 |
34,695 |
1,000 |
33,695 |
||
|
2025 |
02/14/2025 |
437,500 |
306,235 |
33,685 |
1,000 |
32,685 |
||
|
2024 |
02/13/2024 |
438,000 |
297,316 |
32,704 |
1,000 |
31,704 |
||
|
2023 |
02/14/2023 |
406,500 |
288,657 |
31,751 |
1,000 |
30,751 |
||
|
2022 |
03/15/2022 |
332,000 |
280,250 |
30,826 |
1,000 |
29,826 |
||
| Property Building Permit History | |||||||||||
|---|---|---|---|---|---|---|---|---|---|---|---|
| Issued | Permit # | Provided by | Bldg # | Description | Est Construction Cost | Status | |||||
| No Building Permit records returned. | |||||||||||
| Click button on building number to access detailed information: | ||||||
|---|---|---|---|---|---|---|
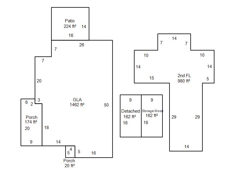
| Bldg # | Vacant/Improved Land | Bldg Description | Year Built | SqFt | # Stories | |
|
1 |
Improved |
2 Story |
1926 |
2,442 |
2 Stories |
|