|
|
|
| Larry Stein Oklahoma County Assessor (405) 713-1200 - Public Access System |
|
|
|
|
|
|
| Real Property Display - Screen Produced 3/21/2026 8:49:09 AM | ||||
|---|---|---|---|---|
| Account: R062222600 | Type: Residential | Location: |
2028 NW 21ST ST |
|
| Building Name/Occupant: |
|
OKLAHOMA CITY |
||
| Owner Name 1: | THOMAS AELEEN ADRIANA |
Parcel PIN#: |
2716-06-222-2600 |
|
| Owner Name 2: | 1/4 section #: |
2716 |
||
| Owner Name 3: | Parent Acct: |
|
||
| Billing Address: | 2028 NW 21ST ST | Tax District: |
|
|
| City, State, Zip | OKLAHOMA CITY, OK 73106 | School System: |
Oklahoma City #89 |
|
|
Country: (If noted) |
UNITED STATES |
Land Size: |
0.1722 Acres |
|
|
Land Value: 48,000 |
|
|||
|
Sect 29-T12N-R3W Qtr NW |
GATEWOOD ADDITION
Block
007
Lot
008
|
|||
| Full Legal Description: GATEWOOD ADDITION 007 008 |
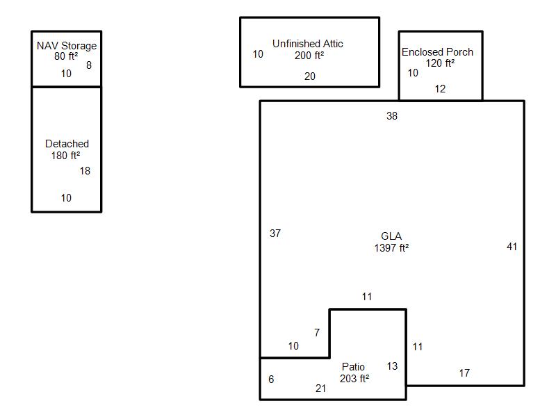
| Photo & Sketch (if available) | Comp Sales (ordered by relevancy) |
|
||||||||||||||||||
|
||||||||||||||||||||
| Value History (*The County Treasurer 405-713-1300 posts & collects actual tax amounts. Contact information HERE) | |||||||||||||
|---|---|---|---|---|---|---|---|---|---|---|---|---|---|
| Year | Market Value | Taxable Mkt Value | Gross Assessed | Exemption | Net Assessed | Millage | Est. Tax | Tax Savings | |||||
|
2025 |
298,000 |
230,613 |
25,366 |
0 |
25,366 |
122.90 |
$3,118 |
$911 |
|||||
|
2024 |
298,000 |
219,632 |
24,159 |
0 |
24,159 |
123.89 |
$2,993 |
$1,068 |
|||||
|
2023 |
276,500 |
209,174 |
23,008 |
0 |
23,008 |
122.82 |
$2,826 |
$910 |
|||||
|
2022 |
230,500 |
199,214 |
21,912 |
1,000 |
20,912 |
117.63 |
$2,460 |
$522 |
|||||
|
2021 |
214,000 |
193,412 |
21,274 |
1,000 |
20,274 |
117.70 |
$2,386 |
$384 |
|||||
| Property Account Status/Adjustments/Exemptions | ||
|---|---|---|
| Account # | Exemption Description | Amount |
|
R062222600 |
5% Capped Account |
0 |
| Property Deed Transaction History (Recorded in the County Clerk's Office) | ||||||||||
|---|---|---|---|---|---|---|---|---|---|---|
| Date | Type | Book | Page | Price | Grantor | Grantee | ||||
|
7/15/2016 |
|
Deeds |
$185,000 |
WEST SHARON K |
THOMAS AELEEN ADRIANA |
|||||
|
2/27/2008 |
|
Deeds |
$145,500 |
LAMB ALANNA R |
WEST SHARON K |
|||||
|
9/10/2003 |
|
Deeds |
$82,000 |
JAMES PAULA LEE |
LAMB ALANNA R |
|||||
|
10/18/2001 |
|
Deeds |
$0 |
BRIDGWATER JOHNSON |
JAMES PAULA LEE |
|||||
|
11/2/1994 |
|
Historical |
$0 |
BOOKER SCOTT D & PAULA JAMES |
BRIDGWATER JOHNSON |
|||||
| Last Mailed Notice of Value (N.O.V.) Information/History | ||||||||
|---|---|---|---|---|---|---|---|---|
| Year | Date | Market Value | Taxable Market Value | Gross Assessed | Exemption | Net Assessed | ||
|
2026 |
02/23/2026 |
290,000 |
242,143 |
26,635 |
0 |
26,635 |
||
|
2025 |
02/14/2025 |
298,000 |
230,613 |
25,366 |
0 |
25,366 |
||
|
2024 |
02/13/2024 |
298,000 |
219,632 |
24,159 |
0 |
24,159 |
||
|
2023 |
02/14/2023 |
276,500 |
205,190 |
22,570 |
1,000 |
21,570 |
||
|
2022 |
03/15/2022 |
230,500 |
199,214 |
21,912 |
1,000 |
20,912 |
||
| Property Building Permit History | ||||||
|---|---|---|---|---|---|---|
| Issued | Permit # | Provided by | Bldg # | Description | Est Construction Cost | Status |
|
2/16/2001 |
10193438 |
OKLAHOMA CITY |
1 |
Burn - Trip |
3,500 |
Inactive |
| Click button on building number to access detailed information: | ||||||
|---|---|---|---|---|---|---|
| Bldg # | Vacant/Improved Land | Bldg Description | Year Built | SqFt | # Stories | |
|
1 |
Improved |
Ranch 1 Story |
1926 |
1,397 |
1 Stories |
|