|
|
|
| Larry Stein Oklahoma County Assessor (405) 713-1200 - Public Access System |
|
|
|
|
|
|
| Real Property Display - Screen Produced 3/21/2026 8:43:55 AM | ||||
|---|---|---|---|---|
| Account: R062223540 | Type: Residential | Location: |
1912 NW 20TH ST |
|
| Building Name/Occupant: |
|
OKLAHOMA CITY |
||
| Owner Name 1: | THOMPSON CAROL RENEE |
Parcel PIN#: |
2716-06-222-3540 |
|
| Owner Name 2: | THOMPSON CRAIG ALAN | 1/4 section #: |
2716 |
|
| Owner Name 3: | Parent Acct: |
|
||
| Billing Address: | 1912 NW 20TH ST | Tax District: |
|
|
| City, State, Zip | OKLAHOMA CITY, OK 73106-1608 | School System: |
Oklahoma City #89 |
|
|
Country: (If noted) |
Land Size: |
0.1722 Acres |
||
|
Land Value: 48,000 |
|
|||
|
Sect 29-T12N-R3W Qtr NW |
GATEWOOD ADDITION
Block
009
Lot
004
|
|||
| Full Legal Description: GATEWOOD ADDITION 009 004 |
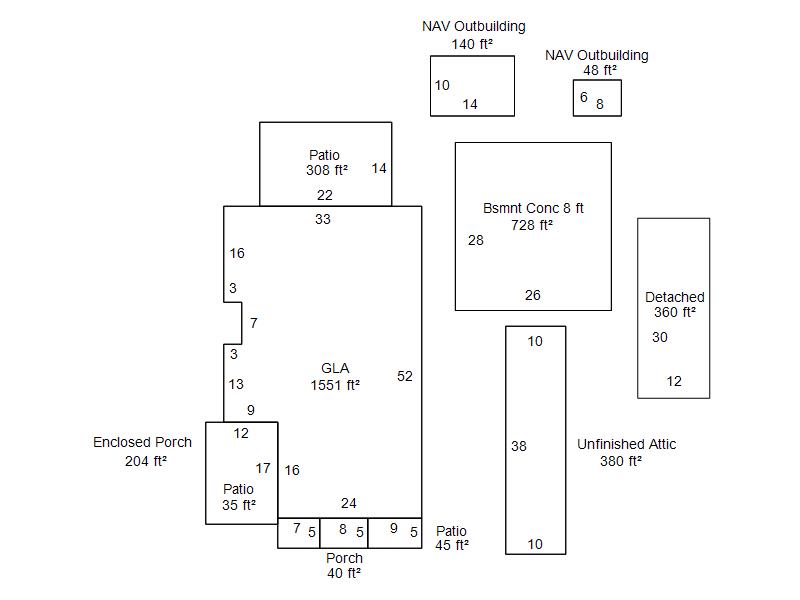
| Photo & Sketch (if available) | Comp Sales (ordered by relevancy) |
|
||||||||||||||||||
|
||||||||||||||||||||
| Value History (*The County Treasurer 405-713-1300 posts & collects actual tax amounts. Contact information HERE) | |||||||||||||
|---|---|---|---|---|---|---|---|---|---|---|---|---|---|
| Year | Market Value | Taxable Mkt Value | Gross Assessed | Exemption | Net Assessed | Millage | Est. Tax | Tax Savings | |||||
|
2025 |
326,500 |
326,500 |
35,915 |
0 |
35,915 |
122.90 |
$4,414 |
$0 |
|||||
|
2024 |
325,000 |
203,650 |
22,401 |
1,000 |
21,401 |
123.89 |
$2,651 |
$1,778 |
|||||
|
2023 |
303,000 |
197,719 |
21,748 |
1,000 |
20,748 |
122.82 |
$2,548 |
$1,545 |
|||||
|
2022 |
254,000 |
191,961 |
21,115 |
1,000 |
20,115 |
117.63 |
$2,366 |
$920 |
|||||
|
2021 |
237,500 |
186,370 |
20,500 |
1,000 |
19,500 |
117.70 |
$2,295 |
$780 |
|||||
| Property Account Status/Adjustments/Exemptions | ||
|---|---|---|
| Account # | Exemption Description | Amount |
|
R062223540 |
3% Cap Homestead |
0 |
|
R062223540 |
Homestead |
1,000 |
| Property Deed Transaction History (Recorded in the County Clerk's Office) | ||||||||||
|---|---|---|---|---|---|---|---|---|---|---|
| Date | Type | Book | Page | Price | Grantor | Grantee | ||||
|
7/22/2024 |
|
Deeds |
$337,500 |
ROSS DALE E |
THOMPSON CAROL RENEE |
|||||
|
4/15/2013 |
|
Deeds |
$158,000 |
DUFFY RYAN J |
ROSS DALE E |
|||||
|
3/30/2010 |
|
Deeds |
$148,000 |
REED BEN & CHRISTY L |
DUFFY RYAN J |
|||||
|
6/1/2005 |
|
Deeds |
$130,000 |
HARLAN DON PAUL HARLAN LEA ANN |
REED BEN & CHRISTY L |
|||||
|
6/1/1988 |
|
Historical |
$46,500 |
JORNS LOLA MAE |
HARLAN DON PAUL |
|||||
| Last Mailed Notice of Value (N.O.V.) Information/History | ||||||||
|---|---|---|---|---|---|---|---|---|
| Year | Date | Market Value | Taxable Market Value | Gross Assessed | Exemption | Net Assessed | ||
|
2025 |
02/14/2025 |
326,500 |
326,500 |
35,915 |
0 |
35,915 |
||
|
2024 |
02/13/2024 |
325,000 |
203,650 |
22,401 |
1,000 |
21,401 |
||
|
2023 |
02/14/2023 |
303,000 |
197,719 |
21,748 |
1,000 |
20,748 |
||
|
2022 |
03/15/2022 |
254,000 |
191,961 |
21,115 |
1,000 |
20,115 |
||
|
2021 |
03/19/2021 |
237,500 |
186,370 |
20,500 |
1,000 |
19,500 |
||
| Property Building Permit History | |||||||||||
|---|---|---|---|---|---|---|---|---|---|---|---|
| Issued | Permit # | Provided by | Bldg # | Description | Est Construction Cost | Status | |||||
| No Building Permit records returned. | |||||||||||
| Click button on building number to access detailed information: | ||||||
|---|---|---|---|---|---|---|
| Bldg # | Vacant/Improved Land | Bldg Description | Year Built | SqFt | # Stories | |
|
1 |
Improved |
Ranch 1 Story |
1923 |
1,551 |
1 Stories |
|