|
|
|
| Larry Stein Oklahoma County Assessor (405) 713-1200 - Public Access System |
|
|
|
|
|
|
| Real Property Display - Screen Produced 3/21/2026 8:43:55 AM | ||||
|---|---|---|---|---|
| Account: R062224620 | Type: Residential | Location: |
2017 N GATEWOOD AVE |
|
| Building Name/Occupant: |
|
OKLAHOMA CITY |
||
| Owner Name 1: | DEMERY CHARLES B |
Parcel PIN#: |
2716-06-222-4620 |
|
| Owner Name 2: | 1/4 section #: |
2716 |
||
| Owner Name 3: | Parent Acct: |
|
||
| Billing Address: | 2017 N GATEWOOD AVE | Tax District: |
|
|
| City, State, Zip | OKLAHOMA CITY, OK 73106-3814 | School System: |
Oklahoma City #89 |
|
|
Country: (If noted) |
Land Size: |
0.1676 Acres |
||
|
Land Value: 46,720 |
|
|||
|
Sect 29-T12N-R3W Qtr NW |
GATEWOOD ADDITION
Block
011
Lot
011
|
|||
| Full Legal Description: GATEWOOD ADDITION 011 011 |
| Photo & Sketch (if available) | Comp Sales (ordered by relevancy) |
|
||||||||||||||||||
|
||||||||||||||||||||
| Value History (*The County Treasurer 405-713-1300 posts & collects actual tax amounts. Contact information HERE) | |||||||||||||
|---|---|---|---|---|---|---|---|---|---|---|---|---|---|
| Year | Market Value | Taxable Mkt Value | Gross Assessed | Exemption | Net Assessed | Millage | Est. Tax | Tax Savings | |||||
|
2025 |
367,500 |
168,772 |
18,564 |
1,000 |
17,564 |
122.90 |
$2,159 |
$2,810 |
|||||
|
2024 |
368,000 |
163,857 |
18,023 |
1,000 |
17,023 |
123.89 |
$2,109 |
$2,906 |
|||||
|
2023 |
326,500 |
159,085 |
17,498 |
1,000 |
16,498 |
122.82 |
$2,026 |
$2,385 |
|||||
|
2022 |
255,000 |
154,452 |
16,988 |
1,000 |
15,988 |
117.63 |
$1,881 |
$1,419 |
|||||
|
2021 |
239,500 |
149,954 |
16,494 |
1,000 |
15,494 |
117.70 |
$1,824 |
$1,277 |
|||||
| Property Account Status/Adjustments/Exemptions | ||
|---|---|---|
| Account # | Exemption Description | Amount |
|
R062224620 |
Homestead |
1,000 |
|
R062224620 |
3% Cap Homestead |
0 |
| Property Deed Transaction History (Recorded in the County Clerk's Office) | |||||||
|---|---|---|---|---|---|---|---|
| Date | Type | Book | Page | Price | Grantor | Grantee | |
|
3/6/2009 |
|
Deeds |
$0 |
DEMERY CHARLES & JAN |
DEMERY CHARLES B |
||
|
6/29/1999 |
|
Deeds |
$124,000 |
JOHNSON CHARLES G |
DEMERY CHARLES & JAN |
||
|
2/1/1982 |
|
Historical |
$0 |
|
JOHNSON CHARLES G |
||
| Last Mailed Notice of Value (N.O.V.) Information/History | ||||||||
|---|---|---|---|---|---|---|---|---|
| Year | Date | Market Value | Taxable Market Value | Gross Assessed | Exemption | Net Assessed | ||
|
2026 |
02/23/2026 |
354,000 |
173,835 |
19,120 |
1,000 |
18,120 |
||
|
2025 |
02/14/2025 |
367,500 |
168,772 |
18,564 |
1,000 |
17,564 |
||
|
2024 |
02/13/2024 |
368,000 |
163,857 |
18,023 |
1,000 |
17,023 |
||
|
2023 |
02/14/2023 |
326,500 |
159,085 |
17,498 |
1,000 |
16,498 |
||
|
2022 |
03/15/2022 |
255,000 |
154,452 |
16,988 |
1,000 |
15,988 |
||
| Property Building Permit History | |||||||||||
|---|---|---|---|---|---|---|---|---|---|---|---|
| Issued | Permit # | Provided by | Bldg # | Description | Est Construction Cost | Status | |||||
| No Building Permit records returned. | |||||||||||
| Click button on building number to access detailed information: | ||||||
|---|---|---|---|---|---|---|
| Bldg # | Vacant/Improved Land | Bldg Description | Year Built | SqFt | # Stories | |
|
1 |
Improved |
Ranch 1 Story |
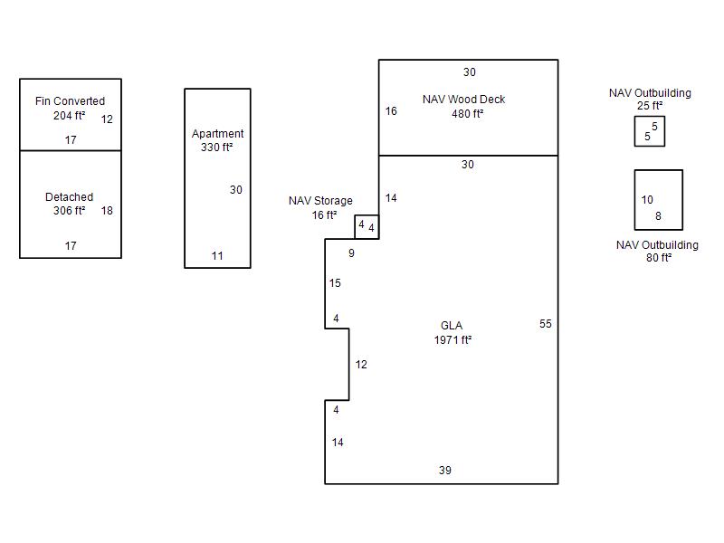
1935 |
1,971 |
1 Stories |
|