|
|
|
| Larry Stein Oklahoma County Assessor (405) 713-1200 - Public Access System |
|
|
|
|
|
|
| Real Property Display - Screen Produced 3/21/2026 8:49:09 AM | ||||
|---|---|---|---|---|
| Account: R062224860 | Type: Residential | Location: |
1816 NW 19TH ST |
|
| Building Name/Occupant: |
|
OKLAHOMA CITY |
||
| Owner Name 1: | WHITE GLENN P & MARY ANN |
Parcel PIN#: |
2716-06-222-4860 |
|
| Owner Name 2: | 1/4 section #: |
2716 |
||
| Owner Name 3: | Parent Acct: |
|
||
| Billing Address: | 1816 NW 19TH ST | Tax District: |
|
|
| City, State, Zip | OKLAHOMA CITY, OK 73106-1602 | School System: |
Oklahoma City #89 |
|
|
Country: (If noted) |
Land Size: |
0.2066 Acres |
||
|
Land Value: 57,600 |
|
|||
|
Sect 29-T12N-R3W Qtr NW |
GATEWOOD ADDITION
Block
012
Lot
005
|
|||
| Full Legal Description: GATEWOOD ADDITION 012 005 |
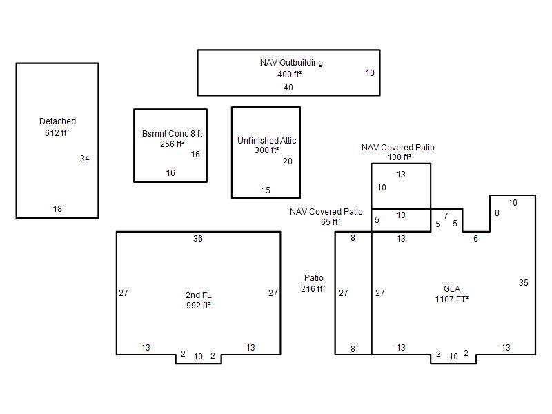
| Photo & Sketch (if available) | Comp Sales (ordered by relevancy) |
|
||||||||||||||||||
|
||||||||||||||||||||
| Value History (*The County Treasurer 405-713-1300 posts & collects actual tax amounts. Contact information HERE) | |||||||||||||
|---|---|---|---|---|---|---|---|---|---|---|---|---|---|
| Year | Market Value | Taxable Mkt Value | Gross Assessed | Exemption | Net Assessed | Millage | Est. Tax | Tax Savings | |||||
|
2025 |
349,500 |
195,166 |
21,468 |
1,000 |
20,468 |
122.90 |
$2,516 |
$2,209 |
|||||
|
2024 |
338,000 |
189,482 |
20,843 |
1,000 |
19,843 |
123.89 |
$2,458 |
$2,148 |
|||||
|
2023 |
321,000 |
183,964 |
20,235 |
1,000 |
19,235 |
122.82 |
$2,363 |
$1,974 |
|||||
|
2022 |
250,000 |
178,606 |
19,645 |
1,000 |
18,645 |
117.63 |
$2,193 |
$1,041 |
|||||
|
2021 |
226,500 |
173,404 |
19,073 |
1,000 |
18,073 |
117.70 |
$2,127 |
$805 |
|||||
| Property Account Status/Adjustments/Exemptions | ||
|---|---|---|
| Account # | Exemption Description | Amount |
|
R062224860 |
3% Cap Homestead |
0 |
|
R062224860 |
Homestead |
1,000 |
| Property Deed Transaction History (Recorded in the County Clerk's Office) | |||||||
|---|---|---|---|---|---|---|---|
| Date | Type | Book | Page | Price | Grantor | Grantee | |
|
9/9/1993 |
|
Historical |
$67,000 |
DOYLE LOUISE |
WHITE GLENN P & MARY ANN |
||
|
5/1/1979 |
|
Historical |
$0 |
|
DOYLE LOUISE |
||
| Last Mailed Notice of Value (N.O.V.) Information/History | ||||||||
|---|---|---|---|---|---|---|---|---|
| Year | Date | Market Value | Taxable Market Value | Gross Assessed | Exemption | Net Assessed | ||
|
2026 |
02/23/2026 |
354,000 |
201,020 |
22,112 |
1,000 |
21,112 |
||
|
2025 |
02/14/2025 |
349,500 |
195,166 |
21,468 |
1,000 |
20,468 |
||
|
2024 |
02/13/2024 |
338,000 |
189,482 |
20,843 |
1,000 |
19,843 |
||
|
2023 |
02/14/2023 |
321,000 |
183,964 |
20,235 |
1,000 |
19,235 |
||
|
2022 |
03/15/2022 |
250,000 |
178,606 |
19,645 |
1,000 |
18,645 |
||
| Property Building Permit History | ||||||
|---|---|---|---|---|---|---|
| Issued | Permit # | Provided by | Bldg # | Description | Est Construction Cost | Status |
|
9/20/1995 |
10193453 |
OKLAHOMA CITY |
1 |
Storage Buil |
4,000 |
Inactive |
| Click button on building number to access detailed information: | ||||||
|---|---|---|---|---|---|---|
| Bldg # | Vacant/Improved Land | Bldg Description | Year Built | SqFt | # Stories | |
|
1 |
Improved |
2½ Story Unfin |
1926 |
2,099 |
2.5 Stories |
|