|
|
|
| Larry Stein Oklahoma County Assessor (405) 713-1200 - Public Access System |
|
|
|
|
|
|
| Real Property Display - Screen Produced 3/21/2026 8:43:55 AM | ||||
|---|---|---|---|---|
| Account: R062228240 | Type: Residential | Location: |
1936 NW 17TH ST |
|
| Building Name/Occupant: |
|
OKLAHOMA CITY |
||
| Owner Name 1: | PEARSON PATRICK DAVID |
Parcel PIN#: |
2716-06-222-8240 |
|
| Owner Name 2: | PEARSON SHANNON ELIZABETH PAYNE | 1/4 section #: |
2716 |
|
| Owner Name 3: | Parent Acct: |
|
||
| Billing Address: | 1936 NW 17TH ST | Tax District: |
|
|
| City, State, Zip | OKLAHOMA CITY, OK 73106-1804 | School System: |
Oklahoma City #89 |
|
|
Country: (If noted) |
Land Size: |
0.1722 Acres |
||
|
Land Value: 48,000 |
|
|||
|
Sect 29-T12N-R3W Qtr NW |
GATEWOOD ADDITION
Block
023
Lot
009
|
|||
| Full Legal Description: GATEWOOD ADDITION 023 009 |
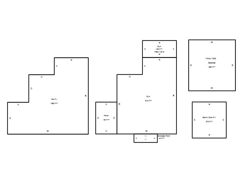
| Photo & Sketch (if available) | Comp Sales (ordered by relevancy) |
|
||||||||||||||||||
|
||||||||||||||||||||
| Value History (*The County Treasurer 405-713-1300 posts & collects actual tax amounts. Contact information HERE) | |||||||||||||
|---|---|---|---|---|---|---|---|---|---|---|---|---|---|
| Year | Market Value | Taxable Mkt Value | Gross Assessed | Exemption | Net Assessed | Millage | Est. Tax | Tax Savings | |||||
|
2025 |
358,500 |
285,537 |
31,408 |
31,408 |
0 |
122.90 |
$0 |
$4,846 |
|||||
|
2024 |
359,000 |
277,221 |
30,494 |
30,494 |
0 |
123.89 |
$0 |
$4,892 |
|||||
|
2023 |
344,000 |
269,147 |
29,605 |
0 |
29,605 |
122.82 |
$3,636 |
$1,011 |
|||||
|
2022 |
284,000 |
256,331 |
28,195 |
0 |
28,195 |
117.63 |
$3,317 |
$358 |
|||||
|
2021 |
250,500 |
244,125 |
26,853 |
0 |
26,853 |
117.70 |
$3,161 |
$83 |
|||||
| Property Account Status/Adjustments/Exemptions | ||
|---|---|---|
| Account # | Exemption Description | Amount |
|
R062228240 |
100% DAV Exemption |
100 |
|
R062228240 |
DAV Homestead |
0 |
|
R062228240 |
3% Cap Homestead |
0 |
| Property Deed Transaction History (Recorded in the County Clerk's Office) | ||||||||||
|---|---|---|---|---|---|---|---|---|---|---|
| Date | Type | Book | Page | Price | Grantor | Grantee | ||||
|
6/3/2016 |
|
Deeds |
$252,500 |
KRAUSE SHIRREE & JEFFREY |
PEARSON PATRICK DAVID |
|||||
|
6/1/2012 |
|
Deeds |
$181,000 |
WILDER SAMUEL THOMAS III |
KRAUSE SHIRREE & JEFFREY |
|||||
|
8/28/2009 |
|
Deeds |
$168,000 |
CAVINESS JERRY L & CAROL JANE |
WILDER SAMUEL THOMAS III |
|||||
|
10/21/1997 |
|
Historical |
$74,000 |
WILSON DAVID L & MACHELLE T |
CAVINESS JERRY L & CAROL JANE |
|||||
|
7/1/1993 |
|
Historical |
$45,000 |
OLSON JOHN W SR |
WILSON DAVID L & MACHELLE T |
|||||
| Last Mailed Notice of Value (N.O.V.) Information/History | ||||||||
|---|---|---|---|---|---|---|---|---|
| Year | Date | Market Value | Taxable Market Value | Gross Assessed | Exemption | Net Assessed | ||
|
2026 |
02/23/2026 |
360,500 |
294,103 |
32,351 |
32,351 |
0 |
||
|
2025 |
02/14/2025 |
358,500 |
285,537 |
31,408 |
31,408 |
0 |
||
|
2024 |
02/13/2024 |
359,000 |
282,604 |
31,086 |
0 |
31,086 |
||
|
2023 |
02/14/2023 |
344,000 |
269,147 |
29,605 |
0 |
29,605 |
||
|
2022 |
03/15/2022 |
284,000 |
256,331 |
28,195 |
0 |
28,195 |
||
| Property Building Permit History | ||||||
|---|---|---|---|---|---|---|
| Issued | Permit # | Provided by | Bldg # | Description | Est Construction Cost | Status |
|
11/5/2018 |
|
|
1 |
Add On |
20,000 |
Inactive |
|
5/13/2003 |
10193497 |
OKLAHOMA CITY |
1 |
Demolish |
0 |
Inactive |
|
5/13/2003 |
10193498 |
OKLAHOMA CITY |
1 |
Garage |
13,300 |
Inactive |
| Click button on building number to access detailed information: | ||||||
|---|---|---|---|---|---|---|
| Bldg # | Vacant/Improved Land | Bldg Description | Year Built | SqFt | # Stories | |
|
1 |
Improved |
2 Story |
1925 |
2,102 |
2 Stories |
|